Bernhard Eilershof 5, Amsterdam

rooms 4 · 121 m2

en

Features

Transfer

  • StatusSold (SC)
  • Purchase priceAsking price € 650.000,- k.k.

Building form

  • Object typeResidential house
  • Property typeSingle-family house
  • Property typeTerraced house
  • Year built2008
  • Building formExisting construction

Layout

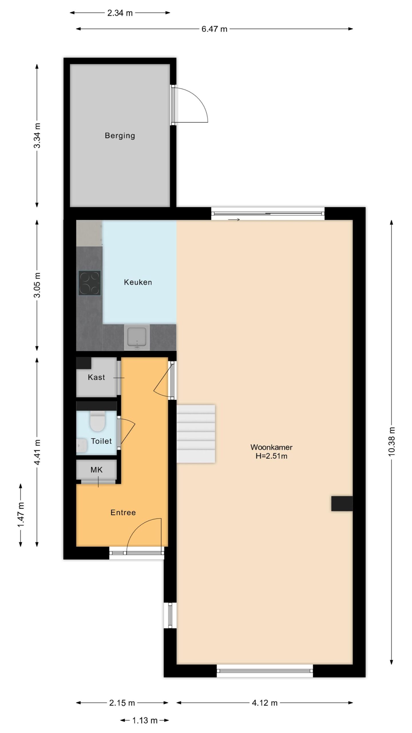
  • Living area121 m2
  • Content450 m3
  • Number of rooms4
  • Number of bedrooms4

Energy

  • Combi-boilerNee

Outdoor space

  • GardenGeen tuin
  • Back entranceNee

Parking

  • GarageNo garage

Other

  • Permanent residenceJa
  • Indoor maintenanceRedelijk
  • Outdoor maintenanceRedelijk
  • Current useLiving space
  • Current destinationLiving space

Can I afford this house?

Through this tool you calculate it within 1 minute!

Want to be 100% sure? Then request a consultation with a financial advisor. Click here.

This is where your dream home is located

Schedule a visit

"*" indicates required fields

This field is hidden when viewing the form
Het vestigingsnummer van het huidige object
This field is hidden when viewing the form
De url van object/woning
This field is hidden when viewing the form
De titel van object/woning
This field is hidden when viewing the form