Andalusiëstraat 50, Alkmaar

kamers 4 · 145 m2

nl

**ENGLISH BELOW**

UITSTEKEND VERZORGDE EN RUIME TWEE-ONDER-EENKAPWONING MET GROTE TUIN: DIRECT GRENZEND AAN EEN GROOT PARK

Beter dan dit kan het eigenlijk niet worden: in een kindvriendelijke woonwijk, aan het einde van een rustige straat en omgeven door een groot, groen park. Hier word je nog wakker met het geluid van fluitende vogels om je heen, wandel je vanuit de deur zo het 'Groene Voet' park in, bijvoorbeeld om de hond uit te laten op het hondenspeelveld, en kunnen de kinderen naar hartenlust buitenspelen in de grote speeltuin. Op schooldagen gaan je kinderen lopend naar de basisschool en/of kinderdagopvang en kun jij op slechts 750 meter van de woning terecht voor al je dagelijkse boodschappen in het buurtwinkelcentrum.

Niet alleen de locatie is ideaal voor gezinnen, maar ook het huis zelf kan een echt familiehuis genoemd worden: uitstekend verzorgd (lees: stressvrij verhuizen zonder te hoeven klussen!), ruim (145 m2 woonoppervlak) en voorzien van handige extra’s zoals een oprit, veel bergruimte en een grote, groene achtertuin op het zonnige zuiden.

Kortom, gewoon een héél fijne en ruime woning op een geweldige locatie!

Over de ligging en de buurt:
De woning is gelegen aan het einde van een rustige straat in de gemoedelijke woonwijk Daalmeer. De woonwijk is erg kindvriendelijk en gunstig gelegen met alle dagelijkse voorzieningen gewoon om de hoek: scholen, speeltuinen, parken, een supermarkt en andere winkels zijn allemaal in de directe nabijheid te vinden. Sportfaciliteiten (o.a. tennis en padel, korfbal, en een sportschool) bevinden zich tevens op loopafstand. Winkelcentrum de Mare ligt op 5 minuten van de woning en ook het gezellige centrum van Alkmaar is vanuit de woning goed en snel te bereiken met zowel de fiets, de auto als met het openbaar vervoer. Treinstation Alkmaar Noord bereik je al in iets minder dan 10 minuten fietsen en biedt goede treinverbindingen in uiteenlopende richtingen. Ook zijn de uitvalswegen richting Alkmaar, Haarlem, Amsterdam en de kop van Noord-Holland snel en gemakkelijk aan te rijden.

Indeling van de woning:

Begane grond:
Via de ruime voortuin met oprit bereik je de voordeur van de woning. Rechts van de voordeur is er toegang tot de berging.

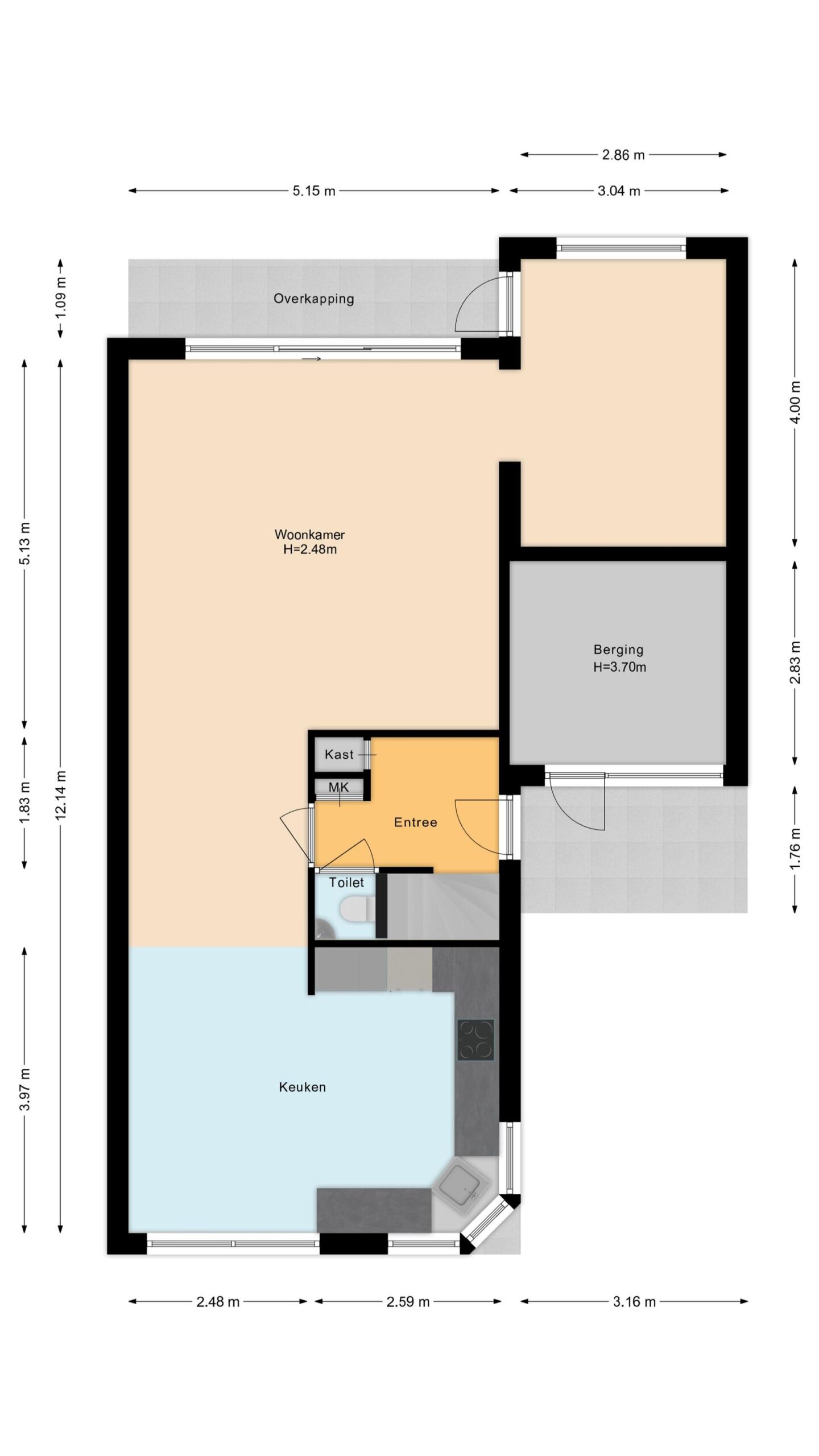
Achter de voordeur vind je de entree met garderobe, meterkast, gastentoilet met fonteintje, trapopgang naar de eerste verdieping en de toegang tot de royale woonkamer met open keuken.

De woonkamer is tuingericht, geniet van veel lichtinval en beschikt over een fraaie PVC-vloer met vloerverwarming. Omdat de voormalige garage deels betrokken is bij de woonkamer, profiteer je van ontzettend veel ruimte. Via een grote schuifpui en een extra achterdeur is er toegang tot de achtertuin.

De ruime en moderne keuken bevindt zich aan de voorzijde van de woning en beschikt over een inductiekookplaat, oven, Quooker, koelkast, vriezer en een vaatwasser.

Eerste verdieping:
Via de trap in de hal bereik je de overloop van de eerste verdieping. Hier vind je 2 keurig afgewerkte slaapkamers met een laminaatvloer en de luxe badkamer. De nette en complete badkamer beschikt over inbouwspotverlichting, een tweede toilet, wastafel met meubel en een ruime inloopdouche met sunshower.

Tweede verdieping:
Via de vaste trap op de eerste verdieping bereik je de ruime tweede verdieping met overloop en derde slaapkamer. Het hoge nokplafond geeft deze ruimte een luxe uitstraling én de gelegenheid om er een vierde slaapkamer bij te maken. Op de overloop is een ruime opstelplaats voor de wasmachine en droger aanwezig.

Tuin:
De ruime, groene achtertuin op het zonnige zuiden beschikt over een groot betegeld terras met overkapping, veel groene borders en een grasveld. Achterin de tuin is een tweede terras onder een overkapping aanwezig en tevens staat er in de tuin een handige houten berging. Omdat de tuin direct grenst aan het park (geen achterburen!) wordt het natuurlijke en groene effect van de tuin alleen nog maar versterk. Dit is dan ook een voortreffelijke, stille en beschutte plek om volop te genieten van het buitenleven.

Parkeren:
Vrij parkeren in de buurt en op de eigen oprit.

Kenmerken van de woning:
• Ruime en uitstekend verzorgde twee-onder-een-kapwoning
• Grote, groene achtertuin op het zuiden die direct grenst aan het park (geen achterburen!)
• Zeer gunstige woonstand: aan het einde van de straat en rondom omgeven door een groot park
• 3 slaapkamers
• Parkeergelegenheid op eigen terrein
• Rustige en kindvriendelijke buurt dichtbij o.a. kinderopvang, lagere en middelbare scholen en diverse sportfaciliteiten zoals tennis/padel, korfbal, fitness
• Gunstige ligging nabij alle dagelijkse voorzieningen en dichtbij het centrum van Alkmaar en de uitvalswegen
• Energielabel: B
• Volledig eigendom

---------------------------------------------------------------------------------------------------------------------

PERFECTLY MAINTAINED AND SPACIOUS SEMI-DETACHED HOUSE IN A TOP LOCATION IN ALKMAAR: DIRECTLY ADJACENT TO A LARGE PARK

It really doesn’t get much better than this: located in a child-friendly residential area, at the end of a quiet street and surrounded by a large, green park. Here, you still wake up to the sound of birds singing, step straight from your front door into the “Groene Voet” park—perfect for walking the dog at the designated dog play area—and children can enjoy hours of outdoor fun in the large playground. On school days, your children can walk to the primary school and/or daycare, and all your daily shopping needs are just 750 metres away at the local neighbourhood shopping centre.

Not only is the location ideal for families, but the house itself truly deserves to be called a family home: excellently maintained (read: a stress-free move with no renovation work required!), spacious (145 m² of living space), and featuring practical extras such as a private driveway, ample storage space, and a large, green south-facing backyard.

In short, simply a very pleasant and spacious home in a fantastic location!

About the location and the neighbourhood:
The property is situated at the end of a quiet street in the friendly residential area of Daalmeer. This neighbourhood is very child-friendly and conveniently located, with all daily amenities just around the corner: schools, playgrounds, parks, a supermarket, and various other shops are all close by. Sports facilities (including tennis and padel, korfball, and a gym) are also within walking distance. Shopping centre De Mare is only five minutes away, and the lively city centre of Alkmaar is easily and quickly accessible by bike, car, or public transport. Alkmaar Noord railway station can be reached in just under 10 minutes by bike and offers excellent train connections in various directions. Major roads leading to Alkmaar, Haarlem, Amsterdam and the northern part of North Holland are also quick and easy to access.

Layout of the house:

Ground floor:
Through the spacious front garden with driveway you reach the front door of the house.

Behind the front door, you find the entrance with wardrobe, meter closet, guest toilet with hand basin, staircase to the first floor and access to the spacious living room with open kitchen.

The living room is garden oriented, enjoys plenty of natural light and has a beautiful PVC laminate floor. Because the former garage is partly involved in the living room, you profit from lots of space. Through a large sliding door and an additional back door, there is access to the backyard.

The modern kitchen is located at the front of the house and is equipped with a induction hob, oven, Quooker tap, fridge, freezer and a dishwasher.

First floor:
Through the stairs in the hall you reach the landing of the first floor. Here you find 2 nicely finished bedrooms with a laminate floor, as well as the luxury bathroom with recessed spotlights, a second toilet, a washbasin with a vanity unit and a large walk-in shower with sunshower.

Second floor:
The fixed staircase on the first floor leads to the spacious second floor with landing and third bedroom. The high pitched ceiling gives this space a luxurious look and the opportunity to add a fourth bedroom. The landing has ample space for a washing machine and dryer.

Garden:
The spacious, green backyard on the sunny south features a large tiled terrace under a canopy, many green borders and a lawn. At the back of the garden there is another covered terrace and the garden also has a handy wooden shed. Because the garden is directly adjacent to the park (no rear neighbours!) The natural and green effect of the garden is strengthened even more. This is therefore an excellent, quiet and sheltered place to fully enjoy outdoor living.

Parking:
Free parking nearby and on your own driveway.

Features of the property:
• Spacious and perfectly maintained semi-detached house
• Large, green backyard facing south and directly adjacent to a park (no rear neighbours!)
• Very convenient location: surrounded by a large park
• 3 bedrooms
• Parking space on site (driveway and garage)
• Quiet and childfriendly neighbourhood near e.g. childcare, primary and secondary schools and several sport facilities such as tennis/padel, korfbal and fitness
• Conveniently located near all daily amenities and close to the centre of Alkmaar and highways
• Energy label: B
• Full ownership

Kenmerken

Overdracht

  • StatusBeschikbaar
  • KoopprijsVraagprijs € 695.000,- k.k.

Bouwvorm

  • Soort objectWoonhuis
  • Soort woningEengezinswoning
  • Type woningTwee onder één kapwoning
  • Bouwjaar1986
  • BouwvormBestaande bouw
  • LiggingenAan park, In woonwijk, Beschutte ligging

Indeling

  • Woonoppervlakte145 m2
  • Perceeloppervlakte313 m2
  • Inhoud575 m3
  • Aantal kamers4
  • Aantal slaapkamers3
  • Aantal badkamers1

Energie

  • EnergieklasseB
  • VerwarmingCV ketel
  • C.V.-KetelATAG
  • Bouwjaar C.V.-Ketel2022
  • WarmwaterCV ketel
  • IsolatieDakisolatie, Muurisolatie, Vloerisolatie, Volledig geïsoleerd, HR glas
  • CombiketelJa
  • BrandstofGas
  • EigendomEigendom

Buitenruimte

  • TuinAchtertuin, Voortuin
  • HoofdtuinAchtertuin
  • Oppervlakte128 m2
  • Ligging hoofdtuinZuid
  • AchteromNee
  • Kwaliteit tuinFraai aangelegd

Bergruimte

  • Schuur / BergingAangebouwd steen
  • VoorzieningenVoorzien van elektra, Voorzien van water, Met vliering
  • Totaal aantal2

Parkeergelegenheid

  • Parkeer faciliteitenOpenbaar parkeren, Op eigen terrein
  • GarageGeen garage

Dak

  • Soort dakDwarskap
  • Materiaal dakPannen

Overig

  • Permanente bewoningJa
  • Onderhoud binnenUitstekend
  • Onderhoud buitenUitstekend
  • Huidig gebruikWoonruimte
  • Huidige bestemmingWoonruimte

VLIEG Makelaars: Andalusiëstraat 50, ALKMAAR

Kan ik dit huis betalen?

Via deze tool bereken je het binnen 1 minuut!

Wil je het 100% zeker weten? Vraag dan een adviesgesprek aan met een financieel adviseur. Klik hier.

Hier staat jouw droomwoning

Plan een bezichtiging

"*" geeft vereiste velden aan

Dit veld is verborgen bij het bekijken van het formulier
Het vestigingsnummer van het huidige object
Dit veld is verborgen bij het bekijken van het formulier
De url van object/woning
Dit veld is verborgen bij het bekijken van het formulier
De titel van object/woning
Dit veld is verborgen bij het bekijken van het formulier