Huibert Pootlaan 228, Alkmaar

kamers 2 · 67 m2

nl

**ENGLISH BELOW**

LICHT HOEKAPPARTEMENT OP EEN CENTRALE LOCATIE

Nieuw in de verkoop bieden wij aan: een naar eigen smaak te renoveren appartement met een grote hoeveelheid lichtinval, een ruim balkon, (fietsen)berging en handige locatie. Je woont hier in het prettige zuiden van Alkmaar, om de hoek van een bushalte, op 5 minuten lopen van het buurtwinkelcentrum en op 10 minuten fietsen van de binnenstad.

Maak jij van dit appartement jouw thuis? Kom snel langs voor een bezichtiging.

Over de ligging en de buurt:
Het appartement heeft een super centrale ligging in Alkmaar Zuid. Zo vind je op 5 minuten lopen het buurtwinkelcentrum Overdie en de Albert Heijn XL met alles wat je nodig hebt voor je dagelijkse boodschappen. Het centrum van Alkmaar is ook dichtbij, op 10 minuten fietsafstand. Het groene stadspark Oosterhout bevindt zich op korte afstand en is een perfecte plek om lekker te sporten. De bus heeft een halte vrijwel direct om de hoek en biedt een snelle verbinding naar o.a. het centrum. Heb je een baan buiten de stad, dan woon je hier ook ideaal met de A9 richting Haarlem en Amsterdam zo goed als om de hoek.

Indeling van de woning:

Begane grond:
Centrale gesloten entree met brievenbussen, intercom en toegang tot de eigen (fietsen)berging in de onderbouw van het complex.

Appartement:
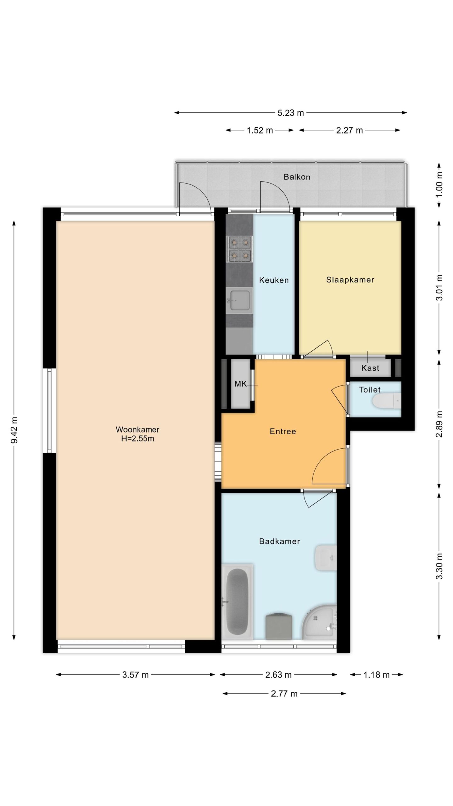
Via het centrale trappenhuis komen we aan bij het appartement op de eerste verdieping. Achter de voordeur vinden we de centrale hal die toegang biedt tot alle ruimtes van het appartement.

De ruime doorzonwoonkamer is gelegen op een hoek geniet van een grote hoeveelheid lichtinval door de aanwezigheid van raampartijen langs 3 zijden. Het opsplitsen van deze ruimte om zo een extra (slaap)kamer te realiseren, is zeker mogelijk.

De keuken bevindt zich in een aparte ruimte en is gedateerd.

Zowel de woonkamer als de keuken bieden toegang tot het ruime balkon op het westen dat uitkijkt over een groenstrook.

De badkamer is gedateerd maar wel ontzettend ruim en biedt zodoende meer dan genoeg plek voor zowel een groot wastafelmeubel, ligbad als een ruime douche. Tevens bevinden zich hier de aansluitingen voor de witgoedopstelling. Het toilet bevindt zich in een aparte ruimte.

Parkeren en berging:
Er is parkeergelegenheid rondom de flat en de woning beschikt over een eigen (fietsen)berging in de onderbouw van het complex. De berging is voorzien van elektriciteit.

Kenmerken van de woning:
• Zonnig hoekappartement
• Kan naar eigen smaak gerenoveerd worden
• 1 slaapkamer, extra slaapkamer is gemakkelijk te realiseren
• Ruim balkon op het westen
• Grote badkamer
• Eigen (fietsen)berging
• Gelegen op een uitermate centrale locatie: nabij winkels, sportvelden, uitvalswegen (A9) en het centrum van Alkmaar
• Energielabel: F
• Volledige eigendom
• De niet-zelf bewonings, de ouderdoms en de 'as is, where is' clausules zijn van toepassingĀ 

-------------------------------------------------------------------------------------------------------------------------------------------------

CORNER APARTMENT WITH LOTS OF NATURAL LIGHT AND A CENTRAL LOCATION

New for sale we offer: an appartment that can be renovated according to your own taste and wishes that features lots of natural light, a spacious balcony, a (bicycle) storage room and a a handy location.

You live here on the great south side of Alkmaar, just around the corner from a bus stop, at a 5-minute walk from the local shopping centre and at a 10-minute bike ride from the city centre.

Will you make this house your home? Come along quickly for a viewing!

About the location and the neighbourhood:
The flat has a super central location in Alkmaar South. For instance, at a 5-minute walk, you will find the local shopping centre Overdie and the Albert Heijn XL with everything you need for your daily groceries. In 10 minutes by bike, you will reach the cosy centre of Alkmaar. The green Oosterhout city park is close to the apartment complex and is the perfect place to enjoy some exercise. The bus has a stop just around the corner and offers a quick connection towards the city centre. If you have a job outside the city, you will also live ideally here with the A9 towards Haarlem and Amsterdam practically around the corner.

Property layout:
Ground floor:
Central closed entrance with mailboxes, intercom and access to private (bicycle) storeroom in the basement of the complex.

Apartment:
Through the central staircase, we arrive at the apartment on the first floor. Behind the front door, we find the central hallway that provides access to all areas of the apartment.

The spacious living room is located on a corner and enjoys a large amount of natural light thanks to the windows along 3 sides. It would certainly be possible to divide this space to create an extra (bed)room.

The kitchen is located in a separate room and is outdated.

Both the living room and the kitchen provide access to the spacious, west-facing balcony that overlooks a green area.

The bathroom is dated but very spacious, offering more than enough room for a large washbasin, vanity unit, bathtub and a spacious shower. The connections for the white goods set-up are also located here. The toilet is located in a separate room.

Parking and storage:
There is parking space around the flat and the property has its own (bicycle) storeroom in the basement of the complex. The storeroom is equipped with electricity and you will also find the connections for the white goods set-up here.

Property features:
• Sunny corner apartment
• Can be renovated according to your own taste and wishes
• 1 bedroom, an extra bedroom can easily be realised
• Spacious balcony facing west
• Large bathroom
• Located in a very central location: near shops, sports fields, highways (A9) and the city centre of Alkmaar
• Energy label: F
• Full ownersh
• The non-occupancy clause, the age clause and the ā€œas is, where isā€ clauses apply.Ā 

Kenmerken

Overdracht

  • StatusOnder bod
  • KoopprijsVraagprijs € 229.000,- k.k.

Bouwvorm

  • Soort objectAppartement
  • Bouwjaar1964
  • BouwvormBestaande bouw
  • LiggingenIn woonwijk

Indeling

  • Woonoppervlakte67 m2
  • Inhoud217 m3
  • Aantal kamers2
  • Aantal slaapkamers1
  • Aantal badkamers1
  • Aantal woonlagen1

Energie

  • EnergieklasseF
  • VerwarmingCV ketel
  • C.V.-KetelIntergas HRE 24/18
  • Bouwjaar C.V.-Ketel2018
  • WarmwaterCV ketel
  • CombiketelJa
  • BrandstofGas
  • EigendomEigendom

Buitenruimte

  • TuinGeen tuin
  • AchteromNee

Bergruimte

  • Schuur / BergingBox
  • VoorzieningenVoorzien van verwarming, Voorzien van elektra, Voorzien van water
  • Totaal aantal1

Parkeergelegenheid

  • Parkeer faciliteitenOpenbaar parkeren
  • GarageGeen garage

Overig

  • Permanente bewoningJa
  • Onderhoud binnenMatig tot redelijk
  • Onderhoud buitenGoed
  • Huidig gebruikWoonruimte
  • Huidige bestemmingWoonruimte

VLIEG Makelaars: Huibert Pootlaan 228, ALKMAAR

Kan ik dit huis betalen?

Via deze tool bereken je het binnen 1 minuut!

Wil je het 100% zeker weten? Vraag dan een adviesgesprek aan met een financieel adviseur. Klik hier.

Hier staat jouw droomwoning

Plan een bezichtiging

"*" geeft vereiste velden aan

Dit veld is verborgen bij het bekijken van het formulier
Het vestigingsnummer van het huidige object
Dit veld is verborgen bij het bekijken van het formulier
De url van object/woning
Dit veld is verborgen bij het bekijken van het formulier
De titel van object/woning
Dit veld is verborgen bij het bekijken van het formulier