Stalpaertstraat 117, Alkmaar

kamers 2 · 56 m2

nl

**ENGLISH BELOW**

IDEAAL VOOR WIE OP ZOEK IS NAAR EEN LUXE EN INSTAPKLAAR APPARTEMENT

Dit prachtig gerenoveerde en slim ingedeelde tweekamerappartement – inclusief zonnig balkon en een handige, eigen (fietsen)berging – biedt jou een fantastische mogelijkheid om een volledig verzorgde woning te kopen. Je hoeft alleen maar je eigen spullen te verhuizen en het genieten kan beginnen van deze heerlijke plek!

Over de ligging en de buurt:
Het appartement heeft een centrale ligging in Alkmaar Zuid. Zo vind je op nog geen 10 minuten lopen óf een paar minuten fietsen het buurtwinkelcentrum op het Geert Groteplein met alles wat je nodig hebt voor je dagelijkse boodschappen. Fiets nog even door en je bereikt in iets meer dan 5 minuten het gezellige centrum van Alkmaar. Het groene stadspark Oosterhout bevindt zich pal achter het appartementencomplex en is dé perfecte plek om te wandelen of te sporten. De bus heeft een halte op 220 meter afstand en biedt een snelle verbinding naar o.a. het centrum. Heb je een baan buiten de stad, dan woon je hier ook ideaal met de A9 richting Haarlem en Amsterdam zo goed als om de hoek.

Indeling van de woning:

Begane grond:
Centrale gesloten entree met brievenbussen, intercom en toegang tot de eigen (fietsen)berging in de onderbouw van het complex.

Appartement:
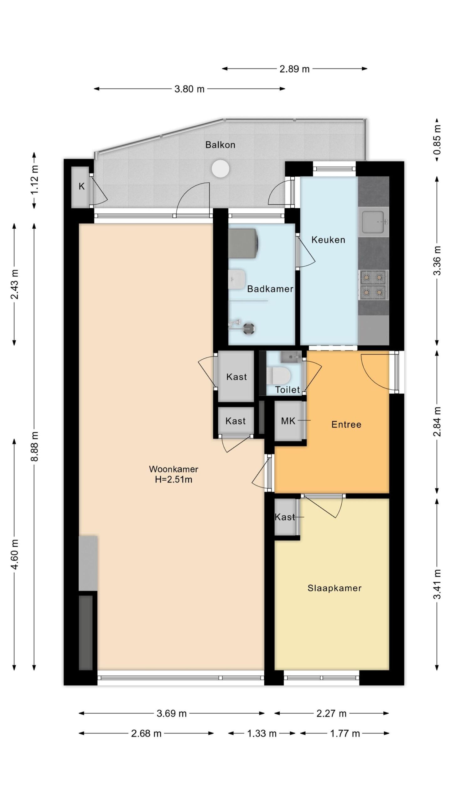
Via het centrale trappenhuis komen we aan bij het appartement op de vierde verdieping. Achter de voordeur vinden we de centrale hal die toegang biedt tot alle ruimtes van het appartement – behalve de badkamer welke toegankelijk is vanuit de keuken.

De gesloten keuken in rechte opstelling is modern uitgevoerd en voorzien van een gaskookplaat, koelkast, vriezer, oven en een vaatwasser. De keuken biedt toegang tot het ruime balkon, dat ook vanuit de woonkamer toegankelijk is.

De luxe badkamer is voorzien van inbouwspots, een inloopregendouche en een wastafel met meubel en geĆÆntegreerde opstelplaats voor de wasmachine. Het toilet met fonteintje bevindt zich in een aparte ruimte.

De verrassend ruime doorzonwoonkamer geniet van een grote hoeveelheid lichtinval door de aanwezigheid van grote raampartijen aan beide zijden. De gezellige haard (bio-ethanol) zorgt voor veel sfeer in de ruimte en omdat de ondergaande zon in het appartement schijnt, heb je iedere dag profijt van het 'golden hour'!

Het balkon is ruim, deels overdekt en voorzien van een handige balkonkast.

De woning beschikt over 1 slaapkamer met inbouwwandkast. Ook in de woonkamer is ingebouwde kastruimte aanwezig.

Het gehele appartement is netjes afgewerkt en voorzien van een laminaatvloer, zwarte accenten (deurbeslag, deurgrepen, stopcontacten), akoestische panelen en een radiatorombouw.

Parkeren en berging:
Er is parkeergelegenheid rondom de flat en je beschikt over een eigen (fietsen)berging in de onderbouw van het complex.

Kenmerken van de woning:
• Luxe en helemaal instapklaar tweekamerappartement
• Prachtig gerenoveerd met oog voor detail
• Zonnig en ruim balkon
• Eigen (fietsen)berging
• Gelegen op een uitermate centrale locatie: nabij winkels, sportvelden, uitvalswegen (A9) en het centrum van Alkmaar
• Energielabel: F
• Gemeentelijk erfpacht tot 1 januari 2035, de jaarlijkse canon van € 51,28 is verwerkt in de servicekosten via de VVE

----------------------------------------------------------------------------------------------------------------------------------------------

IDEAL FOR THOSE LOOKING FOR A LUXURY AND TURNKEY APARTMENT

This high-end renovated and cleverly designed two-room flat - including a sunny balcony and handy, private (bicycle) storage room - offers you a fantastic opportunity to purchase a fully equipped home. All you need to do is move your own belongings in and you can start enjoying this wonderful place!

About the location and the neighbourhood:
The flat has a super central location in Alkmaar South. For instance, at less than a 10-minute walk or a few minutes by bike you will find the local shopping centre on the Geert Groteplein with everything you need for your daily groceries. Cycle a little further and you will reach the cosy centre of Alkmaar in just over 5 minutes. The green Oosterhout city park is located right behind the apartment complex and is the perfect place to enjoy some exercise. The bus has a stop 220 metres away and offers a quick connection towards the city centre. If you have a job outside the city, you will also live ideally here with the A9 towards Haarlem and Amsterdam practically around the corner.

Layout of the property:

Ground floor:
Central closed entrance with mailboxes, intercom and access to private (bicycle) storeroom in the basement of the complex.

Flat:
We arrive at the fourth-floor flat via the central staircase. Behind the front door, we find the central hallway that provides access to all areas of the flat – except for the bathroom which is accessible from the kitchen.

The luxurious bathroom features recessed spotlights, a walk-in rain shower and a washbasin with cabinet and integrated space for the washing machine. The toilet with hand basin is located in a separate room.

The surprisingly spacious living room enjoys a large amount of light thanks to the large windows on both sides. The cosy fireplace (bio-ethanol) creates a lot of atmosphere in the room and because the setting sun shines into the flat, you can enjoy the golden hour every day!

The balcony is wonderfully spacious, partially covered and equipped with a handy balcony cupboard.

The property has 1 spacious bedroom with a built-in wardrobe. There is also built-in cupboard space in the living room.

The entire flat is neatly finished and features laminate flooring, black accents (door fittings, door handles, sockets), acoustic panels, and a radiator cover.

Parking and storage:
Parking is available around the flat and you have your own (bicycle) storeroom in the basement of the complex.

Property features:
• Luxury and 100% move-in ready two-room apartment
• High-end renovation with attention to detail
• Sunny and very spacious balcony
• Private (bicycle) storage room
• Located in a very central location: near shops, sports fields, arterial roads (A9) and the city centre of Alkmaar
• Leasehold until 1 January 2035, the annual ground rent of €51.28 is included in the service charges via the owners' association.

Kenmerken

Overdracht

  • StatusOnder bod
  • KoopprijsVraagprijs € 265.000,- k.k.

Bouwvorm

  • Soort objectAppartement
  • Bouwjaar1960
  • BouwvormBestaande bouw
  • LiggingenIn woonwijk

Indeling

  • Woonoppervlakte56 m2
  • Inhoud184 m3
  • Aantal kamers2
  • Aantal slaapkamers1
  • Aantal badkamers1
  • Aantal woonlagen1

Energie

  • EnergieklasseF
  • VerwarmingCV ketel
  • C.V.-KetelIntergas
  • Bouwjaar C.V.-Ketel2020
  • WarmwaterCV ketel
  • IsolatieDubbelglas
  • CombiketelJa
  • BrandstofGas
  • EigendomEigendom

Buitenruimte

  • TuinGeen tuin
  • AchteromNee

Bergruimte

  • Schuur / BergingBox
  • VoorzieningenVoorzien van elektra
  • Totaal aantal1

Parkeergelegenheid

  • Parkeer faciliteitenOpenbaar parkeren
  • GarageGeen garage

Dak

  • Soort dakPlat dak

Overig

  • Permanente bewoningJa
  • Onderhoud binnenGoed
  • Onderhoud buitenGoed
  • Huidig gebruikWoonruimte
  • Huidige bestemmingWoonruimte

VLIEG Makelaars: Stalpaertstraat 117, ALKMAAR

Kan ik dit huis betalen?

Via deze tool bereken je het binnen 1 minuut!

Wil je het 100% zeker weten? Vraag dan een adviesgesprek aan met een financieel adviseur. Klik hier.

Hier staat jouw droomwoning

Plan een bezichtiging

"*" geeft vereiste velden aan

Dit veld is verborgen bij het bekijken van het formulier
Het vestigingsnummer van het huidige object
Dit veld is verborgen bij het bekijken van het formulier
De url van object/woning
Dit veld is verborgen bij het bekijken van het formulier
De titel van object/woning
Dit veld is verborgen bij het bekijken van het formulier