Thomas à Kempislaan 24, Amstelveen

kamers 4 · 88 m2

nl

Eengezinswoning op A-locatie zoekt nieuwe eigenaar met oog voor (uitbreidings)mogelijkheden!

Deze kansrijke eindwoning van 88,4 m2 is gelegen op een ruim perceel en biedt je de mogelijkheid om vele vierkante meters aan extra woongenot toe te voegen. Denk aan een dakopbouw, een aanbouw aan de achterzijde én een aanbouw aan de zijkant van het huis. De grote tuin is gelegen op het zuid-oosten en biedt – ook na een eventuele uitbreiding van de woning – ruimvoldoende plek om te genieten van het buitenleven.

Het enige wat je niet kunt veranderen, is de locatie van de woning, maar die is gelukkig pérfect: gelegen aan het einde van een groene en rustige straat, met direct naast de woning een groen parkje met speeltuin. De woning bevindt zich op 10 minuten fietsen van het Stadshart van Amstelveen en nog dichterbij de tramverbinding naar Amsterdam station Zuid.

En, beginnen jouw handen al te jeuken om te beginnen aan dit project?

Over de ligging en de buurt:
De woning is gelegen op een echte A-locatie in Amstelveen, in de populaire Keizer Karelpark wijk. Het is een zeer kindvriendelijke wijk met scholen, kinderopvang, speeltuinen en de internationale school van Amsterdam op loop- of korte fietsafstand van de woning. In de directe omgeving van de woning bevinden zich meerdere supermarkten, winkels en speciaalzaken. Tevens bevindt de woning zich op korte fietsafstand van het overdekte Stadshart van Amstelveen met een ruim aanbod van supermarkten, winkels, horecagelegenheden, een bioscoop, poppodium en een bibliotheek. Elke vrijdag is er tevens een grote markt op het Stadsplein met een gevarieerd aanbod van (vers)kraampjes. Even uitwaaien kan in het nabijgelegen Amsterdamse Bos en De Poel. De bereikbaarheid van de woning is zowel met openbaar vervoer als met de auto uitstekend: de A9 richting Amsterdam, Schiphol en Utrecht is binnen enkele minuten aan te rijden, er is een tramhalte naar Amsterdam Zuid op loopafstand en vanaf het busstation op 5 minuten fietsen vanaf de woning zijn er uitstekende ov-verbindingen in uiteenlopende richtingen.

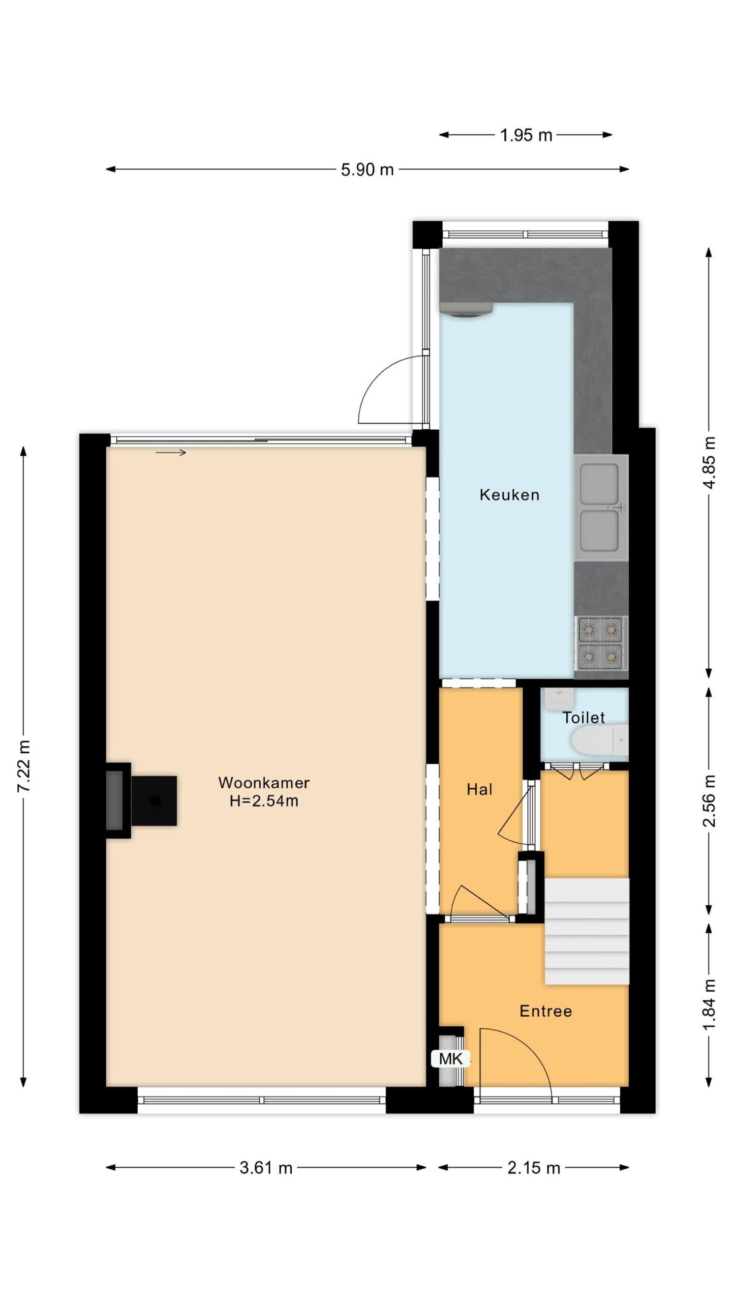
Indeling van de woning:
Begane grond:
Via de ruime voortuin bereiken we de voordeur van de woning.

Achter de voordeur vinden we de entree met garderobe, meterkast, trapopgang naar de eerste verdieping en de toegang een extra hal die toegang biedt tot het toilet met fonteintje en tot de woonkamer.

De doorzonwoonkamer strekt zich uit over de gehele lengte van het huis en laat via grote raampartijen aan zowel de voor- als achterzijde een grote hoeveelheid lichtinval naar binnen.

De woonkamer heeft een gezellige haard en is afgewerkt met een combinatie van tapijt en marmer. Een grote schuifpui biedt toegang tot de achtertuin.

De halfopen keuken bevindt zich aan de tuinzijde van de woning en beschikt over een gasfornuis, koelkast en biedt ruimte voor een wasmachine. Tevens is hier een extra achterdeur naar de tuin aanwezig.

Eerste verdieping:
Via de trap in de hal, bereiken we de overloop van de eerste verdieping.

Op deze verdieping vinden we 3 slaapkamers en de badkamer. Alle slaapkamers zijn afgewerkt met tapijt en 2 slaapkamers beschikken over handige inbouwwandkasten.

De badkamer beschikt over een wastafel en een douche.

Zolder:
De woning beschikt over een vlieringzolder met bergruimte.

Tuin:
De grote achtertuin is gelegen op het oosten en fraai aangelegd met een speelse afwisseling van groene borders en betegelde terrassen. Tevens staan er mooie, privacy biedende leibomen in de tuin. Helemaal achterin de tuin staat een handige stenen berging welke voorzien is van elektriciteit.

Parkeren:
Er is parkeergelegenheid rond het huis.

Kenmerken van de woning:
• Naar eigen smaak te moderniseren eengezinswoning met heel veel mogelijkheden
• Veel uitbreidingsmogelijkheden, zoals een dakopbouw of een aanbouw aan de achterkant of zijkant van het huis
• Grote tuin op het oosten
• Nieuwe cv-ketel
• Toplocatie nabij scholen, winkels, het Stadshart en het Amsterdamse Bos
• Gunstige ligging ten opzichte van de uitvalswegen (A9) en het openbaar vervoer
• Energielabel: F
• Volledig eigendom
• In de koopakte worden de volgende clausules opgenomen: niet-bewonersclausule, ouderdomsclausule en asbestclausule

Kenmerken

Overdracht

  • StatusOnder bod
  • KoopprijsVraagprijs € 625.000,- k.k.

Bouwvorm

  • Soort objectWoonhuis
  • Soort woningEengezinswoning
  • Type woningHoekwoning
  • Bouwjaar1961
  • BouwvormBestaande bouw
  • LiggingenIn woonwijk

Indeling

  • Woonoppervlakte88 m2
  • Perceeloppervlakte198 m2
  • Inhoud343 m3
  • Aantal kamers4
  • Aantal slaapkamers3
  • Aantal badkamers1

Energie

  • EnergieklasseF
  • VerwarmingCV ketel
  • C.V.-KetelHR-ketel
  • Bouwjaar C.V.-Ketel2024
  • WarmwaterGeiser eigendom
  • IsolatieDubbelglas
  • CombiketelNee
  • BrandstofGas
  • EigendomEigendom

Buitenruimte

  • TuinAchtertuin, Voortuin, Zijtuin
  • HoofdtuinAchtertuin
  • Oppervlakte81 m2
  • Ligging hoofdtuinZuidoost
  • AchteromJa
  • Kwaliteit tuinVerzorgd

Bergruimte

  • Schuur / BergingVrijstaand steen
  • VoorzieningenVoorzien van elektra
  • IsolatieGeen isolatie
  • Totaal aantal1

Parkeergelegenheid

  • Parkeer faciliteitenOpenbaar parkeren
  • GarageGeen garage

Dak

  • Soort dakZadeldak
  • Materiaal dakBitumineuze Dakbedekking

Overig

  • Permanente bewoningJa
  • Onderhoud binnenGoed
  • Onderhoud buitenGoed
  • Huidig gebruikWoonruimte
  • Huidige bestemmingWoonruimte

VLIEG Makelaars: Thomas Kempislaan 24, AMSTELVEEN

Kan ik dit huis betalen?

Via deze tool bereken je het binnen 1 minuut!

Wil je het 100% zeker weten? Vraag dan een adviesgesprek aan met een financieel adviseur. Klik hier.

Hier staat jouw droomwoning

Plan een bezichtiging

"*" geeft vereiste velden aan

Dit veld is verborgen bij het bekijken van het formulier
Het vestigingsnummer van het huidige object
Dit veld is verborgen bij het bekijken van het formulier
De url van object/woning
Dit veld is verborgen bij het bekijken van het formulier
De titel van object/woning
Dit veld is verborgen bij het bekijken van het formulier