Jan Luykenstraat 86, Haarlem

kamers 5 · 103 m2

nl

Grote jaren ’30 woning met mogelijkheden in het populaire Vondelkwartier!

Gelegen op een gunstige locatie in het geliefde Vondelkwartier, mogen wij deze grote jaren ’30 woning aanbieden. De laatste bewoners hebben dit huis maar liefst 55 jaar hun thuis genoemd, wat wel iets zegt over wat een fijne plek dit is om te wonen. De woning is altijd netjes onderhouden maar verdient cosmetisch een upgrade naar moderne maatstaven. Wie de potentie van dit huis herkent, heeft straks een parel van een woning in handen!

De eengezinswoning beschikt over een zonnige doorzonwoonkamer met typische jaren ’30 elementen zoals een hoog plafond, erker, gashaard en openslaande tuindeuren. De keuken bevindt zich nu nog in een aparte ruimte, maar een royale huiskamer met open leefkeuken is hier heel goed te realiseren. Op de eerste verdieping bevinden zich twee grote slaapkamers, een kleinere slaapkamer en de badkamer. Ook is er een vaste trap naar een ruime zolderverdieping die nog volop uitbreidingspotentieel biedt. Buiten kun je genieten van een gezellige en ruime tuin op het Zuidoosten.

Maak jij van dit huis jouw thuis? Kom snel langs voor een bezichtiging!

Over de ligging en de buurt:
Het huis is gelegen in het Vondelkwartier van Haarlem Noord, een kindvriendelijke en groene buurt met een grote sociale samenhang. Er zijn diverse scholen en sportvelden in de directe omgeving en ook woon je hier op korte afstand van het uitgebreide winkelcentrum aan het Marsmanplein. Hier kun je terecht voor je dagelijkse boodschappen, diverse winkels en horecagelegenheden. Je woont hier op korte afstand van Schoterbos, wat een mooie, groene plek is om te wandelen en sporten. De woning is op loopafstand van bushaltes met een directe verbinding naar zowel Station Haarlem Centraal als IJmuiden en Castricum. Het station Santpoort-Zuid is op 8 minuten fietsen. Het bruisende centrum van Haarlem bevindt zich op slechts een kwartier fietsafstand en zelfs het strand heb je hier onder handbereik, op een klein halfuur fietsen. Met een ligging vlakbij de N208, zijn ook de uitvalswegen zeer gemakkelijk en snel aan te rijden.

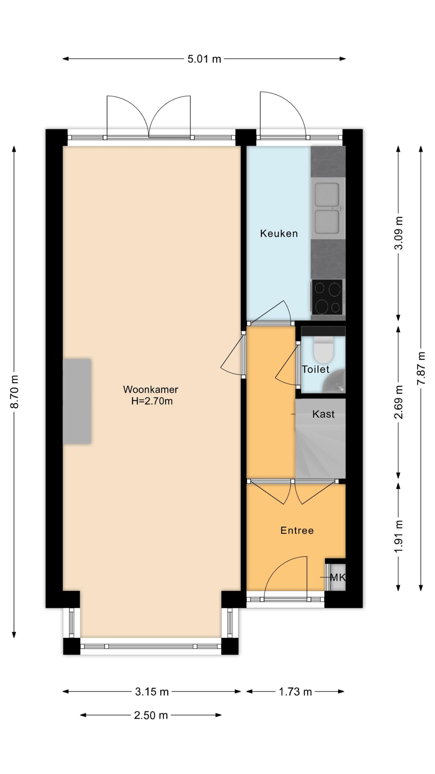
Indeling van de woning:
Begane grond:
Via de ruime en bestrate voortuin bereiken we de voordeur van de woning. Achter de voordeur vinden we de hal met de meterkast met daarachter de centrale gang met de trapopgang naar de eerste verdieping, het gastentoilet met fonteintje en de toegang tot zowel de woonkamer als tot de gesloten keuken.

De zonnige woonkamer strekt zich uit over de volledige lengte van de woning en wordt gekenmerkt door typische jaren ’30 elementen zoals een hoog plafond, erker, gashaard en openslaande tuindeuren. Het geheel is afgewerkt met een laminaatvloer.

De keuken bevindt zich in een aparte ruimte en heeft tevens een achterdeur naar de tuin.

Eerste verdieping:
Vanaf de overloop is er toegang tot twee grote slaapkamers, een kleinere derde slaapkamer en de badkamer. Alle slaapkamers zijn afgewerkt met een laminaatvloer en voorzien van ingebouwde kastruimte. De badkamer beschikt over een zwevend toilet, een wastafel met meubel en een douchecabine.

Tweede verdieping:
Er is een vaste trap naar de tweede verdieping met een mooie, grote zolderkamer. Het hoge plafond met zichtbare constructiebalken geeft de ruimte veel sfeer. Het is dan ook zeker mogelijk om hier ƩƩn of meerdere extra (slaap)kamer(s) te realiseren. De aansluitingen voor de witgoedopstelling bevinden zich ook op deze etage.

Tuin:
De woning beschikt over een gezellige en ruime tuin op het Zuidoosten die netjes is aangelegd met een groot betegeld terras afgewisseld met groene borders en gras. Tevens staat er in de tuin een ruime stenen berging welke voorzien is van elektriciteit. De tuin is toegankelijk via een achterom.

Parkeren:
Er is parkeergelegenheid rond het huis.

Kenmerken van de woning:
• Sfeervolle jaren ’30 woning met veel licht, ruimte en mogelijkheden
• Drie slaapkamers op de eerste verdieping en een grote zolder die mogelijkheden biedt voor meerdere extra (slaap) kamer(s)
• Gezellige tuin op het Zuidoosten met ruime stenen berging
• Voorzien van dubbel glas, met uitzondering van de zolder
• Gunstige ligging in het populaire Vondelkwartier
• Energielabel E
• Volledig eigendom

Kenmerken

Overdracht

  • StatusVerkocht o.v.
  • KoopprijsVraagprijs € 585.000,- k.k.

Bouwvorm

  • Soort objectWoonhuis
  • Soort woningEengezinswoning
  • Type woningTussenwoning
  • Bouwjaar1937
  • BouwvormBestaande bouw
  • LiggingenAan rustige weg, In woonwijk

Indeling

  • Woonoppervlakte103 m2
  • Perceeloppervlakte128 m2
  • Inhoud367 m3
  • Aantal kamers5
  • Aantal slaapkamers3
  • Aantal badkamers1

Energie

  • EnergieklasseE
  • VerwarmingCV ketel
  • WarmwaterCV ketel, Geiser eigendom
  • IsolatieGrotendeels dubbelglas
  • CombiketelJa
  • BrandstofGas
  • EigendomEigendom

Buitenruimte

  • TuinAchtertuin, Voortuin
  • HoofdtuinAchtertuin
  • Oppervlakte47 m2
  • Ligging hoofdtuinZuidoost
  • AchteromJa
  • Kwaliteit tuinNormaal

Bergruimte

  • Schuur / BergingVrijstaand steen
  • VoorzieningenVoorzien van elektra
  • Totaal aantal1

Parkeergelegenheid

  • Parkeer faciliteitenOpenbaar parkeren
  • GarageGeen garage

Dak

  • Soort dakZadeldak

Overig

  • Permanente bewoningJa
  • Onderhoud binnenRedelijk
  • Onderhoud buitenRedelijk tot goed
  • Huidig gebruikWoonruimte
  • Huidige bestemmingWoonruimte

VLIEG Makelaars: Jan Luykenstraat 86, HAARLEM

Kan ik dit huis betalen?

Via deze tool bereken je het binnen 1 minuut!

Wil je het 100% zeker weten? Vraag dan een adviesgesprek aan met een financieel adviseur. Klik hier.

Hier staat jouw droomwoning

Plan een bezichtiging

"*" geeft vereiste velden aan

Dit veld is verborgen bij het bekijken van het formulier
Het vestigingsnummer van het huidige object
Dit veld is verborgen bij het bekijken van het formulier
De url van object/woning
Dit veld is verborgen bij het bekijken van het formulier
De titel van object/woning
Dit veld is verborgen bij het bekijken van het formulier