Amstel 22, Heerhugowaard

kamers 5 · 112 m2

nl

** Interesse in deze woning? Graag uw bezichtigingsaanvraag via Funda of per email **

Wie op zoek is naar een scherp geprijsde, goed onderhouden, prachtig uitgebouwde gezinswoning met aangebouwde berging en vrij uitzicht, is hier aan het juiste adres!
Deze 5-kamerwoning is o.a. voorzien van een uitbouw aan de voor– en achterzijde, een half open moderne keuken (2003), deels voorzien van een domotica systeem, 4 slaapkamers en een heerlijke achtertuin op het zonnige zuidwesten. En dat allemaal op een steenworp afstand van winkels, parken en scholen.

Indeling:

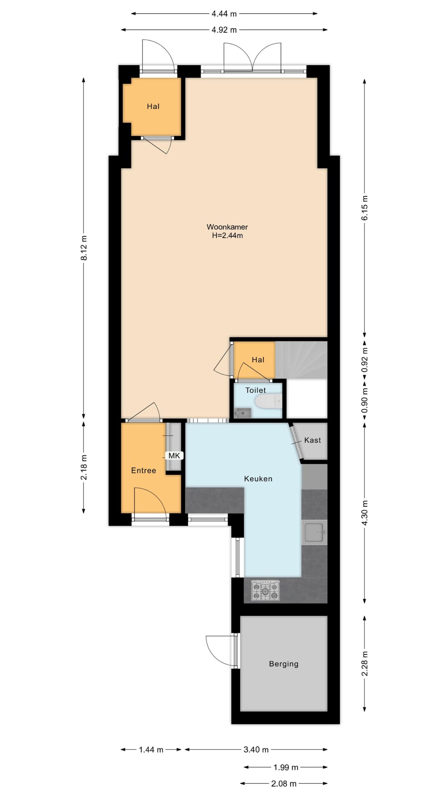
Begane grond:
Entree, berging, hal, meterkast, ruime uitgebouwde woonkamer (40m2!) met massief houten vloer en openslaande deuren, gespoten wanden en plafond met inbouwspots en rookmelder en een praktische hal aan de achterzijde.
Aan de voorzijde van de woning is de uitgebouwde half open keuken (2003) in L-opstelling geplaatst en voorzien van diverse inbouwapparatuur, waaronder een vaatwasser, koelkast, 5 pits gaskookplaat inclusief wokbrander, close-in boiler, carrousel kast, prachtig stenen aanrechtblad en nog een royale bergkast.
Tussenhal met toilet en fonteintje en trap naar 1e verdieping.

1e Verdieping:
Overloop met 3 royale slaapkamers, voorzien van een houten vloer, gespoten wanden en plafonds.
Geheel betegelde badkamer (2009) met wastafel met meubel (2024), spiegelkast, douchecabine en tweede toilet.

2e Verdieping:
Via een vaste trap is de gerenoveerde zolderverdieping bereikbaar. Hier is de 4e slaapkamer gerealiseerd! En wat voor een! Met een riante dakkapel en drie dakramen is het een prachtige kamer geworden, met vaste kasten en een zee aan bergruimte! Verder treft u hier nog een opstel plek voor de wasmachine en droger en de opstelling voor de CV-ketel (Remeha 2024) Ʃn nog meer bergruimte op de vliering!

Tuin:
De royale openslaande tuindeuren of de loopdeur geeft een prachtige overgang naar de zonnige en fraai aangelegde achtertuin welke op het zuidwesten gelegen is. Gezien de gunstige ligging en het ontbreken van achterburen heeft u veel privacy in de tuin.
Aan de voorzijde treft u een berging in de voortuin.

Parkeren:
er is een ruim parkeerterrein met voldoende parkeerplaatsen aan de achterzijde van de woning.

Bijzonderheden:

- Fraaie achtertuin gesitueerd op het zuidwesten;
- Kindvriendelijke wijk met voldoende parkeergelegenheid;
- Zonnescherm;
- Alarminstallatie inclusief rookmelders;
- Deels voorzien van een Z-wave domotica systeem
- Deels kunststof kozijnen; De houten kozijnen zijn in mei 2024 geschilderd;
- Nieuwe elektrische installatie (2016);
- Mechanische afzuiging in toilet en badkamer (2003);
- Keuken apparatuur deels vernieuwd (kookplaat, koelkast en vriezer in 2016 en vaatwasser in 2012);
- Op loopafstand van winkels, scholen, bushalte en park gelegen.
- Winkelcentrum Middenwaard en NS-station op enkele minuten fietsen;
- Definitief energielabel B.

Weer achter het net gevist? Met je eigen NVM-aankoopmakelaar, maak je meer kans op een woning.
Een NVM-aankoopmakelaar komt op voor Ćŗw belang en bespaart u tijd, geld en zorgen!

Kenmerken

Overdracht

  • StatusBeschikbaar
  • KoopprijsVraagprijs € 375.000,- k.k.

Bouwvorm

  • Soort objectWoonhuis
  • Soort woningEengezinswoning
  • Type woningTussenwoning
  • Bouwjaar1983
  • BouwvormBestaande bouw
  • LiggingenAan park, Aan drukke weg, In woonwijk, Vrij uitzicht

Indeling

  • Woonoppervlakte112 m2
  • Perceeloppervlakte122 m2
  • Inhoud414 m3
  • Aantal kamers5
  • Aantal slaapkamers4
  • Aantal badkamers1

Energie

  • EnergieklasseB
  • VerwarmingCV ketel
  • C.V.-KetelRemeha
  • Bouwjaar C.V.-Ketel2024
  • WarmwaterCV ketel
  • IsolatieVolledig geĆÆsoleerd
  • CombiketelJa
  • BrandstofGas
  • EigendomEigendom

Buitenruimte

  • TuinAchtertuin, Voortuin
  • HoofdtuinAchtertuin
  • Oppervlakte36 m2
  • Ligging hoofdtuinZuidwest
  • AchteromJa
  • Kwaliteit tuinVerzorgd

Bergruimte

  • Schuur / BergingAangebouwd hout
  • VoorzieningenVoorzien van elektra
  • Totaal aantal1

Parkeergelegenheid

  • Parkeer faciliteitenOpenbaar parkeren
  • GarageGeen garage

Dak

  • Soort dakSamengesteld dak
  • Materiaal dakPannen, Bitumineuze Dakbedekking
  • Toelichtingplatte dak aanbouw vernieuwd

Overig

  • Permanente bewoningJa
  • Onderhoud binnenGoed
  • Onderhoud buitenGoed
  • Huidig gebruikWoonruimte
  • Huidige bestemmingWoonruimte

Amstel 22 Heerhugowaard

Kan ik dit huis betalen?

Via deze tool bereken je het binnen 1 minuut!

Wil je het 100% zeker weten? Vraag dan een adviesgesprek aan met een financieel adviseur. Klik hier.

Hier staat jouw droomwoning

Plan een bezichtiging

"*" geeft vereiste velden aan

Dit veld is verborgen bij het bekijken van het formulier
Het vestigingsnummer van het huidige object
Dit veld is verborgen bij het bekijken van het formulier
De url van object/woning
Dit veld is verborgen bij het bekijken van het formulier
De titel van object/woning
Dit veld is verborgen bij het bekijken van het formulier