Karveel 57 45, Lelystad

kamers 5 · 127 m2

nl

ROYALE EN INSTAPKLARE TUSSENWONING MET BIJZONDERE SERRE IN GELIEFDE WOONWIJK!

Ben jij op zoek naar een instapklaar huis met lekker veel leefruimte, een fijne sfeer en met een rustige ligging in Lelystad? Bekijk dan zeker deze woning!

Parkeer je auto onder de carport van de eigen oprit, kom binnen en laat je verrassen door dit lichte huis. Beneden de gezellige tuingerichte woonkamer met bijzondere uitbouw (serre), gezellige houtkachel en open keuken; boven vind je 3 grote slaapkamers (mogelijkheid zelfs tot 5!), een ruime wasruimte en de badkamer. Buiten kun je volop genieten van de ruime achtertuin op het westen. Dankzij de kunststof / aluminium kozijnen, vernieuwde dakafwerking (dakpannen en bitumen) en vernieuwde binnen afwerking, zit je voorlopig onderhoudsarm.

Maak jij van dit huis jouw thuis? Kom snel langs voor een bezichtiging!

De gestelde prijs betreft een "bieden vanaf" prijs. Ieder serieus voorstel boven de genoemde ā€œbieden vanafā€ prijs zal door verkopers in overweging worden genomen.

Over de ligging en de buurt:
Deze tussenwoning (1978) is gelegen aan een rustige straat met alleen bestemmingsverkeer, in de wijk Het Karveel. De dichtstbijzijnde basisschool vind je op 5 minuten lopen en er zijn ook voorzieningen voor kinderopvang in de eigen wijk beschikbaar. Het buurtwinkelcentrum bevindt zich op 5 minuten fietsafstand, het centrum en treinstation van Lelystad zijn binnen een kwartier fietsen te bereiken en in het op korte afstand gelegen Bataviastad en Bataviahaven zijn ook diverse leuke winkels, terrasjes, cafƩs en restaurants te vinden. Liever even de stad uit? Met 2 minuten sta je al in het bos buiten Lelystad! Ook zijn de uitvalswegen uitstekend bereikbaar en heeft Lelystad een zeer gunstige ligging ten opzichte van de Randstad.

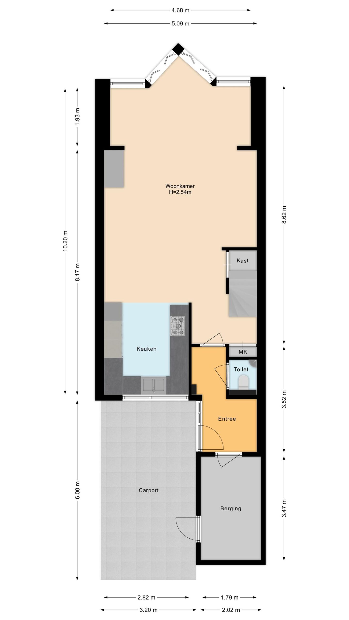
Indeling van de woning:
Begane grond:
Via de ruime betegelde voortuin met carport en handige stenen berging komen we aan bij de voordeur van het huis.

Achter de voordeur vinden we de entree met garderobe, inpandige toegang tot de berging, meterkast, gastentoilet met fonteintje en toegang tot de woonkamer met open keuken.

De tuingerichte woonkamer heeft een serre als uitbouw, die de ruimte voorziet van een grote hoeveelheid lichtinval en bovendien een uniek karakter aan de ruimte geeft. De houtkachel staat op een centrale plek in de ruimte zorgt daarnaast voor veel gezelligheid. Het geheel is afgewerkt met een keramisch parketvloer met vloerverwarming en met glad gestuukte wanden en plafond.

De moderne open keuken (2017) bevindt zich aan de voorzijde van de woning en is voorzien van Siemens apparatuur: een gasfornuis, design afzuigkap, oven, magnetron, koelkast, vriezer en een vaatwasser. Daarnaast is er een handige trapkast voor extra bergruimte.

Eerste verdieping:
Op deze verdieping vinden we 2 (voorheen 3) grote slaapkamers en de badkamer. Een indeling met 3 slaapkamers op deze etage is met een simpele verbouwing te realiseren.

De badkamer is voorzien van een tweede toilet, dubbele wastafel met meubel en een ligbad met douche.

Tweede verdieping:
Via de vaste trap op de eerste verdieping, bereiken we de overloop van de ruime tweede verdieping die toegang biedt tot de ruime 3e slaapkamer en de grote, aparte wasruimte waar ook de CV ketel aanwezig is. Eveneens is deze ruimte ook met een kleine aanpassing als slaapkamer in te richten.

Tuin:
De woning heeft een ruime achtertuin op het westen, grenzend aan een groenstrook, met een groot betegeld terras en achterin de tuin een handige houten berging met geschakelde overkapping en achterom.

Parkeren:
Parkeren op eigen terrein: oprit met carport.

Kenmerken van de woning:
• Ruime uitgebouwde eengezinswoning met veel leefruimte en grote, lichte kamers (5 slaapkamers mogelijk)
• Netjes onderhouden, luxe afgewerkt en instapklaar
• Dakpannen en bitumendak van de uitbouw vervangen in 2023
• Parkeren op eigen oprit met carport
• Gelegen in een zeer gewilde buurt op loopafstand van het Zuigerplasbos met het Speelschip, Batavia stad en dichtbij alle voorzieningen
• Energielabel: A, voorzien van 10 zonnepanelen!
• Aanvaarding in overleg (voorkeur voorjaar)

Kenmerken

Overdracht

  • StatusVerkocht o.v.
  • KoopprijsKoopsom € 419.500,- k.k.

Bouwvorm

  • Soort objectWoonhuis
  • Soort woningEengezinswoning
  • Type woningTussenwoning
  • Bouwjaar1978
  • BouwvormBestaande bouw
  • LiggingenAan rustige weg, In woonwijk, In bosrijke omgeving

Indeling

  • Woonoppervlakte127 m2
  • Perceeloppervlakte168 m2
  • Inhoud459 m3
  • Aantal kamers5
  • Aantal slaapkamers3
  • Aantal badkamers1

Energie

  • EnergieklasseA
  • VerwarmingCV ketel, Vloerverwarming gedeeltelijk
  • C.V.-KetelRemeha Avanta
  • Bouwjaar C.V.-Ketel2018
  • WarmwaterCV ketel
  • IsolatieDakisolatie, Vloerisolatie, Dubbelglas, HR glas
  • CombiketelJa
  • BrandstofGas
  • EigendomEigendom

Buitenruimte

  • TuinAchtertuin, Voortuin
  • HoofdtuinAchtertuin
  • Oppervlakte75 m2
  • Ligging hoofdtuinWest
  • AchteromJa
  • Kwaliteit tuinNormaal

Bergruimte

  • Schuur / BergingAangebouwd steen
  • VoorzieningenVoorzien van elektra
  • Totaal aantal2

Parkeergelegenheid

  • Parkeer faciliteitenOpenbaar parkeren, Op eigen terrein
  • GarageCarport, Parkeerplaats

Dak

  • Soort dakZadeldak
  • Materiaal dakPannen
  • ToelichtingVernieuwd 2022

Overig

  • Permanente bewoningJa
  • Onderhoud binnenGoed
  • Onderhoud buitenGoed
  • Huidig gebruikWoonruimte
  • Huidige bestemmingWoonruimte

Kan ik dit huis betalen?

Via deze tool bereken je het binnen 1 minuut!

Wil je het 100% zeker weten? Vraag dan een adviesgesprek aan met een financieel adviseur. Klik hier.

Hier staat jouw droomwoning

Plan een bezichtiging

"*" geeft vereiste velden aan

Dit veld is verborgen bij het bekijken van het formulier
Het vestigingsnummer van het huidige object
Dit veld is verborgen bij het bekijken van het formulier
De url van object/woning
Dit veld is verborgen bij het bekijken van het formulier
De titel van object/woning
Dit veld is verborgen bij het bekijken van het formulier