Iepenlaan 26, Schagen

kamers 5 · 122 m2

nl

ZEER NETTE GEZINSWONING MET 4 SLAAPKAMERS EN ZONNIGE TUIN OP HET ZUIDEN!

**ENGLISH TEXT BELOW**

Gelegen in de ruim opgezette en kindvriendelijke woonwijk Groeneweg, mogen wij deze ruime tussenwoning met het duurzame energielabel B aanbieden. De ruime woning van 122,3 m2 woonoppervlakte is ideaal voor gezinnen die op zoek zijn naar een goed onderhouden en mooi compleet huis dat van alle gemakken is voorzien.

Beneden vind je de zonnige doorzonwoonkamer met open keuken en ruime bijkeuken; boven vind je in totaal 4 slaapkamers en de badkamer. Buiten is het volop genieten in de zonnige tuin op het zuiden waar een gezellig verandaterras onder een houten overkapping is gerealiseerd.

Je woont hier aan de rand van Schagen, wanneer je de straat uitloopt kun je direct beginnen aan een fijne wandeling over de Groeneweg, langs het Schagerkoggekanaal. Fiets je de andere kant op, dan bereik je binnen 5 minuten ook al het gezellige centrum van Schagen.

Kom jij hier binnenkort thuis? Maak snel een afspraak om een bezichtiging te plannen!

Over de ligging en de buurt:
De woning is gelegen aan een rustige, autovrije, straat aan de rand van het gezellige Schagen. De woonwijk is erg ruim opgezet en gunstig gelegen met het centrum van Schagen en alle dagelijkse voorzieningen op 5 minuten fietsafstand. Aangezien de woning zich helemaal aan de rand van Schagen bevindt, sta je in een mum van tijd in de weidse polder waar je heerlijk kunt wandelen en fietsen. Er zijn diverse speeltuinen in de buurt en ook zijn er 2 basisscholen op loopafstand van de woning. Vanaf het treinstation van Schagen (tevens op 5 minuten fietsafstand) zijn er goede ov-verbindingen richting o.a. Alkmaar (19 minuten), Amsterdam (59 minuten) en Den Helder (18 minuten). Ook zijn de uitvalsweg gemakkelijk en snel aan te rijden aangezien de woning op enkele minuten van de N248 ligt.

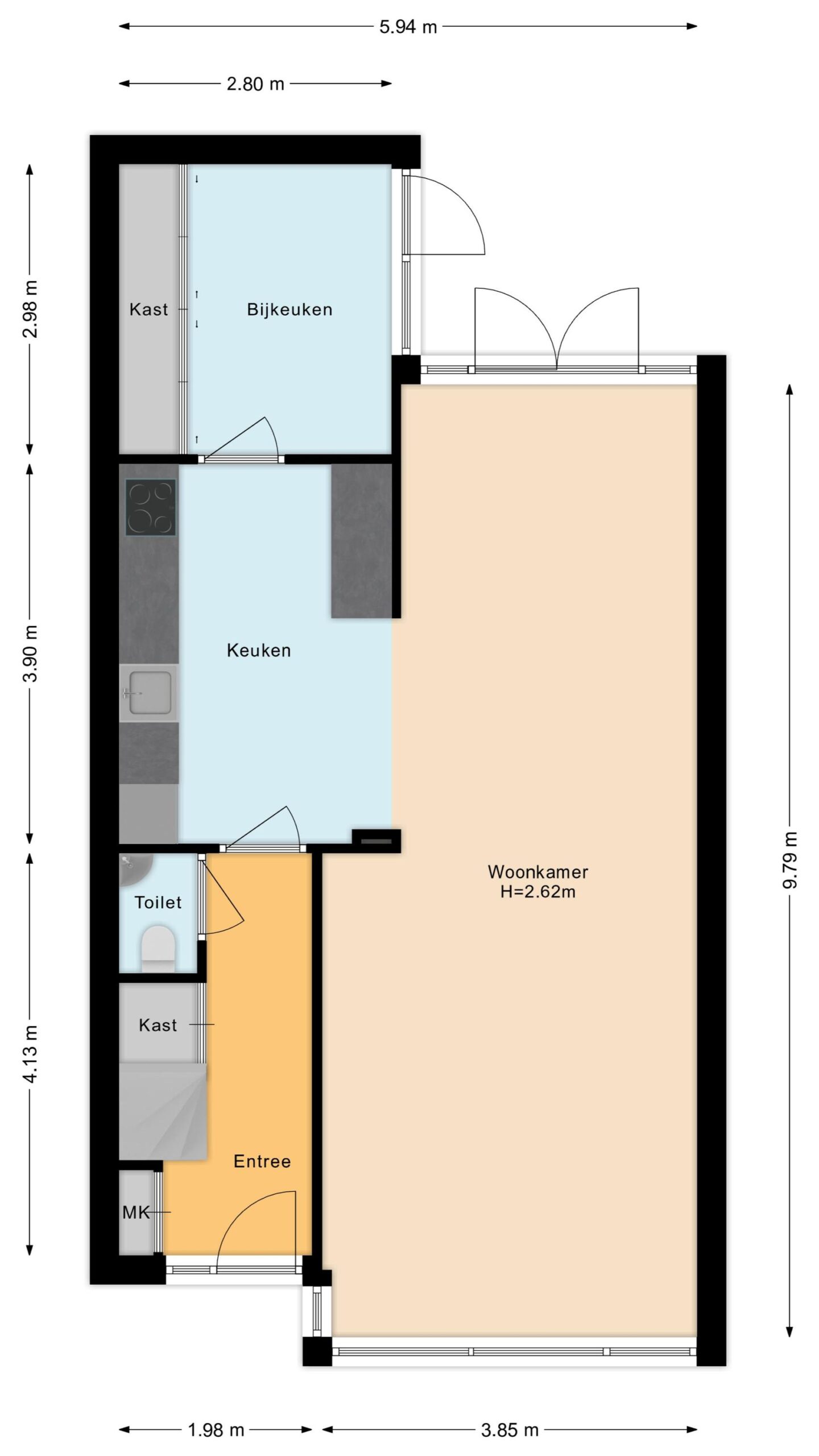
Indeling van de woning:
Begane grond:
Via de ruime voortuin met betegeld paadje bereiken we de voordeur van de woning.

Achter de voordeur vinden we de entree met garderobe, meterkast, gastentoilet met fonteintje, trapopgang naar de eerste verdieping en toegang tot de woonkamer met open keuken.

De woning beschikt over een uitgebouwde woonkamer met grote raampartijen die zorgen voor veel lichtinval. Via de openslaande deuren is er directe toegang tot de tuin, waardoor binnen- en buitenruimte praktisch met elkaar zijn verbonden.

De keuken bevindt zich aan de tuinzijde van de woning en is voorzien van een inductiekookplaat, combimagneron, koelkast en een vaatwasser. Vanuit de keuken is er toegang tot een handige bijkeuken met aldaar de aansluitingen voor de witgoedopstelling en een achterdeur naar de tuin.

Eerste verdieping:
Via de trap in de hal, bereiken we de overloop van de eerste verdieping die toegang biedt tot 3 slaapkamers en de badkamer met vloerverwarming, inbouwspots, zwevend toilet, wastafel met meubel en inloopregendouche.

Tweede verdieping:
Via de vaste trap op de eerste verdieping, bereiken we de overloop van de ruime tweede verdieping die toegang biedt tot de volwaardige 4e slaapkamer. Door de toevoeging van een dakkapel is ook deze kamer heerlijk ruim en licht. Bovendien is er veel bergruimte achter knieschotten onder het schuine dak aanwezig.

Tuin:
De groene achtertuin is gelegen op het zuiden en geniet hierdoor optimaal van de zon.
De tuin beschikt over een betegeld terras dat wordt omlijst door groene borders. Achterin de tuin is een gezellig verandaterras onder een houten overkapping gerealiseerd en daaraan geschakeld een handige berging van Douglas hout welke voorzien is van elektriciteit.

Parkeren:
Er is parkeergelegenheid rond het huis.

Kenmerken van de woning:
• Goed onderhouden familiehuis met 4 slaapkamers
• Ruime woonkamer met open keuken
• Zonnige achtertuin op het zuiden met terras onder een houten overkapping met geschakelde berging
• Kozijnen zijn recent vervangen
• Prettige ligging in een geliefde, groene en kindvriendelijke wijk
• Supermarkt op loopafstand
• Energielabel: B
• Volledige eigendom

Bijzonderheden:
• De volgende clausules zijn van toepassing: een ouderdomsclausule (m.b.t. het oorspronkelijke bouwjaar van de woning), asbestclausule (m.b.t. het oorspronkelijke bouwjaar van de woning).
De tekst van deze clausules kun je vooraf bij ons kantoor opvragen.

** ENGLISH **

Neat family home with 4 bedrooms and a sunny garden facing south!

Located in the spacious and child-friendly neighborhood of Groeneweg, we may offer this large terraced house with the sustainable energy label B. The spacious property of 122.3 m2 of living space is ideal for families looking for a well maintained and nice and complete home with all modern conveniences.

Downstairs you will find the sunny living room with an open kitchen and spacious utility room; upstairs, you will find a total of 4 bedrooms and the bathroom. Outside, you can enjoy the sunny, south-facing garden, which features a cosy veranda terrace under a wooden canopy.

Here, you live at the edge of Schagen, when you walk out of the street you can immediately start a nice walk over the Groeneweg, along the Schagerkoggekanaal (canal). If you cycle in the other direction, you can reach the centre of Schagen within just 5 minutes.

Will you soon come home here? Make an appointment for a viewing now!

About the location and the neighbourhood:
The house is situated on a quiet street on the outskirts of the cozy town of Schagen. The neighborhood is very spacious and conveniently located with the centre of Schagen and all daily amenities at 5 minutes’ of cycling distance. Since the house is located on the outskirts of Schagen, you are in no time in the vast polder where you can enjoy walking and cycling.
There are several playgrounds nearby and there are also 2 primary schools within walking distance of the house. From the train station of Schagen (also at 5 minutes’ of cycling distance) there are good public transport connections to Alkmaar (19 minutes), Amsterdam (59 minutes) and Den Helder (18 minutes). The exit roads are also easy and quick to reach since the house is located a few minutes from the N248.

Layout of the house:
Ground floor:
Through the spacious front yard with a tiled path, we reach the front door of the house.

Behind the front door, we find the entrance with wardrobe, meter closet, guest toilet with hand basin, staircase to the first floor and access to the living room with an open kitchen.

The house has an extended living room with large windows that provide plenty of natural light. French doors provide direct access to the garden, creating a practical connection between the indoor and outdoor spaces.

The kitchen is located on the garden side of the house and is equipped with an induction hob, combination microwave/oven, fridge and a dishwasher. From the kitchen there is access to a handy utility room with there the connections for the white goods set-up and a back door to the garden.

First floor:
Via the staircase in the hallway, we reach the landing of the first floor that offers access to 3 bedrooms and the bathroom with underfloor heating, recessed spotlights, a floating toilet, washbasin with vanity unit and a walk-in shower.

Second floor:
Via the fixed staircase on the first floor, we reach the landing of the spacious second floor, which provides access to the fully-fledged 4th bedroom. Thanks to the addition of a dormer window, this room is also wonderfully spacious and light. In addition, there is plenty of storage space behind knee walls under the sloping roof.

Garden:
The green backyard is facing the south and thus optimally enjoys the sunshine.
The garden features a tiled terraces interspersed with green borders. At the very back of the garden, a cosy veranda terrace under a wooden canopy has been realised with attached to it a handy storage shed made of Douglas wood, equipped with electricity.

Parking:
There is parking around the house.

Features of the property:
• Well-maintained family home with 4 bedrooms
• Spacious living room with an open kitchen
• Sunny backyard facing the south with a terrace under a wooden canopy and an attached shed
• Window frames have recently been renewed
• Great location in a popular, green and child-friendly neighbourhood
• Supermarket within walking distance
• Energy label: B
• Full ownership

Details:
• The following clauses apply: an age clause (relating to the original year of construction of the property), an asbestos clause (relating to the original year of construction of the property).
The text of these clauses can be requested from our office in advance.

Kenmerken

Overdracht

  • StatusVerkocht o.v.
  • KoopprijsVraagprijs € 425.000,- k.k.

Bouwvorm

  • Soort objectWoonhuis
  • Soort woningEengezinswoning
  • Type woningTussenwoning
  • Bouwjaar1971
  • BouwvormBestaande bouw
  • LiggingenIn woonwijk, Beschutte ligging

Indeling

  • Woonoppervlakte122 m2
  • Perceeloppervlakte166 m2
  • Inhoud405 m3
  • Aantal kamers5
  • Aantal slaapkamers4
  • Aantal badkamers1

Energie

  • EnergieklasseB
  • VerwarmingCV ketel
  • C.V.-KetelIntergas
  • Bouwjaar C.V.-Ketel2025
  • WarmwaterCV ketel
  • IsolatieDakisolatie, Muurisolatie, Dubbelglas
  • CombiketelJa
  • BrandstofGas
  • EigendomEigendom

Buitenruimte

  • TuinAchtertuin, Voortuin
  • HoofdtuinAchtertuin
  • Oppervlakte43 m2
  • Ligging hoofdtuinZuidoost
  • AchteromJa
  • Kwaliteit tuinVerzorgd

Bergruimte

  • Schuur / BergingVrijstaand hout
  • Totaal aantal1

Parkeergelegenheid

  • Parkeer faciliteitenOpenbaar parkeren
  • GarageGeen garage

Dak

  • Soort dakSamengesteld dak
  • Materiaal dakPannen, Bitumineuze Dakbedekking

Overig

  • Permanente bewoningJa
  • Onderhoud binnenGoed
  • Onderhoud buitenGoed
  • Huidig gebruikWoonruimte
  • Huidige bestemmingWoonruimte

VLIEG Makelaars: Iepenlaan 26, SCHAGEN

Kan ik dit huis betalen?

Via deze tool bereken je het binnen 1 minuut!

Wil je het 100% zeker weten? Vraag dan een adviesgesprek aan met een financieel adviseur. Klik hier.

Hier staat jouw droomwoning

Plan een bezichtiging

"*" geeft vereiste velden aan

Dit veld is verborgen bij het bekijken van het formulier
Het vestigingsnummer van het huidige object
Dit veld is verborgen bij het bekijken van het formulier
De url van object/woning
Dit veld is verborgen bij het bekijken van het formulier
De titel van object/woning
Dit veld is verborgen bij het bekijken van het formulier