B 33, Akersloot

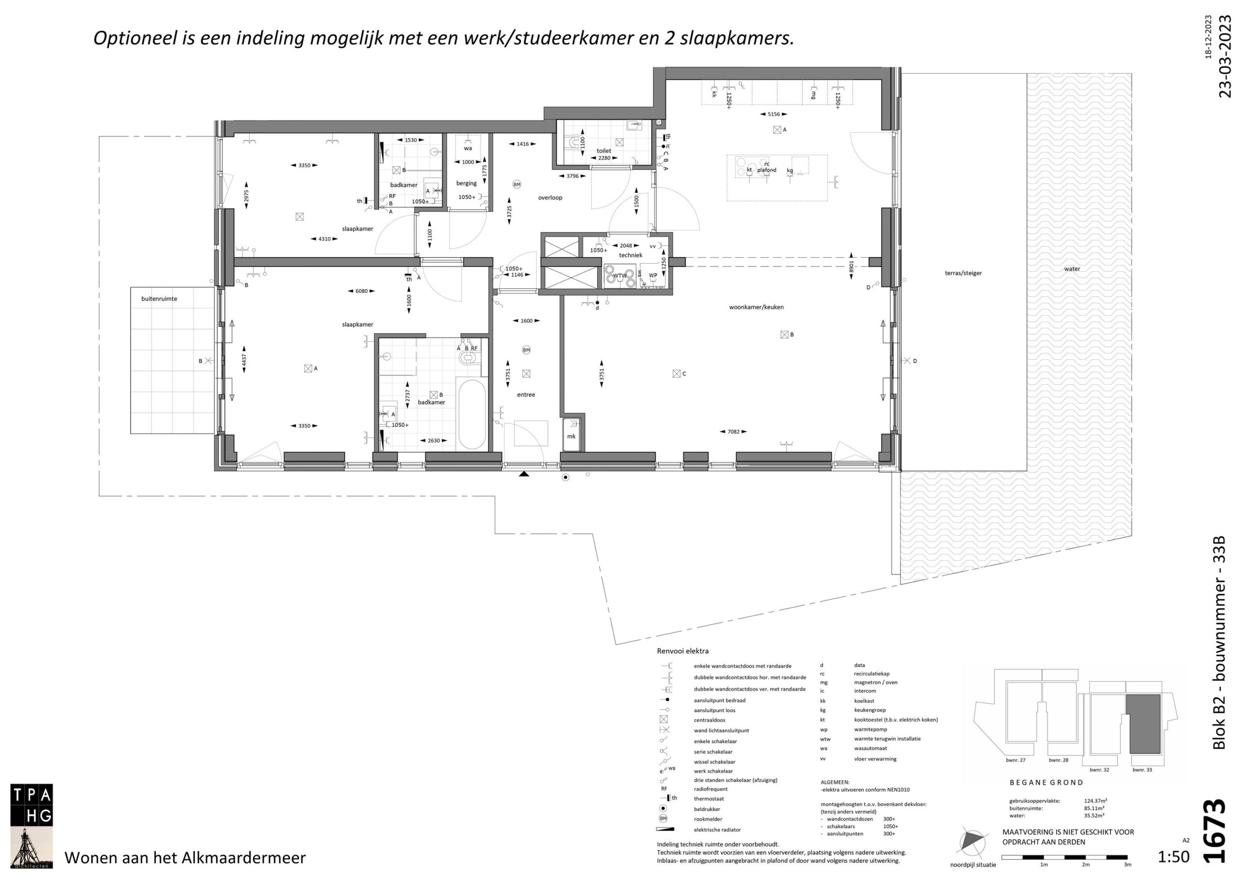
kamers 4 · 124 m2

HOERA, DE BOUW IS GESTART! NOG ENKELE WONINGEN BESCHIKBAAR.

Beleef hier het eeuwige vakantiegevoel!
In de haven van Akersloot worden straks 90 luxe en gelijkvloerse appartementen gerealiseerd verdeeld over 8 woonblokken. Het uitzicht over het Alkmaardermeer is werkelijk waanzinnig. Het is er een baken van rust, met tegelijkertijd de reuring van omliggende steden als Haarlem en Alkmaar. De appartementen variëren in oppervlakte van 49 m2 tot maar liefst 357 m2 waarbij de haven en het Alkmaardermeer centraal staan. Zo kunt u genieten van royale buitenruimtes met uitzicht over de haven of rechtstreeks uitkijkend over het Alkmaardermeer.
De bovenste appartementen in woonblok E hebben zelfs dakterrassen waar u geniet van een vrij uitzicht over het uitgestrekte meer. U heeft de keuze uit royale 2, 3 en 4-kamer appartementen. Bij dit woonproject is duurzaamheid een belangrijk uitgangspunt. Zo worden de woningen volledig gasloos en krijgt elke woning een eigen individuele (aard)warmtepomp. Hierdoor profiteert u van zeer lage energielasten.
Voor meer informatie kunt u contact opnemen met het Verkoopteam.

Locatie & omgeving

Het Alkmaardermeer is een historisch meer dat al eeuwenlang van grote betekenis is voor Holland. Denk bijvoorbeeld aan de omliggende dorpen, polders, dijken, molens en forten. Het natuur- en recreatiegebied biedt veel wandel- en fietsroutes en het grote meer omvat vele mogelijkheden voor waterrecreatie. Zo kunt u er varen, zeilen, kanoën, surfen en zwemmen. Dit wordt ook veel gedaan tijdens de zomermaanden. Met goed weer vindt u op het Alkmaardermeer vele plezierbootjes en wordt er veel gesurft en gewaterskied. Langs de oever van het Alkmaardermeer vindt u verschillende horecagelegenheden waar mensen genieten van een borrel in de avondzon. Ook kunt u met uw eigen boot via het Alkmaardermeer naar het centrum van Alkmaar en via de Zaan naar Amsterdam varen. Om en rond het Alkmaardermeer zijn dus vele mogelijkheden om het hele jaar te genieten van een vakantiegevoel. Het beste van dit allemaal? Het Alkmaardermeer is uw achtertuin!

Duurzame verwarming en koeling in uw appartement!

Duurzaam wonen begint met efficiënt energieverbruik. Bij het project "Wonen aan het Alkmaardermeer" is gekozen voor een uiterst efficient verwarmings- en koelingssysteem dat gebruik maakt van aardwarmte. Hiermee wordt uw woning tot wel 5 keer efficiënter verwarmd en gekoeld dan bij een traditionele CV-ketel. In combinatie met een uitstekend isolatiepakket, heeft u een zeer energiezuinige woning met minimale energielasten.
De technologie die hiervoor gebruikt wordt zijn de allernieuwste generatie individuele aardwarmtebronnen.
De warmtepomp maakt gebruik van een duurzame energiebron, namelijk de aarde. Er worden zogenaamde lussen in de aarde aangebracht tot maximaal 200 meter diep. Deze lussen onttrekken energie aan de aarde en verhoogt deze tot een temperatuur die geschikt is voor verwarming. Hierbij wordt de energie van een lagere naar een hogere temperatuur “gepompt”. Vervolgens wordt deze energie via koudemiddelleidingen naar de hydrobox (binnendeel) geleid. Daar wordt de gewonnen energie (warmte) overgebracht naar het afgiftesysteem in uw woning, in dit geval de vloerverwarming. Omdat de lussen op een constante temperatuur liggen van 11 tot 13 graden kan in de zomer deze temperatuur ideaal gebruikt worden als koeling. Dus ook bij een hete zomer is de woning altijd koel.

Ligplekken voor uw boot in de haven

Hoe fantastisch is het om uw eigen boot aan te meren in uw eigen haven. Bij de ontwikkeling wordt een nieuwe privehaven gerealiseerd die beschikt over 66 privé ligplaatsen. Vanuit de haven kunt heerlijk varen richting Alkmaar, Amsterdam, een rondje door de eilandspolder of deelnemen aan de aangesloten “Sloepenroute”. Aan horeca geen gebrek want aan het meer treft u diverse horecamogelijkheden. Kijk hiervoor op de projectwebsite.

Parkeren

Dit woonproject beschikt over voldoende parkeergelegenheden. Zo parkeert u uw auto op één van de 80 parkeerplekken in de ondergrondse parkeergarage. Zo weet u zeker dat uw auto veilig en droog staat. Daarnaast is er een parkeerterrein aan de Geesterweg met 124 parkeerplaatsen. Er is dus voldoende plek beschikbaar om uw auto en die van uw gasten te parkeren. Voor alle appartementen is er ook een eigen berging in de parkeerkelder aanwezig. Genoeg ruimte dus voor uw auto en spullen.

Heeft u interesse in een van deze prachtige appartementen? U kunt u inschrijven op de projectwebsite van Wonen aan het Alkmaardermeer.

Kenmerken

Overdracht

  • StatusVerkocht
  • Koopprijs€ 679.500,- v.o.n.

Bouwvorm

  • Soort objectAppartement
  • Bouwjaar2025
  • BouwvormNieuwbouw

Indeling

  • Woonoppervlakte124 m2
  • Inhoud372 m3
  • Aantal kamers4
  • Aantal slaapkamers2
  • Aantal woonlagen1

Energie

  • CombiketelNee

Buitenruimte

  • TuinGeen tuin
  • AchteromNee

Parkeergelegenheid

  • GarageGeen garage

Overig

  • Permanente bewoningJa
  • Onderhoud binnenUitstekend
  • Onderhoud buitenUitstekend

Kan ik dit huis betalen?

Via deze tool bereken je het binnen 1 minuut!

Wil je het 100% zeker weten? Vraag dan een adviesgesprek aan met een financieel adviseur. Klik hier.

Hier staat jouw droomwoning

Plan een bezichtiging

"*" geeft vereiste velden aan

Dit veld is verborgen bij het bekijken van het formulier
Het vestigingsnummer van het huidige object
Dit veld is verborgen bij het bekijken van het formulier
De url van object/woning
Dit veld is verborgen bij het bekijken van het formulier
De titel van object/woning
Dit veld is verborgen bij het bekijken van het formulier