Twee-onder-een-kapwoning 11, Wieringerwerf

kamers 4 · 148 m2

In het hart van Wieringerwerf komt een nieuwe woonwijk die een verbinding maakt tussen de bestaande bebouwingen. Het groen van het park zal ook de verbindende factor worden doordat diverse woningen in een parkachtige omgeving worden gerealiseerd. Er komen verschillende soorten woningen.

De twee-onder-een-kapwoningen zijn ideaal voor doorstromende gezinnen die in het hart van Wieringerwerf willen wonen nabij winkels en scholen.

De woningen worden duurzaam gebouwd en zullen dan ook energielabel A+++ krijgen. Verwarming zal zijn door vloerverwarming in alle kamers met een elektrische warmtepomp. In combinatie met enkele zonnepanelen zorgt dat voor lage energielasten.

Kenmerken in het kort:

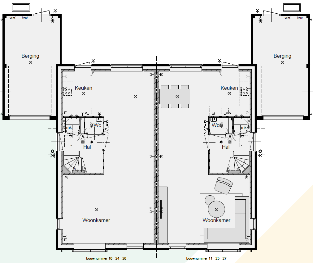
* Woonoppervlakte circa 148 m²
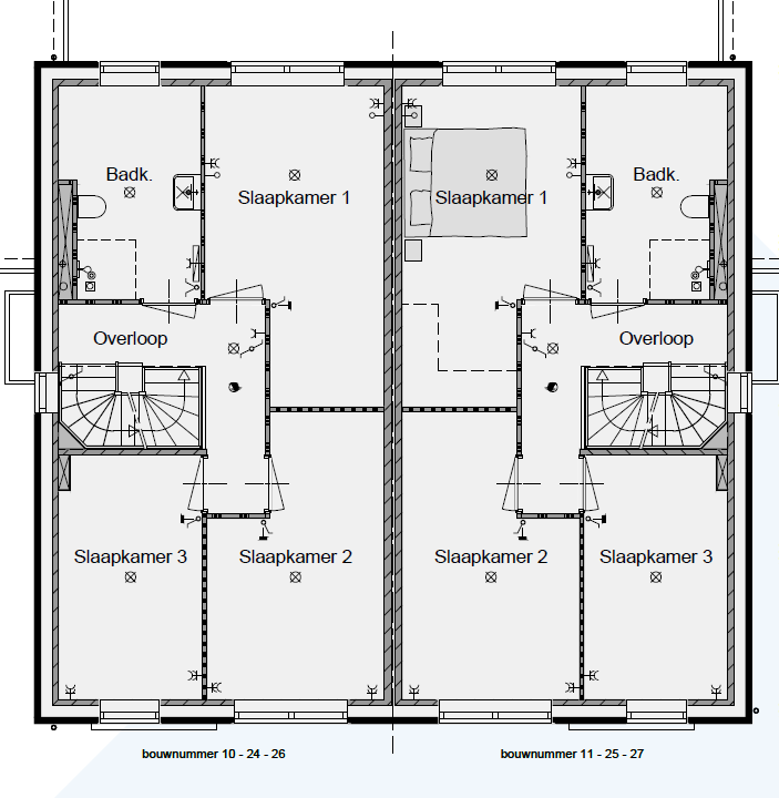
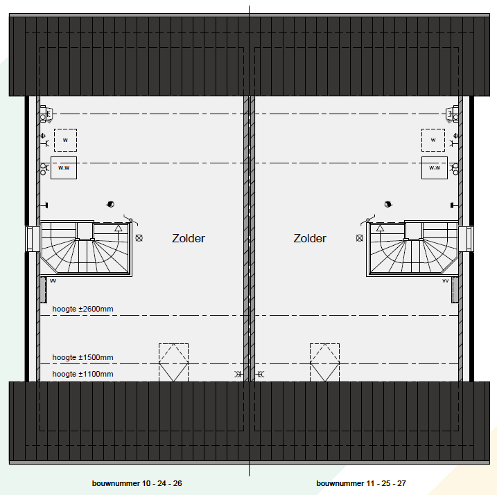
* 3 slaapkamers en een vrij in te delen zolder
* aangebouwde berging circa 18 m²
* zonligging overwegend zuid

Kenmerken

Overdracht

  • StatusBeschikbaar
  • Koopprijs€ 545.000,- v.o.n.

Bouwvorm

  • Soort objectWoonhuis
  • Soort woningEengezinswoning
  • Type woningTwee onder één kapwoning
  • Bouwjaar periodeVANAF_2021_TM_2030
  • BouwvormNieuwbouw
  • LiggingenIn centrum, In woonwijk

Indeling

  • Woonoppervlakte148 m2
  • Perceeloppervlakte354 m2
  • Inhoud488 m3
  • Aantal kamers4
  • Aantal slaapkamers3
  • Aantal badkamers1
  • Aantal woonlagen3

Energie

  • EnergieklasseA+++
  • VerwarmingVloerverwarming geheel, Warmtepomp
  • WarmwaterCentrale voorziening
  • IsolatieDakisolatie, Muurisolatie, Vloerisolatie, Dubbelglas
  • CombiketelNee

Buitenruimte

  • TuinGeen tuin
  • AchteromNee

Bergruimte

  • Schuur / BergingAangebouwd steen
  • VoorzieningenVoorzien van elektra
  • Totaal aantal1

Parkeergelegenheid

  • ParkeerfaciliteitenOp eigen terrein
  • GarageGeen garage

Dak

  • Soort dakZadeldak

Overig

  • Permanente bewoningJa
  • Onderhoud binnenUitstekend
  • Onderhoud buitenUitstekend

Kan ik dit huis betalen?

Via deze tool bereken je het binnen 1 minuut!

Wil je het 100% zeker weten? Vraag dan een adviesgesprek aan met een financieel adviseur. Klik hier.

Plan een bezichtiging

"*" geeft vereiste velden aan

Dit veld is verborgen bij het bekijken van het formulier
Het vestigingsnummer van het huidige object
Dit veld is verborgen bij het bekijken van het formulier
De url van object/woning
Dit veld is verborgen bij het bekijken van het formulier
De titel van object/woning
Dit veld is verborgen bij het bekijken van het formulier