NVM Open Huizen Dag

Verdronkenoord 56, Alkmaar

kamers 4 · 104 m2

nl

**ENGLISH BELOW**

EEN PRACHTIG MONUMENTAAL GRACHTENPAND OP IN HET CENTRUM ALKMAAR!

Nieuw in de verkoop bieden wij aan: een prachtig historisch grachtenpand op een van de meest idyllische locaties van de Alkmaarse binnenstad.

Deze historische eindwoning is op smaakvolle wijze gerenoveerd waarbij het authentieke karakter perfect intact is gebleven. Het resultaat is een 100% instapklare hoekwoning met een grote hoeveelheid lichtinval, moderne voorzieningen en een heel fijne sfeer.
Het huis beschikt over een riante woonkamer met open keuken, 3 ruime slaapkamers, een luxe badkamer en een handige vlieringzolder. Buiten kan er genoten worden van een knusse patiotuin op het Noordoosten, terwijl er aan de voorzijde een prachtig uitzicht is over de zonnige zijde van de gracht. Een korte wandeling langs het water brengt je naar het hart van de stad dus voor wie houdt van authentiek wonen in de stad, is dit huis een schot in de roos.

Kom jij hier binnenkort thuis? Maak snel een afspraak voor een bezichtiging!

Over de ligging en de buurt:
De woning heeft een prachtige ligging direct aan de Verdronkenoord gracht, in de oude binnenstad Alkmaar. De gracht is drukbevaren, waardoor je hier altijd wat te zien hebt. Je woont hier op een steenworpafstand van alle voorzieningen in de binnenstad, waar je terecht kunt voor al je favoriete winkels, supermarkten, speciaalzaken en andere voorzieningen. De woning is ook met de auto goed bereikbaar en bevindt zich op slechts enkele minuten rijden van de A9. Vanaf het hoofdstation van Alkmaar (5 minuten fietsafstand) zijn er goede ov-verbindingen in uiteenlopende richtingen.

Indeling van de woning:
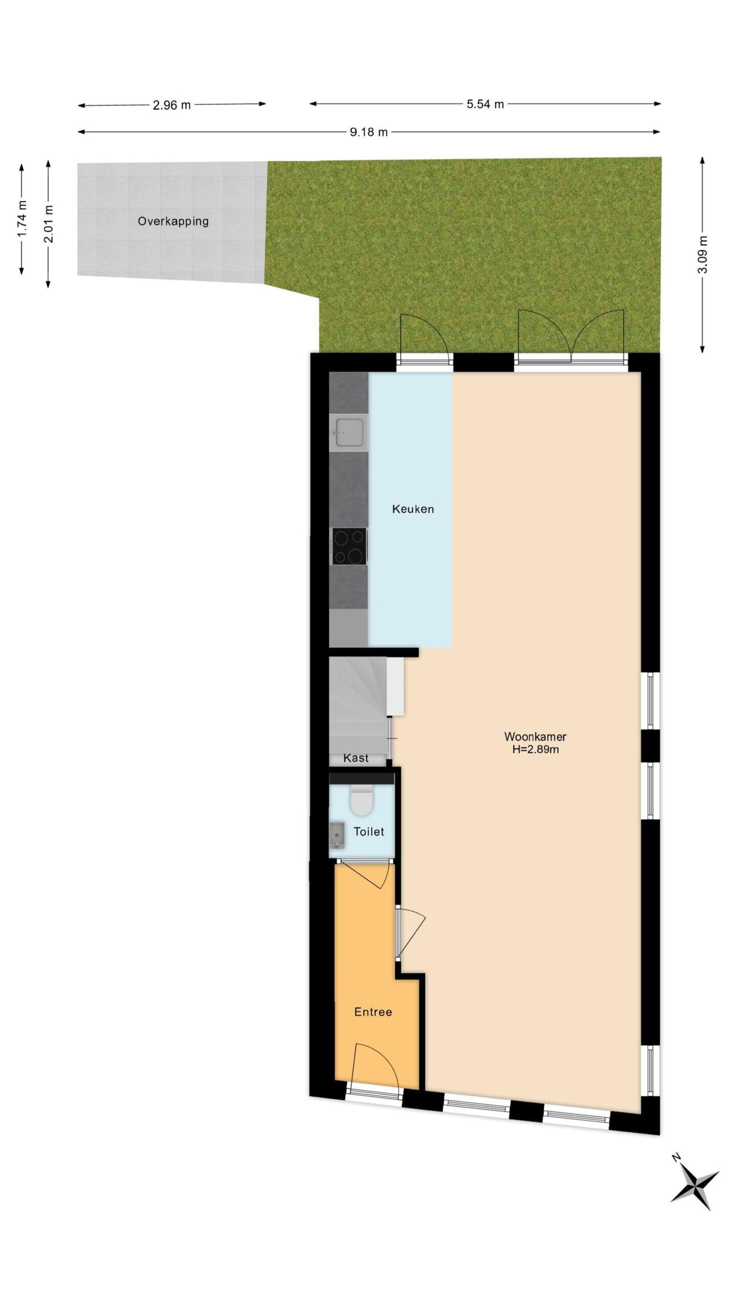
Begane grond:
Achter de voordeur vinden we de entreehal met het gastentoilet met fonteintje en toegang tot de woonkamer.

De zonnige woonkamer strekt zich uit over de volledige lengte van het huis en geniet door de grote raampartijen langs 3 zijden van een grote hoeveelheid lichtinval. Het hoge plafond draagt nog eens extra bij aan de ruimtelijke sfeer en het geheel is afgewerkt met een tegelvloer met vloerverwarming.

De moderne open keuken bevindt zich aan de tuinzijde van de woning en is voorzien van een inductiekookplaat, oven, koelkast, vriezer en een vaatwasser.

Openslaande deuren en een extra achterdeur bieden toegang tot de tuin.

Eerste verdieping:
Vanaf de overloop is er toegang tot 3 slaapkamers, een separaat toilet met fonteintje en de badkamer. Alle slaapkamers zijn van een goed formaat en netjes afgewerkt met een laminaatvloer. De luxe badkamer is voorzien van inbouwspots, een wastafel met meubel en een inloopregendouche. De aansluitingen voor de witgoedopstelling zijn handig weggewerkt in en aparte kast op de overloop.

Vliering:
Een losse trap biedt toegang tot een handige vlieringzolder met extra bergruimte en opstelling CV-ketel. Deze is voorts voorzien van een extra dakraam.

Tuin:
De woning beschikt over een gezellige, besloten patio op het Noordoosten. De tuin is toegankelijk via een eigen achterom en een handige overkapping biedt ruimte voor opslag of fietsenstalling.

Parkeren en berging:
Er is een parkeervergunningensysteem van toepassing, met parkeren aan de grachten.
Kenmerken van de woning:
• Historisch grachtenpand met fraaie trapgevel
• Volledig gemoderniseerd, hoogwaardig afgewerkt en instapklaar
• Hoekligging met extra veel ramen & lichtinval
• 3 slaapkamers
• Fraaie ligging aan de Verdronkenoord gracht in het oude centrum van Alkmaar
• Patio op het Noordoosten
• Beschermd Stadsgezicht
• Energielabel: D
• Volledig eigendom

--------------------------------------------------------------------------------------------------------------------------------------------------

A BEAUTIFUL MONUMENTAL CANAL HOUSE IN THE CENTER OF ALKMAAR!

Newly listed for sale: a beautiful historic canal house in one of the most idyllic locations in Alkmaar's city center.

This historic end-of-terrace house has been tastefully renovated, perfectly preserving its authentic character. The result is a 100% move-in ready corner house with abundant natural light, modern amenities, and a wonderful atmosphere.
The house features a spacious living room with an open-plan kitchen, three generous bedrooms, a luxurious bathroom, and a convenient attic. Outside, you can enjoy a cozy northeast-facing patio garden, while the front offers a stunning view of the sunny side of the canal. A short walk along the waterfront takes you to the heart of the city, so for those who appreciate authentic city living, this house is a real winner.

Will you be coming home soon? Schedule a viewing now!

About the location and neighborhood:
The house is beautifully situated right on the Verdronkenoord canal in Alkmaar's historic city center. The canal is busy, so there's always something to see. You'll be living just a stone's throw from all the amenities in the city center, where you'll find all your favorite shops, supermarkets, specialty stores, and other amenities. The house is also easily accessible by car and is just a few minutes' drive from the A9 motorway. From Alkmaar Central Station (a 5-minute bike ride), there are excellent public transport connections in various directions.

Layout of the house:
Ground floor:
Behind the front door, you'll find the entrance hall with a guest toilet and sink and access to the living room.

The sunny living room spans the entire length of the house and enjoys plenty of natural light thanks to the large windows on three sides. The high ceiling further enhances the spacious feel, and the entire house is finished with a tiled floor with underfloor heating.

The modern open-plan kitchen is located on the garden side of the house and is equipped with an induction cooktop, oven, refrigerator, freezer, and dishwasher.

French doors and an additional back door provide access to the garden.

First floor:
The landing provides access to three bedrooms, a separate toilet with a hand basin, and the bathroom. All bedrooms are a good size and neatly finished with laminate flooring. The luxurious bathroom features recessed spotlights, a vanity unit, and a walk-in rain shower. Connections for laundry appliances are conveniently concealed in a separate cupboard on the landing.

Attic:
A separate staircase provides access to a convenient attic space with additional storage and the central heating boiler. This space also features an additional skylight.

Garden:
The house features a cozy, private patio facing northeast. The garden is accessible via a private rear entrance, and a convenient covered area offers space for storage or bicycle storage.

Parking and storage:
A parking permit system is in place, with parking along the canals.

Property features:
• Historic canal house with a beautiful stepped gable
• Fully modernized, high-quality finishes, and move-in ready
• Corner location with plenty of windows and natural light
• 3 bedrooms
• Beautiful location on the Verdronkenoord canal in Alkmaar's historic city center
• Northeast-facing patio
• Protected cityscape
• Energy label: D
• Freehold

Kenmerken

Overdracht

  • StatusBeschikbaar
  • KoopprijsVraagprijs € 635.000,- k.k.

Bouwvorm

  • Soort objectWoonhuis
  • Soort woningGrachtenpand
  • Type woningEindwoning
  • Bouwjaar1920
  • BouwvormBestaande bouw
  • LiggingenAan water, In centrum

Indeling

  • Woonoppervlakte104 m2
  • Perceeloppervlakte85 m2
  • Inhoud429 m3
  • Aantal kamers4
  • Aantal slaapkamers3
  • Aantal badkamers1

Energie

  • EnergieklasseD
  • VerwarmingCV ketel, Vloerverwarming gedeeltelijk
  • C.V.-KetelBase Cube 24/30 13L
  • WarmwaterCV ketel
  • IsolatieDakisolatie, Gedeeltelijk dubbelglas
  • CombiketelJa
  • BrandstofGas
  • EigendomEigendom

Buitenruimte

  • TuinPatio atrium
  • HoofdtuinPatio atrium
  • Oppervlakte17 m2
  • Ligging hoofdtuinNoordoost
  • AchteromJa
  • Kwaliteit tuinNormaal

Bergruimte

  • Schuur / BergingAangebouwd hout
  • Totaal aantal1

Parkeergelegenheid

  • Parkeer faciliteitenParkeervergunningen
  • GarageGeen garage

Dak

  • Soort dakZadeldak
  • Materiaal dakPannen
  • ToelichtingTrapgevel

Overig

  • Permanente bewoningJa
  • Onderhoud binnenGoed tot uitstekend
  • Onderhoud buitenGoed
  • Huidig gebruikWoonruimte
  • Huidige bestemmingWoonruimte

VLIEG Makelaars: Verdronkenoord 56, ALKMAAR

Verdronkenoord 105A Alkmaar

Kan ik dit huis betalen?

Via deze tool bereken je het binnen 1 minuut!

Wil je het 100% zeker weten? Vraag dan een adviesgesprek aan met een financieel adviseur. Klik hier.

Hier staat jouw droomwoning

Plan een bezichtiging

"*" geeft vereiste velden aan

Dit veld is verborgen bij het bekijken van het formulier
Het vestigingsnummer van het huidige object
Dit veld is verborgen bij het bekijken van het formulier
De url van object/woning
Dit veld is verborgen bij het bekijken van het formulier
De titel van object/woning
Dit veld is verborgen bij het bekijken van het formulier