Steve Bikostraat 35, Hoofddorp

kamers 5 · 100 m2

nl

Fijne gezinswoning met ruime tuin, 3 slaapkamers en extra zolderruimte

GOED ONDERHOUDEN - OPENSLAANDE TUINDEUREN - ZONNEPANELEN - DRIE SLAAPKAMERS + ZOLDERKAMER - RUIME ACHTERTUIN MET BERGING

Deze tussenwoning aan de Steve Bikostraat in Hoofddorp biedt een praktische indeling met een fijne doorzonwoonkamer, drie slaapkamers en een ruime zolderkamer. Met een woonoppervlakte van 100 m² en een perceel van 123 m² beschik je hier over een comfortabele gezinswoning met volop mogelijkheden.

De begane grond bestaat uit een lichte leefruimte met openslaande tuindeuren en een keuken aan de voorzijde. Op de eerste verdieping vind je drie goed bruikbare slaapkamers en een complete badkamer. De tweede verdieping is ingericht als zolderkamer en biedt extra ruimte voor slapen, werken of hobby’s.

Daarnaast beschik je over een ruime achtertuin met berging en achterom en zorgen de aanwezige zonnepanelen voor een energiezuiniger gebruik. De woning is netjes onderhouden en vormt een moderne basis om verder naar eigen smaak in te richten.

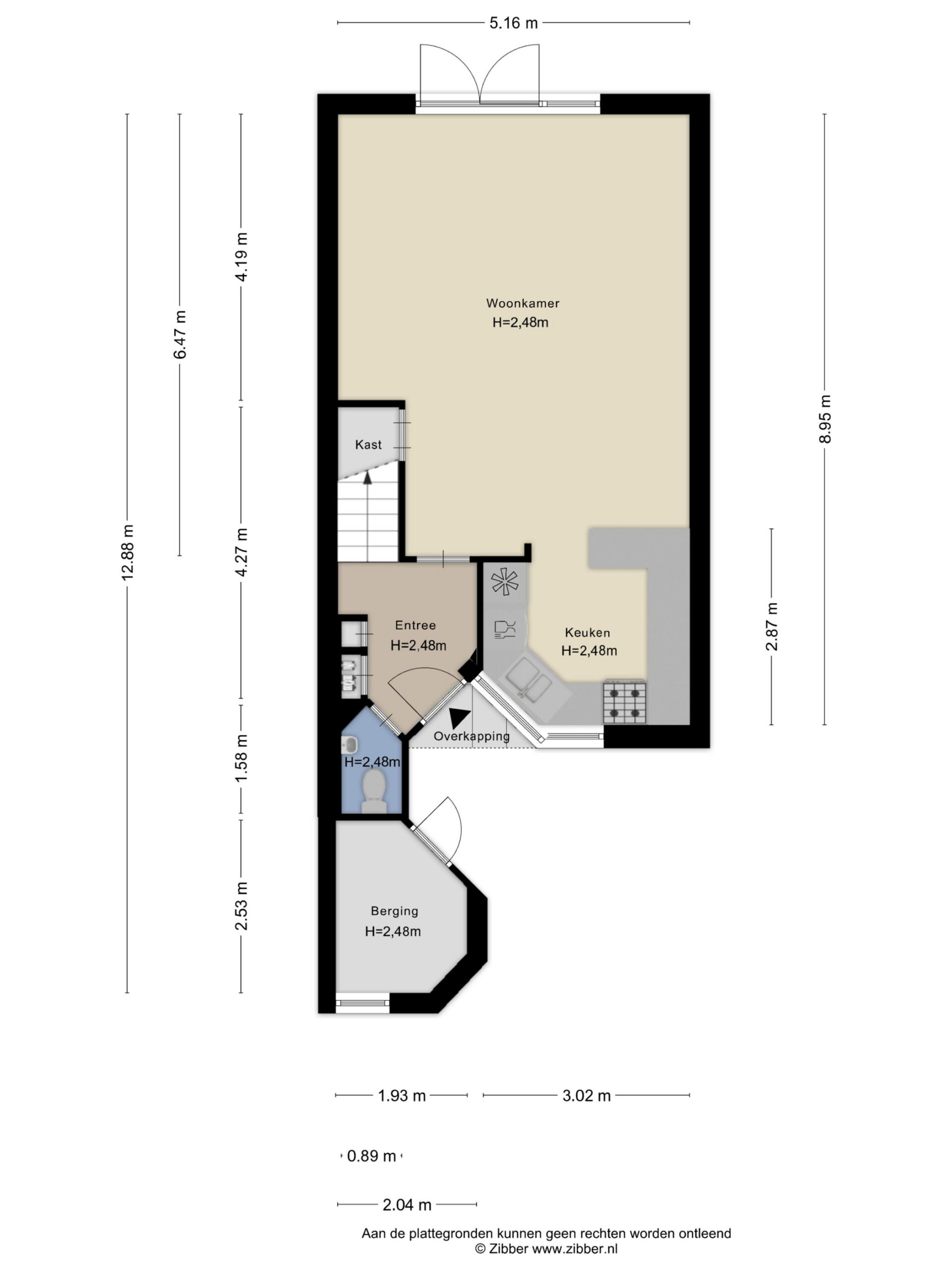
Begane grond
Via de entree kom je binnen in de hal met meterkast, toilet en trapopgang. Vanuit hier bereik je de woonkamer, met ruimte voor een zithoek aan de achterzijde en zicht op de achtertuin. Met de openslaande tuindeuren breng je met gemak de tuin in verbinding met de woonkamer. Richting de keuken is plek voor een grote eettafel.

De keuken ligt aan de voorzijde en is uitgevoerd in een U-opstelling, voorzien van diverse inbouwapparatuur (gaskookplaat, afzuigkap en oven). Vanuit het raam heb je zicht op de straat.

Eerste verdieping
Eenmaal op de overloop heb je toegang tot drie slaapkamers en de badkamer. De slaapkamers (1,99 x 4,14 + 3,07 x 3,74 + 3,07 x 5,11 m) zijn netjes afgewerkt, hebben daglichttoetreding en zijn goed in te richten als slaap-, werk- of kinderkamer. De moderne badkamer is voorzien van een ligbad met douchemogelijkheid, wastafelmeubel en wandcloset. Hier zijn tevens de witgoedaansluitingen gesitueerd, en dankzij het dakraam is er natuurlijke ventilatie aanwezig.

Tweede verdieping
Op de tweede verdieping bevindt zich een zolderkamer met dakraam. De ruimte is geschikt als extra slaapkamer, werkplek of hobbyruimte. Achter de knieschotten is extra bergruimte aanwezig.

Buiten/parkeren
De achtertuin is ruim en grotendeels bestraat, waardoor je hier een gezellige zitplek kunt creƫren. Achterin staat een vrijstaande berging en er is een praktische achterom aanwezig.
Aan de voorzijde van de woning kun je parkeren op eigen terrein.

Buurt
De woning ligt in een rustige woonwijk in Hoofddorp met groen en speelvoorzieningen in de directe omgeving. Voor dagelijkse boodschappen zijn winkels snel bereikbaar en ook scholen en sportvoorzieningen liggen op korte afstand. De ligging is gunstig ten opzichte van uitvalswegen en openbaar vervoer.
Dichtbij scholen dichtbij.

Kenmerken
• Tussenwoning
• Woonoppervlakte: 100 m²
• Perceeloppervlakte: 123 m²
• Goed onderhouden
• Openslaande tuindeuren
• Zonnepanelen (10) aanwezig - Energielabel A
• Drie slaapkamers en een zolderkamer
• Ruime achtertuin met berging en achterom
• Parkeergelegenheid bij de woning

Kenmerken

Overdracht

  • StatusBeschikbaar
  • KoopprijsVraagprijs € 525.000,- k.k.

Bouwvorm

  • Soort objectWoonhuis
  • Soort woningEengezinswoning
  • Type woningTussenwoning
  • Bouwjaar1988
  • BouwvormBestaande bouw
  • LiggingenAan rustige weg, In woonwijk

Indeling

  • Woonoppervlakte100 m2
  • Perceeloppervlakte123 m2
  • Inhoud367 m3
  • Aantal kamers5
  • Aantal slaapkamers3
  • Aantal badkamers1

Energie

  • EnergieklasseA
  • VerwarmingCV ketel
  • C.V.-KetelHR107 Intergas Combi Compact
  • Bouwjaar C.V.-Ketel2015
  • WarmwaterCV ketel
  • IsolatieDakisolatie, Vloerisolatie, Dubbelglas, Volledig geĆÆsoleerd
  • CombiketelNee

Buitenruimte

  • TuinAchtertuin
  • HoofdtuinAchtertuin
  • Oppervlakte51 m2
  • Ligging hoofdtuinZuid
  • AchteromJa
  • Kwaliteit tuinNormaal

Bergruimte

  • Schuur / BergingVrijstaand hout
  • VoorzieningenVoorzien van elektra
  • Totaal aantal1

Parkeergelegenheid

  • Parkeer faciliteitenOpenbaar parkeren, Op eigen terrein
  • GarageGeen garage

Dak

  • Soort dakZadeldak
  • Materiaal dakPannen

Overig

  • Permanente bewoningJa
  • Onderhoud binnenGoed
  • Onderhoud buitenGoed
  • Huidig gebruikWoonruimte
  • Huidige bestemmingWoonruimte

VLIEG Makelaars: Steve Bikostraat 35, HOOFDDORP

Kan ik dit huis betalen?

Via deze tool bereken je het binnen 1 minuut!

Wil je het 100% zeker weten? Vraag dan een adviesgesprek aan met een financieel adviseur. Klik hier.

Plan een bezichtiging

"*" geeft vereiste velden aan

Dit veld is verborgen bij het bekijken van het formulier
Het vestigingsnummer van het huidige object
Dit veld is verborgen bij het bekijken van het formulier
De url van object/woning
Dit veld is verborgen bij het bekijken van het formulier
De titel van object/woning
Dit veld is verborgen bij het bekijken van het formulier