Grasland 3, 't Zand

kamers 4 · 143 m2

nl

NET OPGELEVERDE NIEUWBOUWWONING MET ENERGIELABEL A+++

** ENGLISH TEXT BELOW **

Ben jij op zoek naar een nieuwbouwwoning in ’t Zand maar heb je geen zin om te wachten op de oplevering? Dan is dit de perfecte woning voor jou! Net opgeleverd, helemaal af, super duurzaam en zo goed als instapklaar! Het enig wat jij hoeft te doen, je eigen spullen verhuizen en het genieten kan beginnen.

Gelegen in een nieuwbouwwijk aan de rand van het gemoedelijke (kust)dorp ’t Zand mogen wij deze net opgeleverde nieuwbouwwoning aanbieden. De woning is voorzien van alles wat je nodig hebt voor een fijn thuis: een extra diepe, tuingerichte woonkamer met moderne, open keuken, 3 slaapkamers en een ruime badkamer op de eerste verdieping + een grote open zolderkamer op de tweede etage die geschikt is als zeer ruime 4e slaapkamer. Als kers op de taart is de woning ultiem energiezuinig (energielabel A+++) en heeft de woning door het gehele huis comfortabele vloerverwarming en vloerkoeling. In het dorpscentrum zijn verrassend veel voorzieningen te vinden en voor een breder aanbod van faciliteiten zijn ook de plaatsen Julianadorp, Anna Paulowna en Schagen op een korte afstand gelegen.

Zie jij jezelf hier al wonen? Neem dan snel contact met ons op!

Over de ligging en de buurt:
Deze eengezinswoning heeft een rustige ligging in een jonge nieuwbouwwijk net buiten het centrum van het dorp. ’t Zand is een rustig dorp met veel eigen voorzieningen. Zo is er een supermarkt, huisarts, tandarts, basisschool en zijn er diverse lokale winkeltjes/bedrijven, sportverenigingen en horeca in het dorp gevestigd. Tevens is er een bushalte in het dorp met een goede busverbinding richting Schagen en Den Helder. Ook zijn de uitvalswegen (N9, N249) uitstekend bereikbaar.

Indeling van de woning:
Begane grond:
Achter de voordeur vinden we de entree met garderobe, meterkast, gastentoilet met fonteintje, trapopgang naar de eerste verdieping en toegang tot de lichte woonkamer met open keuken.

De ruime woonkamer is tuingericht en heeft openslaande deuren naar de achtertuin.

De moderne open keuken bevindt zich aan de voorzijde van het huis en is voorzien van inbouwapparatuur van Pelgrim: een inductiekookplaat, oven, magnetron, stoomoven, koelkast, vriezer en een vaatwasser.

Eerste verdieping:
Op deze verdieping vinden we 3 slaapkamers waarvan 2 aan de achterzijde van de woning en 1 aan de voorzijde. Op deze verdieping vinden we ook de ruime badkamer met tweede toilet, wastafel en een inloopdouche.

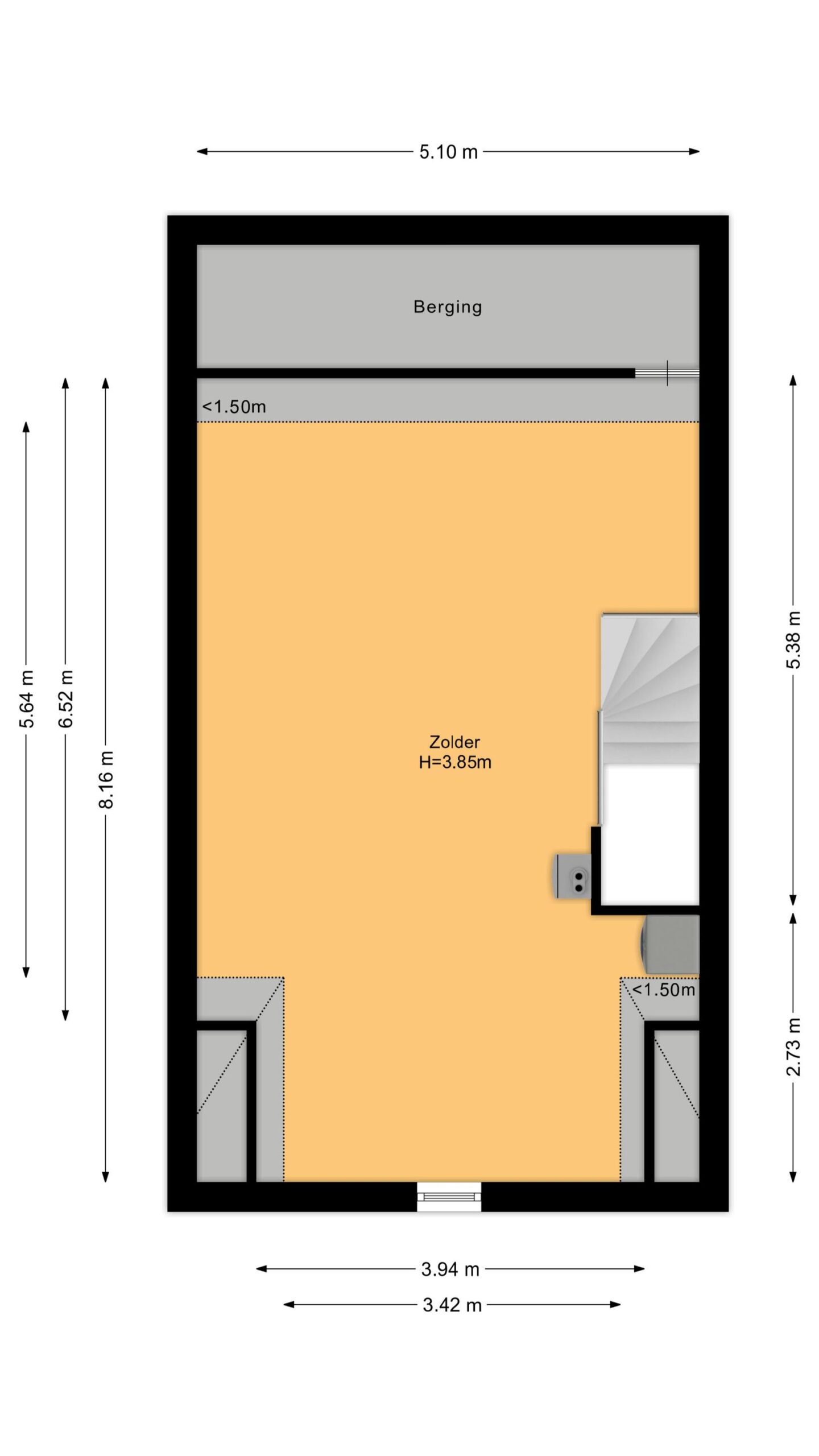
Tweede verdieping:
Via de vaste trap op de eerste verdieping, bereiken we de ruime tweede verdieping met grote open zolderkamer (4e slaapkamer). Op deze etage bevinden zich de aansluitingen voor de witgoedopstelling en het hoge nokplafond geeft de ruimte veel sfeer.

Tuin:
De achtertuin is gelegen op het noordoosten en kan nog naar eigen smaak en wens aangelegd worden. Achterin de tuin staat een handige houten berging welke voorzien is van elektriciteit.

Parkeren:
Er is parkeergelegenheid rond het huis

Kenmerken van de woning:
• Net opgeleverde nieuwbouwwoning, incl. moderne keuken en badkamer
• Extra ruime, tuingerichte woonkamer met openslaande tuindeuren
• 3 slaapkamers op de eerste verdieping + een grote zolderkamer (4e slaapkamer)
• Vloerverwarming en vloerkoeling in de gehele woning
• Kindvriendelijke omgeving met veel voorzieningen in het dorpscentrum
• Energielabel: A+++
• Volledige eigendom

Bijzonderheden:
• De volgende clausules zijn van toepassing: Niet-bewonersclausule (De verkopers hebben de woning niet zelf bewoond).
De tekst van deze clausule kun je vooraf bij ons kantoor opvragen.

** ENGLISH **

JUST FINISHED NEW BUILT HOME WITH ENERGY LABEL A+++

Are you looking for a new-build home in ā€˜t Zand but do you not want to wait for the building to be finished? Then this house is just right for you! Recently built, completely finished, super sustainable and practically move-in ready! All you have to do is move your own furniture in and the enjoyment can begin.

Located in a new housing estate on the edge of the friendly (coastal) village of ā€˜t Zand, we may offer this beautiful new built home. The house is equipped with everything you need for a great home: an extra deep, garden-oriented living room with a modern, open kitchen, 3 bedrooms and a spacious bathroom on the first floor + a large open attic room that is suitable as a very spacious 4th bedroom. As the icing on the cake, the house is ultimally energy efficient (energy label A+++) and has underfloor heating and underfloor cooling throughout the house. In the village centre, surprisingly many amenities can be found and for a wider range of facilities, the towns of Julianadorp, Anna Paulowna and Schagen are also just a short distance away.

Can you imagine yourself living here? Then contact us quickly!

About the location and neighbourhood:
This family house has a quiet location in a new housing estate just outside the village centre. 't Zand is a quiet village with many local amenities. There is a supermarket, GP, dentist, primary school and there are several local shops/businesses, sports clubs and restaurants in the village. There is also a bus stop in the village with a good bus service towards Schagen and Den Helder. The arterial roads (N9, N249) are also easily accessible.

Property layout:
Ground floor:
Behind the front door, we find the entrance with wardrobe, meter closet, guest toilet with hand basin, staircase to the first floor and access to the airy living room with an open kitchen.

The spacious living room is garden-oriented and has patio doors to the back garden.

The modern open kitchen is located at the front of the house and is equipped with Pelgrim built-in appliances: an induction hob, oven, steam oven, microwave, fridge, freezer and a dishwasher.

First floor:
On this floor, we find 3 bedrooms, 2 of which are at the rear of the house and 1 at the front. On this floor, we also find the spacious bathroom with a second toilet, washbasin and a walk-in shower.

Second floor:
Through the fixed staircase on the first floor, we reach the spacious second floor with a large open attic room (4th bedroom). On this floor, we also find the connections for the white goods set-up and the high ridge ceiling gives a lot of character to the room.

Garden:
The back garden is located on the northeast and can still be landscaped to your own taste and wishes. At the back of the garden stands a handy wooden shed which is equipped with electricity.

Parking:
There is parking space around the house.

Property features:
• Just finished new built home, including a modern kitchen and bathroom
• Extra spacious, garden-oriented living room with double patio doors
• 3 bedrooms on the first floor + a spacious attic room (4th bedroom)
• Underfloor heating and underfloor cooling throughout the house
• Child-friendly environment with many amenities in the village centre
• Energy label: A+++
• Full ownership

Details:
• The following clauses apply: Non-resident clause (The sellers have not lived in the property themselves).
The text of this clause can be requested from our office in advance.

Kenmerken

Overdracht

  • StatusBeschikbaar
  • KoopprijsVraagprijs € 485.000,- k.k.

Bouwvorm

  • Soort objectWoonhuis
  • Soort woningEengezinswoning
  • Type woningTussenwoning
  • Bouwjaar2025
  • BouwvormBestaande bouw
  • LiggingenIn woonwijk

Indeling

  • Woonoppervlakte143 m2
  • Perceeloppervlakte138 m2
  • Inhoud514 m3
  • Aantal kamers4
  • Aantal slaapkamers3
  • Aantal badkamers1

Energie

  • EnergieklasseA+++
  • VerwarmingVloerverwarming geheel, Warmtepomp
  • WarmwaterElektrische boiler eigendom
  • IsolatieVolledig geĆÆsoleerd
  • CombiketelNee

Buitenruimte

  • TuinAchtertuin, Voortuin
  • HoofdtuinAchtertuin
  • Oppervlakte62 m2
  • Ligging hoofdtuinNoordwest
  • AchteromJa
  • Kwaliteit tuinAan te leggen

Bergruimte

  • Schuur / BergingVrijstaand hout
  • VoorzieningenVoorzien van elektra
  • Totaal aantal1

Parkeergelegenheid

  • Parkeer faciliteitenOpenbaar parkeren
  • GarageGeen garage

Dak

  • Soort dakSamengesteld dak
  • Materiaal dakPannen, Bitumineuze Dakbedekking

Overig

  • Permanente bewoningJa
  • Onderhoud binnenUitstekend
  • Onderhoud buitenUitstekend
  • Huidig gebruikWoonruimte
  • Huidige bestemmingWoonruimte

VLIEG Makelaars: Grasland 3, 'T ZAND

Kan ik dit huis betalen?

Via deze tool bereken je het binnen 1 minuut!

Wil je het 100% zeker weten? Vraag dan een adviesgesprek aan met een financieel adviseur. Klik hier.

Hier staat jouw droomwoning

Plan een bezichtiging

"*" geeft vereiste velden aan

Dit veld is verborgen bij het bekijken van het formulier
Het vestigingsnummer van het huidige object
Dit veld is verborgen bij het bekijken van het formulier
De url van object/woning
Dit veld is verborgen bij het bekijken van het formulier
De titel van object/woning
Dit veld is verborgen bij het bekijken van het formulier