Nina Simonehof 23, Zaandijk

kamers 6 · 186 m2

nl

*English below*

ENERGIEZUINIGE WONING AAN HET WATER MET 4 SLAAPKAMERS EN 2 BADKAMERS MET TWEETAL EIGEN PARKEERPLAATSEN!

Wauw! Deze recent gebouwde eindwoning is ideaal voor wie op zoek is naar een modern en ultiem duurzaam huis op een mooie en groene locatie in Zaandijk. Dit bijzondere huis is gebouwd in 2023 en voldoet met energielabel A++++ aan de allerhoogste duurzaamheidsnormen. De woning heeft een eigenzinnige split-level indeling met zowel op de begane grond als op de eerste verdieping een woonkamer. De begane grond is zodoende ook heel goed te gebruiken als kantoor/praktijk aan huis. In totaal beschikt de woning over maar liefst 6 kamers waarvan 4 slaapkamers en 2 badkamers, wat dit tevens tot een zeer geschikte woning maakt voor gezinnen. Er zijn twee woonkamers en drie toiletten. Bovendien woon je hier in een rustige, autovrije straat met de mogelijkheid om een eigen boot aan te meren of te genieten van de grote (gemeenschappelijke) tuin.

Kom jij hier binnenkort thuis? Maak snel een afspraak voor een bezichtiging!

Over de ligging en de buurt:
Dit fijne familiehuis is gelegen aan een autovrije straat in het nieuwbouwgebied De Bannenhoven, onderdeel van de kindvriendelijke woonwijk Rooswijk Noord. De woning heeft een super centrale ligging op slechts enkele minuten lopen van de nodige voorzieningen en tevens zijn er meerdere basisscholen binnen enkele minuten lopen bereikbaar.
Het station Zaandijk Zaanse Schans bevindt zich op 5 minuten fietsafstand en vanaf daar zijn er snelle ov-verbindingen richting onder andere Amsterdam Centraal (18 minuten), Alkmaar (34 minuten) en Zaandam (6 minuten). Het centrum van Zaandam is tevens per fiets prima bereikbaar. De uitvalswegen (A8, A7 en ring A10) zijn ook vlot bereikbaar. Zelfs het Noordzeestrand bevindt zich op minder dan een halfuur reistijd. Je kunt dan ook wel zeggen dat deze locatie alles te bieden heeft waar Nederland beroemd om is: uitgestrekte polderlandschappen, de Zaanse Schans, Amsterdam Ʃn het prachtige Noordzeestrand.

Indeling van de woning:
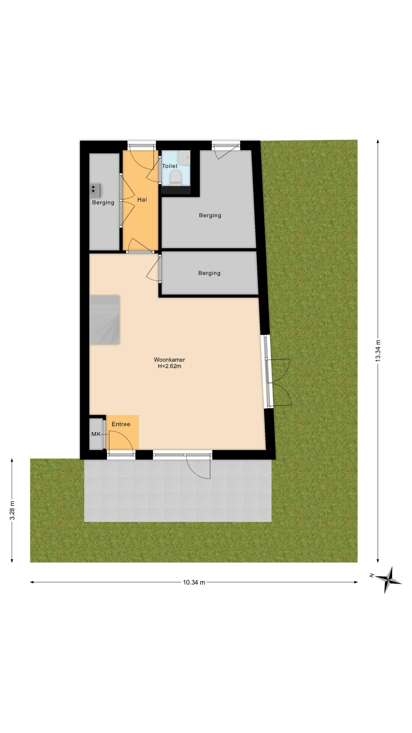
Begane grond:
De lichte woonkamer is gelegen op een hoek en geniet hierdoor van een prettige hoeveelheid lichtinval en biedt toegang tot een (eigen) voortuin.

Vanuit de woonkamer is er toegang tot een inpandige berging en tot een hal met achterdeur en toegang tot een separaat toilet met fonteintje.

Er is sprake van een strakke afwerking met een laminaatvloer.

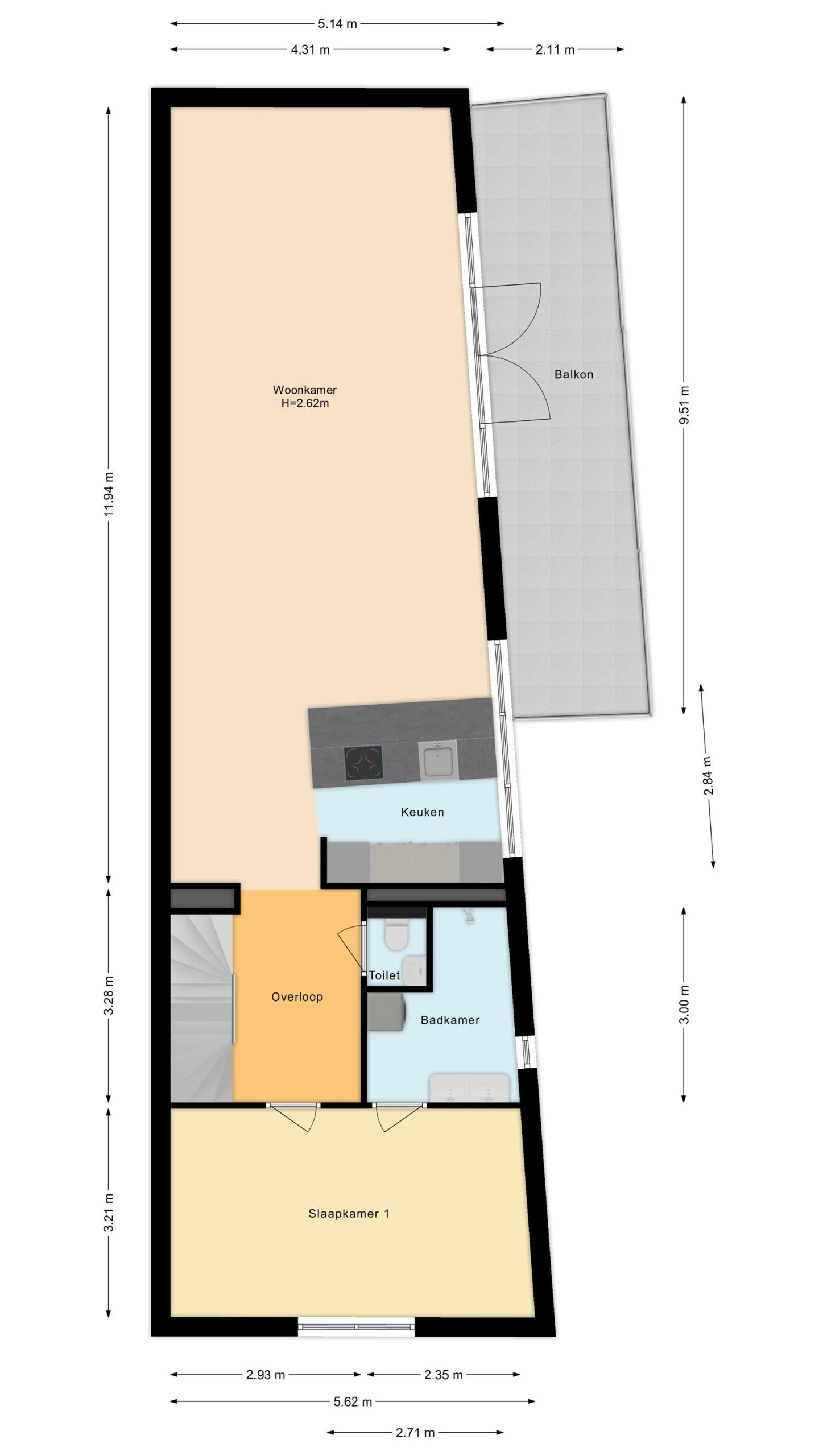
Eerste verdieping:
De overloop van deze verdieping staat in een open verbinding met de grote woonkamer met open keuken. Het hoge plafond met vide zorgt voor een open en ruimtelijk gevoel terwijl de grote raampartijen ook hier een prettige hoeveelheid lichtinval garanderen. Op het ruime terras (ligging: zuid) zit je beschut onder een luifel en heb je uitzicht over het water.

De moderne open keuken met kookeiland is uitgevoerd met luxe inbouwapparatuur: een Bora inductiekookplaat met ingebouwde afzuiging, een Quooker kraan (incl. zeeppomp), inbouw koffiezetapparaat, warmhoudlade, oven, koelkast, vriezer en een vaatwasser.

Op deze verdieping vinden we tevens een separaat toilet met fonteintje en een slaapkamer van een goed formaat die en suite toegang biedt tot een badkamer met een dubbele wastafel met meubel en een inloopdouche. Hier bevinden zich tevens de aansluitingen voor de witgoedopstelling.

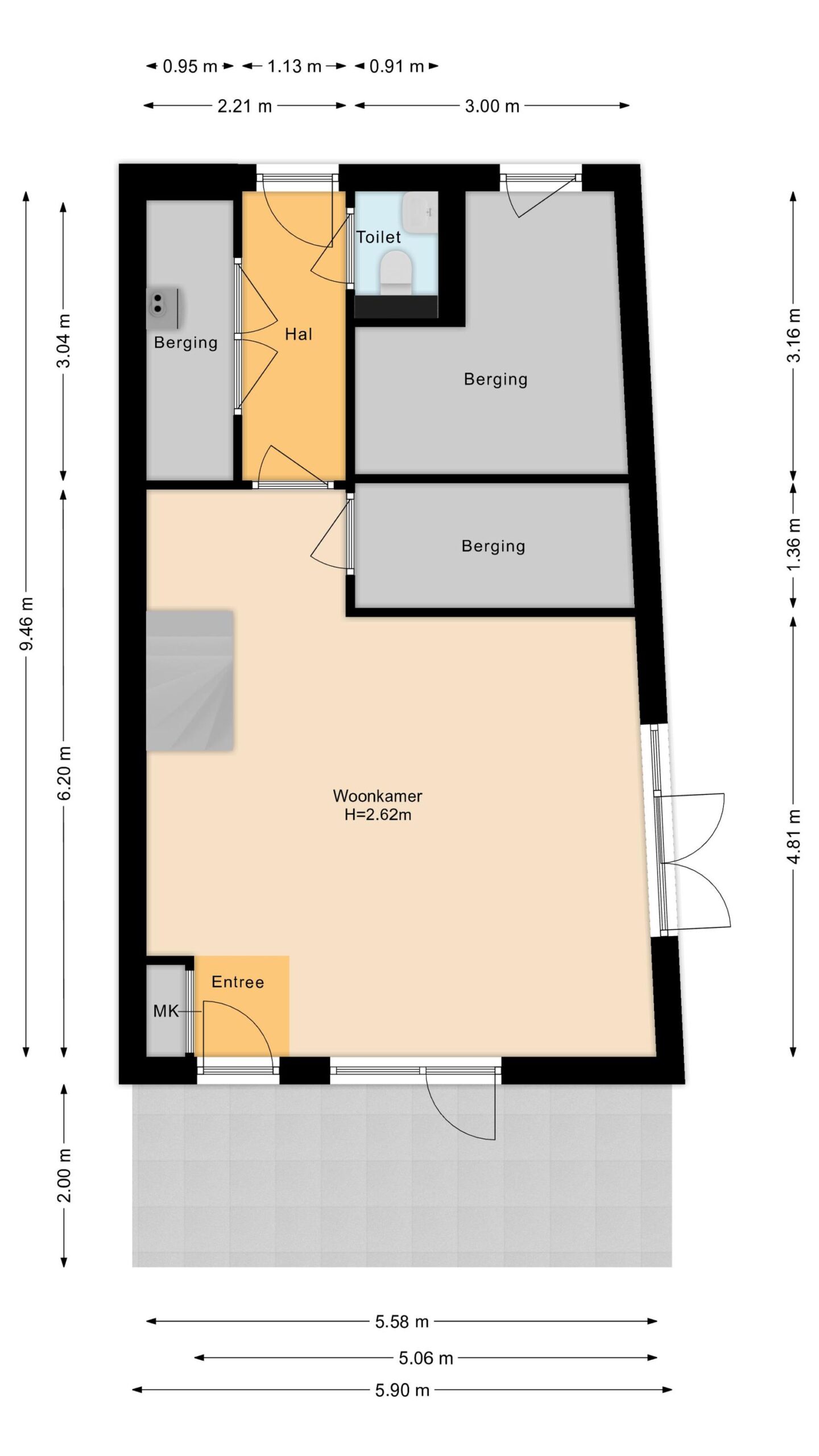
Tweede verdieping:
Vanaf de overloop is er toegang tot nog eens 3 slaapkamers en de tweede badkamer met een dubbele wastafel met meubel, zwevend toilet en inloopdouche.

Parkeren:
Twee eigen parkeerplaatsen.

Kenmerken van de woning:
- Instapklare en moderne gezinswoning met 4 slaapkamers en 2 badkamers
- Ultiem duurzaam: o.a. 28 zonnepanelen, volledige vloerverwarming en warmtepomp
- Bijzondere indeling met zowel op de begane grond als op de eerste verdieping een woonkamer, de keuken bevindt zich op de eerste verdieping
- Fraaie ligging aan het water met de mogelijkheid om een eigen boot aan te leggen
- Kindvriendelijke wijk met alle voorzieningen in de directe omgeving
- Snelle verbindingen met auto en openbaar vervoer richting onder andere Amsterdam en Alkmaar
- Uitvalswegen zijn vlot bereikbaar
- Energielabel: A++++
- Volledig eigendom.

ENERGY-EFFICIENT & WATERFRONT PROPERTY WITH 4 BEDROOMS AND 2 BATHROOMS

Wow! This recently built end-of-terrace house is ideal for those looking for a modern and ultimately sustainable home at a beautiful and green location in Zaandijk. This unique house was built in 2023 and meets the highest sustainability standards with an A++++ energy label. The house has a unique split-level layout with a living room on both the ground floor and the first floor. The ground floor is therefore also very suitable for use as a home office/practice. In total, the house has no less than 4 bedrooms and 2 bathrooms, which also makes it a very suitable home for families. What's more, you'll be living in a quiet, car-free street with the option of mooring your own boat or enjoying the large (communal) garden.

Will you be moving in soon? Make an appointment for a viewing now!

About the location and the neighborhood:
This lovely family home is located on a car-free street in the new De Bannenhoven neighbourhood, part of the child-friendly residential area of Rooswijk Noord. The property is very centrally located, just a few minutes' walk from the local shopping centre, and there are also several primary schools within walking distance. The station Zaandijk Zaanse Schans is located at 5 minutes cycling distance and from there there are fast public transport connections to Amsterdam Central Station (18 minutes), Alkmaar (34 minutes) and Zaandam (6 minutes), among others. The center of Zaandam is also easily accessible by bicycle. The highways (A8, A7 and ring A10) are also easily accessible. Even the North Sea beach is less than half an hour away by car. You can therefore say that this location has to offer everything that characterizes the Netherlands: vast polder landscapes, the Zaanse Schans, Amsterdam and the beautiful North Sea beach.

Lay-out of the house:
Ground floor:
The sunny living room is located on a corner and therefore enjoys a pleasant amount of natural light and provides access to a private garden next to the house, which is directly adjacent to the waterfront.

From the living room, there is access to an indoor storage room and to a hallway with a back door and access to a separate toilet with hand basin.

There is a sleek finish with a laminate floor.

First floor:
The landing on this floor stands in an open connection to the large living room with an open kitchen. The high ceiling with loft creates an open and spacious feeling, while the tall windows also guarantee a pleasant amount of natural light. The spacious balcony terrace (south-facing) has a view over the water.

The modern open kitchen with cooking island is equipped with luxury built-in appliances: a Bora induction hob with built-in extractor, a Quooker tap (including soap dispenser), built-in coffee machine, warming drawer, oven, fridge, freezer and a dishwasher.

On this floor, there is also a separate toilet with washbasin and a well-sized bedroom with en-suite access to a bathroom with double washbasin with vanity unit and walk-in shower. The connections for white goods are also located here.

Second floor:
From the landing, there is access to three more bedrooms and the second bathroom with a double washbasin with vanity unit, floating toilet and a walk-in shower.

Parking:
Two private parking spaces.

Features of the property:
- Turnkey and modern family home with 4 bedrooms and 2 bathrooms
- Ultimate sustainability: including 26 solar panels and full underfloor heating
- Unique layout with a living room on both the ground floor and the first floor; the kitchen is located on the first floor
- Beautiful location on the water with the possibility to moor your own boat
- Child friendly neighborhood with all amenities in the immediate vicinity
- Fast connections by car and public transport to Amsterdam and Alkmaar, among others
- Highways are easily accessible
- Energy label: A++++
- Full ownership

Kenmerken

Overdracht

  • StatusBeschikbaar
  • KoopprijsVraagprijs € 980.000,- k.k.

Bouwvorm

  • Soort objectWoonhuis
  • Soort woningEengezinswoning
  • Type woningHoekwoning
  • Bouwjaar2023
  • BouwvormBestaande bouw
  • LiggingenAan water, Aan rustige weg, In woonwijk

Indeling

  • Woonoppervlakte186 m2
  • Perceeloppervlakte68 m2
  • Inhoud712 m3
  • Aantal kamers6
  • Aantal slaapkamers4
  • Aantal badkamers2

Energie

  • EnergieklasseA++++
  • VerwarmingVloerverwarming geheel, Warmtepomp, Warmte terugwininstallatie
  • IsolatieVolledig geĆÆsoleerd
  • CombiketelNee

Buitenruimte

  • TuinVoortuin, Zonneterras
  • HoofdtuinVoortuin
  • Oppervlakte11 m2
  • Ligging hoofdtuinZuidwest
  • AchteromNee
  • Kwaliteit tuinFraai aangelegd

Bergruimte

  • Schuur / BergingInpandig
  • VoorzieningenVoorzien van elektra
  • Totaal aantal1

Parkeergelegenheid

  • Parkeer faciliteitenOp eigen terrein, Op afgesloten terrein
  • GarageParkeerplaats

Dak

  • Soort dakZadeldak
  • Materiaal dakLeisteen

Overig

  • Permanente bewoningJa
  • Onderhoud binnenGoed tot uitstekend
  • Onderhoud buitenGoed tot uitstekend
  • Huidig gebruikWoonruimte
  • Huidige bestemmingWoonruimte

Media Nina Simonehof 23

Kan ik dit huis betalen?

Via deze tool bereken je het binnen 1 minuut!

Wil je het 100% zeker weten? Vraag dan een adviesgesprek aan met een financieel adviseur. Klik hier.

Hier staat jouw droomwoning

Plan een bezichtiging

"*" geeft vereiste velden aan

Dit veld is verborgen bij het bekijken van het formulier
Het vestigingsnummer van het huidige object
Dit veld is verborgen bij het bekijken van het formulier
De url van object/woning
Dit veld is verborgen bij het bekijken van het formulier
De titel van object/woning
Dit veld is verborgen bij het bekijken van het formulier