Hartenweidtje 1, Bergen (nh)

kamers 5 · 169 m2

nl

VRIJSTAANDE SEMI BUNGALOW OP HELE FIJNE LOCATIE GELEGEN.

Keurig onderhouden en levensloopbestendige vrijstaande woning op een prachtige en groene locatie, nabij het centrum van Bergen en tevens vlakbij het Bergerbos. De ringweg Alkmaar (N9) is goed aan te rijden en sluit aan op de A9 richting Haarlem, Schiphol en Amsterdam. Aan de westzijde van Bergen nodigt het strand van Bergen aan Zee u uit voor een bezoek. Liever niet van het eigen erf af? De grote tuin rondom de woning met meerdere terrassen biedt u volop mogelijkheden om heerlijk te genieten van het parkachtige buitenleven in uw eigen tuin.

Deze royale woning voorziet u van alle luxe om comfortabel te wonen: een ruime woonkamer met open leefkeuken, een kantoorruimte Ʃn slaapkamer op de begane grond evenals 2 badkamers en een grote bijkeuken. Boven zijn er nog eens 2 slaapkamers en een badkamer te vinden.

Indeling van de woning:
Begane grond:
Oprijpad met ruimte voor de auto onder de carport.

Ruime entreehal met aan onze rechterhand toegang tot de slaapkamer en kantoorruimte. Helemaal rechtdoor zit een badkamer (met een vrijstaand ligbad en een wastafel) en daarnaast een separaat toilet. Aan onze linkerhand zit de toegang tot de woonkamer met open keuken.

De woonkamer strekt zich uit over de gehele lengte van het huis en laat via grote raampartijen langs 3 zijden ontzettend veel lichtinval en een fraai uitzicht op de tuin naar binnen. De woonkamer beschikt over een fraaie houten vloer en een gezellige haard.

Moderne open keuken met een kookeiland/bar, een gasfornuis, koelkast, vriezer, oven en een vaatwasser. Openslaande deuren en een extra achterdeur bieden toegang tot de tuin.

Via het kantoor is er toegang tot een zeer ruime bijkeuken met een kitchenette en de aansluitingen voor de witgoedopstelling. Ook hier is een achterdeur aanwezig en vanuit hier is er toegang tot een badkamer met wastafel en douche.

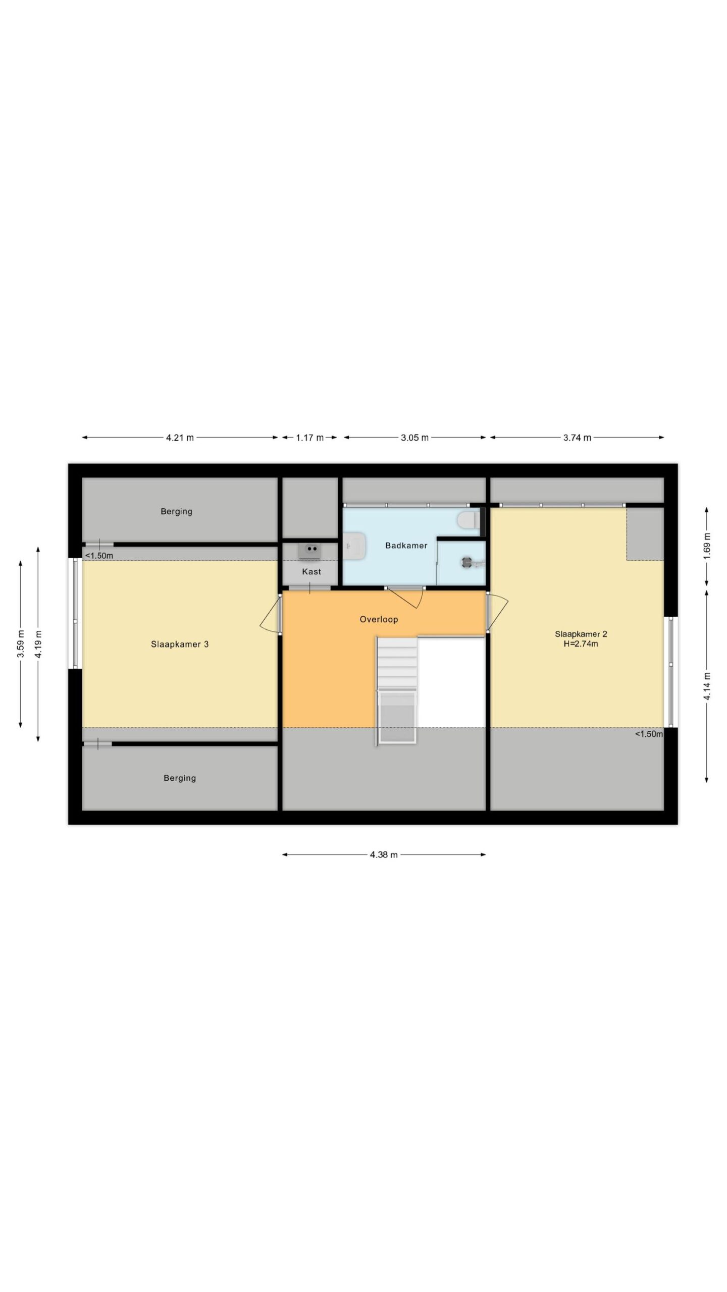
Eerste verdieping:
Overloop, 2 zeer ruime slaapkamers – beide voorzien van een houten vloer – en een badkamer met toilet, wastafel en douche.

Tuin:
De villa is gelegen op een royaal perceel met een grote tuin rondom de woning. De tuin heeft een variatie van gras, hagen, bomen terrassen. Geschakeld aan de woning zit een handige houten berging met geschakelde overkapping met verandaterras.

Kenmerken van de woning:
• Royale semi bungalow in goede staat van onderhoud op een ruim perceel
• Levensloopbestendig met een kantoorruimte, slaapkamer en 2 badkamers op de begane grond
• Prachtige, lommerrijke locatie, nabij het centrum van Bergen
• Parkeergelegenheid op eigen terrein onder de carport
• Energielabel: D

Kenmerken

Overdracht

  • StatusBeschikbaar
  • KoopprijsVraagprijs € 1.250.000,- k.k.

Bouwvorm

  • Soort objectWoonhuis
  • Soort woningVilla
  • Type woningVrijstaande woning
  • Bouwjaar1971
  • BouwvormBestaande bouw
  • LiggingenAan rustige weg, Beschutte ligging

Indeling

  • Woonoppervlakte169 m2
  • Perceeloppervlakte566 m2
  • Inhoud595 m3
  • Aantal kamers5
  • Aantal slaapkamers4
  • Aantal badkamers3

Energie

  • EnergieklasseD
  • VerwarmingCV ketel, Vloerverwarming gedeeltelijk
  • Bouwjaar C.V.-Ketel2015
  • WarmwaterCV ketel
  • IsolatieDakisolatie, Vloerisolatie, Dubbelglas
  • CombiketelJa
  • BrandstofGas
  • EigendomEigendom

Buitenruimte

  • TuinTuin rondom
  • HoofdtuinTuin rondom
  • AchteromJa
  • Kwaliteit tuinVerzorgd

Bergruimte

  • Schuur / BergingVrijstaand hout

Parkeergelegenheid

  • Parkeer faciliteitenOp eigen terrein
  • GarageCarport, Geen garage

Dak

  • Soort dakZadeldak
  • Materiaal dakPannen

Overig

  • Permanente bewoningJa
  • Onderhoud binnenGoed
  • Onderhoud buitenGoed
  • Huidig gebruikWoonruimte
  • Huidige bestemmingWoonruimte

Hartenweidtje 1 te Bergen NH

Kan ik dit huis betalen?

Via deze tool bereken je het binnen 1 minuut!

Wil je het 100% zeker weten? Vraag dan een adviesgesprek aan met een financieel adviseur. Klik hier.

Hier staat jouw droomwoning

Plan een bezichtiging

"*" geeft vereiste velden aan

Dit veld is verborgen bij het bekijken van het formulier
Het vestigingsnummer van het huidige object
Dit veld is verborgen bij het bekijken van het formulier
De url van object/woning
Dit veld is verborgen bij het bekijken van het formulier
De titel van object/woning
Dit veld is verborgen bij het bekijken van het formulier