Delving 42, Akersloot

kamers 5 · 186 m2

nl

**ENGLISH BELOW**

GROTE VRIJSTAANDE WONING OP EEN ROYAAL PERCEEL AAN HET WATER

Deze royale vrijstaande woning (1991) beschikt over alles – en meer – wat je nodig hebt voor een fijn thuis: een grote woonkamer met prachtig hoog plafond (5,45 meter!), een (nieuwe!) open leefkeuken, een inpandige garage, 4 slaapkamers (waarvan 1 met inloopkast) en 2 badkamers. Een ideale plek dus voor wie op zoek is naar een luxe woning met veel leefruimte.

Het geheel verkeert in keurige staat van onderhoud en staat op een ruim perceel met een fraaie tuin op het westen. De tuin grenst aan een brede sloot, wat zorgt voor een vrij en parkachtig gevoel.

De kindvriendelijke wijk nabij de groene rand van Akersloot maakt het perfecte plaatje compleet.

Heb jij je volledige wensenlijstje kunnen afstrepen? Neem dan snel contact op voor een bezichtiging!

Over de ligging en de buurt
Gemoedelijk woonplezier in een rustig dorp midden in de polder, dat zich desalniettemin op een steenworp afstand van de grote steden bevindt. Dat typeert wonen in Akersloot.

Akersloot is een rustig dorp met een fraaie ligging aan het Alkmaardermeer. Vanuit de woning ben je zo in de Hempolder: een mooi natuurgebied dat grenst aan het meer en waar zich tevens verschillende sportverenigingen bevinden. Akersloot biedt een rijk aanbod aan voorzieningen, zoals een winkelcentrum, diverse speciaalzaken en buurtwinkels, basisscholen, kinderopvang, een huisartsenpraktijk en diverse restaurants en cafƩs. Dankzij de bushaltes in het dorp en de nabijgelegen A9 is de bereikbaarheid uitstekend.

Indeling van de woning

Begane grond
Via de ruime voortuin met oprit en privacybiedende hagen komen we bij de voordeur van de woning.

Achter de voordeur bevindt zich de ruime entreehal met meterkast, gastentoilet met fonteintje, inpandige toegang tot de garage en twee toegangsdeuren naar de woonkamer.

De royale woonkamer strekt zich uit over de gehele lengte van de woning en geniet door de grote raampartijen van een overvloed aan lichtinval. Het indrukwekkend hoge plafond versterkt het ruimtelijke gevoel, terwijl de gezellige haard voor extra sfeer zorgt. De ruimte is afgewerkt met een mooie houten vloer en via een grote schuifpui is er toegang tot de tuin.

Via een open toog lopen we naar de ruime leefkeuken aan de tuinzijde van de woning. Ook hier is een grote schuifpui naar buiten aanwezig. De luxe, nieuwe keuken met kookeiland/bar is uitgerust met een inductiekookplaat, oven, magnetron, stoomoven, koelkast, vriezer, Quooker-kraan, warmhoudlade en vaatwasser.

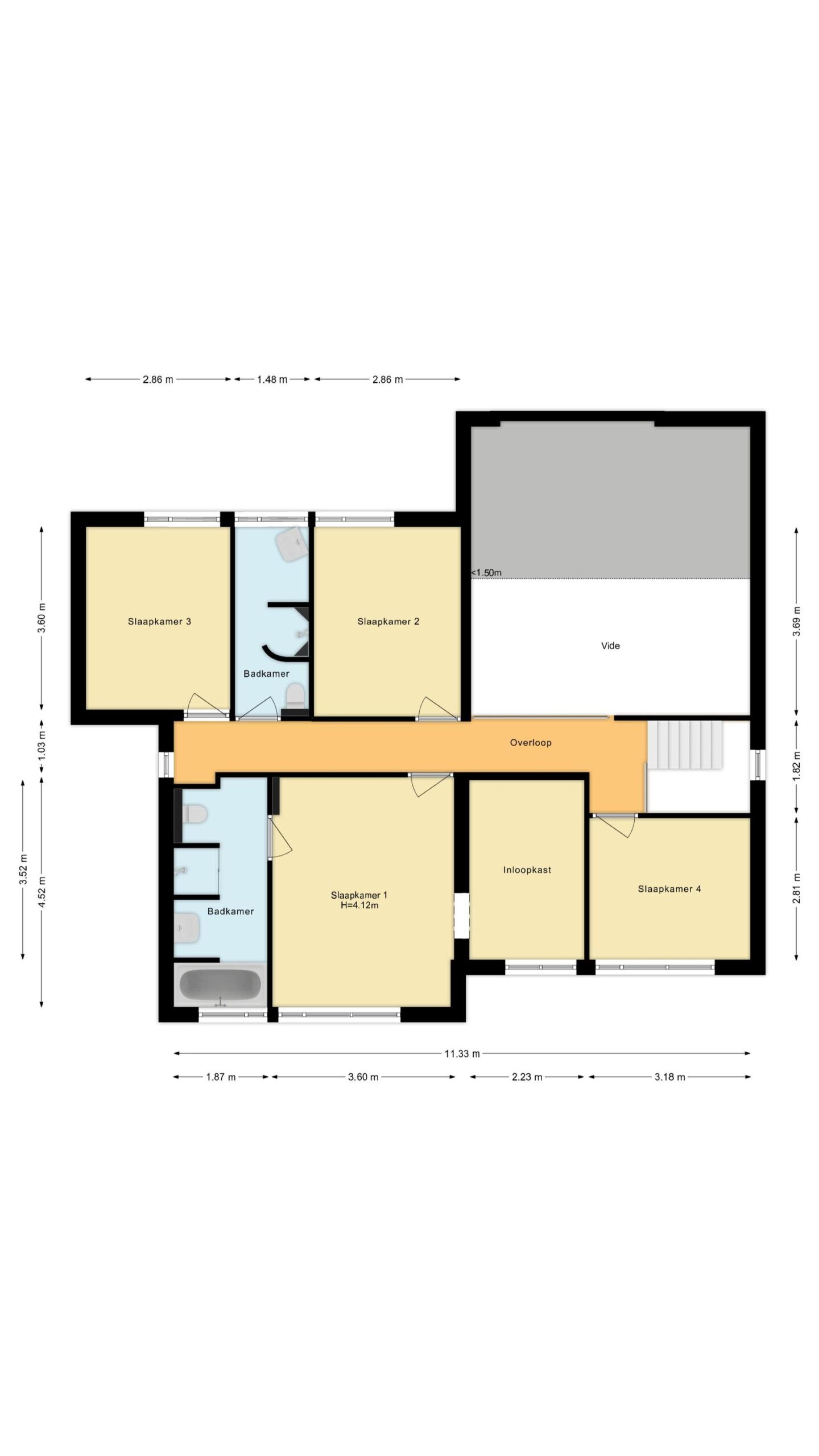
Eerste verdieping
Vanaf de overloop is er toegang tot vier slaapkamers en ƩƩn van de twee badkamers. Alle slaapkamers zijn fraai afgewerkt met houten vloeren.

De master bedroom heeft, net als de woonkamer, een prachtig hoog plafond (ruim 4 meter) en beschikt over een ruime inloopkast en een eigen badkamer en suite. Deze badkamer is voorzien van inbouwspots, een zwevend toilet, een wastafel, ligbad en een aparte inloopdouche. De tweede badkamer is eveneens voorzien van inbouwspots, een zwevend toilet, een wastafel met meubel en een inloopdouche.

Tuin
De woning ligt op een royaal perceel op het westen en beschikt over een verzorgd aangelegde achtertuin met een evenwichtige verdeling van bestrating, vlonders en groene borders en gazon. Omdat het een hoekperceel betreft dat aan water grenst, zit je hier heerlijk rustig, vrij en privƩ. In de voortuin staat een ruime houten berging.

Parkeren
Er is parkeergelegenheid op eigen terrein: oprit en garage.

Kenmerken van de woning:
• Bijzondere vrijstaande woning met veel leefruimte en grote, open ruimtes
• Prachtige woonkamer met plafond van 5,45 meter hoog
• Nieuwe leefkeuken met kookeiland/bar
• 4 slaapkamers (waarvan 1 met inloopkast), 2 badkamers
• Royaal hoekperceel dat grenst aan het water
• Gelegen aan een rustige straat met alleen bestemmingsverkeer
• Energielabel: A
• Volledige eigendom

--------------------------------------------------------------------------------------------------------------------------------------------------

LARGE DETACHED HOME ON A GENEROUS WATERFRONT PLOT

This spacious detached home (1991) offers everything – and more – you need for comfortable family living: a large living room with an impressive high ceiling (5.45 metres!), a (new!) open-plan kitchen, an integral garage, 4 bedrooms (including 1 with walk-in wardrobe) and 2 bathrooms. An ideal property for anyone seeking a luxurious home with ample living space.

The property is in excellent condition and stands on a generous plot with a beautifully landscaped west-facing garden. The garden borders a wide waterway, creating an open and park-like sense of space.

The child-friendly residential area near the green outskirts of Akersloot completes the perfect picture.

Have you been able to tick off your entire wish list? Then contact us today to arrange a viewing!

Location and neighbourhood
Pleasant living in a quiet village set amid open polder landscapes, yet just a stone’s throw from the major cities – that is what characterises life in Akersloot.

Akersloot is a peaceful village with a beautiful setting on the Alkmaardermeer lake. From the property you can quickly reach the Hempolder, a lovely nature area bordering the lake and home to several sports clubs nearby. Akersloot offers a wide range of amenities, including a shopping centre, various local shops and boutiques, primary schools, childcare facilities, a GP practice and several restaurants and cafƩs. Thanks to bus connections within the village and the nearby A9 motorway, accessibility is excellent.

Layout of the property

Ground floor
The front door is reached via the spacious front garden with driveway and privacy-enhancing hedges.

Behind the front door is the generous entrance hall with meter cupboard, guest WC with washbasin, internal access to the garage and two doors leading to the living room.

The expansive living room extends across the full depth of the house and benefits from abundant natural light through large windows. The striking high ceiling enhances the sense of space, while the fireplace adds warmth and atmosphere. The room is finished with a beautiful wooden floor and a large sliding door provides access to the garden.

Through an open archway we enter the spacious kitchen-diner at the garden side of the home, which also features a large sliding door to the outside. The luxurious new kitchen with island/breakfast bar is equipped with an induction hob, oven, microwave, steam oven, fridge, freezer, Quooker tap, warming drawer and dishwasher.

First floor
The landing provides access to four bedrooms and one of the two bathrooms. All bedrooms are attractively finished with wooden flooring.

The principal bedroom, like the living room, features a beautiful high ceiling (over 4 metres) and includes a spacious walk-in wardrobe and its own en-suite bathroom. This bathroom is fitted with recessed spotlights, a wall-hung toilet, washbasin, bathtub and separate walk-in shower. The second bathroom is likewise fitted with recessed spotlights, a wall-hung toilet, a vanity unit with washbasin and a walk-in shower.

Garden
The home stands on a generous west-facing plot and features a well-maintained rear garden with a balanced mix of paving, decking and planted borders with lawn. As this is a corner plot bordering water, the garden offers a wonderfully peaceful, private and open setting. A spacious wooden storage shed is located in the front garden.

Parking
Parking is available on private property: driveway and garage.

Property features:
• Unique detached house with lots of living space and big, open rooms
• Beautiful living room with a ceiling of 5,45 metres high
• New living kitchen with a cooking island/bar
• 4 bedrooms (1 of which with a walk-in closet), 2 bathrooms
• Large corner plot bordering on water
• Situated on a quiet street with only local traffic
• Energy label: A
• Full ownership

Kenmerken

Overdracht

  • StatusBeschikbaar
  • KoopprijsVraagprijs € 975.000,- k.k.

Bouwvorm

  • Soort objectWoonhuis
  • Soort woningVilla
  • Type woningVrijstaande woning
  • Bouwjaar1991
  • BouwvormBestaande bouw
  • LiggingenAan water, In woonwijk

Indeling

  • Woonoppervlakte186 m2
  • Perceeloppervlakte720 m2
  • Inhoud851 m3
  • Aantal kamers5
  • Aantal slaapkamers4
  • Aantal badkamers2

Energie

  • EnergieklasseA
  • VerwarmingCV ketel
  • C.V.-KetelRemeha CW4
  • Bouwjaar C.V.-Ketel2024
  • WarmwaterCV ketel
  • IsolatieVolledig geĆÆsoleerd
  • CombiketelJa
  • BrandstofGas
  • EigendomEigendom

Buitenruimte

  • TuinTuin rondom
  • HoofdtuinTuin rondom
  • AchteromJa
  • Kwaliteit tuinVerzorgd

Bergruimte

  • Schuur / BergingVrijstaand hout
  • Totaal aantal1

Parkeergelegenheid

  • Parkeer faciliteitenOpenbaar parkeren, Op eigen terrein
  • GarageInpandig
  • Capaciteit1
  • Garages1

Dak

  • Soort dakSamengesteld dak

Overig

  • Permanente bewoningJa
  • Onderhoud binnenUitstekend
  • Onderhoud buitenUitstekend
  • Huidig gebruikWoonruimte
  • Huidige bestemmingWoonruimte

VLIEG Makelaars: Delving 42, AKERSLOOT

Kan ik dit huis betalen?

Via deze tool bereken je het binnen 1 minuut!

Wil je het 100% zeker weten? Vraag dan een adviesgesprek aan met een financieel adviseur. Klik hier.

Hier staat jouw droomwoning

Plan een bezichtiging

"*" geeft vereiste velden aan

Dit veld is verborgen bij het bekijken van het formulier
Het vestigingsnummer van het huidige object
Dit veld is verborgen bij het bekijken van het formulier
De url van object/woning
Dit veld is verborgen bij het bekijken van het formulier
De titel van object/woning
Dit veld is verborgen bij het bekijken van het formulier