Noorderstraat 54, Alkmaar

kamers 2 · 55 m2

nl

AANTREKKELIJK 2K-APPARTEMENT MET MOGELIJKHEID VOOR EIGEN PARKEERPLAATS
Dit comfortabele, ruime appartement (1 slaapkamer) met balkon en (mogelijkheid voor) eigen parkeerplaats binnen nieuwbouwproject Ringers te Alkmaar, mogen wij wegens omstandigheden doorverkopen.
Geplande oplevering begin 2027 (indicatief).

Omschrijving
Aantrekkelijk gelegen, grenzend aan het gezellige stadscentrum van Alkmaar, 2-kamer appartement met mogelijkheid voor het bijkopen van eigen parkeerplaats binnen nieuwbouwproject Ringers.
Het appartement is gelegen op de 4e verdieping en biedt een fijne combinatie van prettig ingedeelde woonruimte, comfort en duurzaamheid. Met circa 55 m² woonoppervlak, een separate slaapkamer en een dakterras op het Noorden, is dit appartement ideaal voor starters, stellen of mensen die willen genieten van het wonen in een stedelijke omgeving. Met vloerverwarming, balansventilatie en de HVC warmte, woon je hier gasloos en toekomstbestendig.

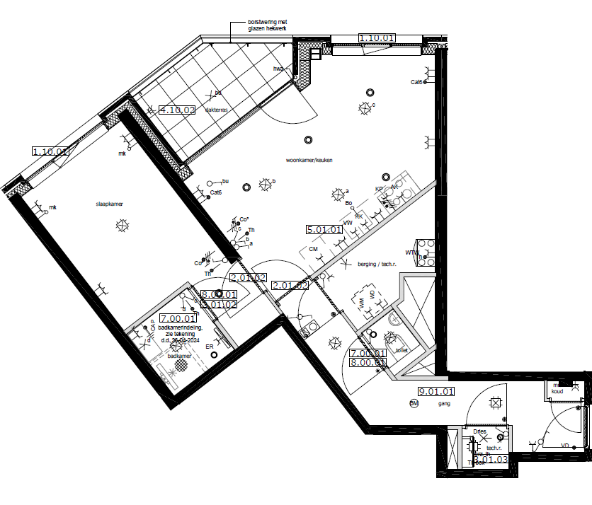
Indeling
Begane grond
Je komt binnen via de gezamenlijke entree met lift en trapopgang.

2e Verdieping
Vanuit de centrale hal bereik je het appartement. Hier bevinden zich een technische ruimte en een ruime gang naar het toilet en een tweede technische ruimte / berging met opstellingsmogelijkheid voor wasmachine en droger.

Vanuit deze hal loop je door naar de ruime woonkamer met open keuken inclusief basisopstelling (20 m2) en een doorloop naar het dakterras.

De slaapkamer bevindt zich ook deze Noorzijde dus is heerlijk koel in zomer. Vanuit de slaapkamer is de badkamer bereikbaar.

Duurzaamheid
Dit appartement is voorzien van vloerverwarming en balansventilatie. De woning is voorbereid op gasloos wonen met een aansluiting voor HVC warmte. Zo woon je comfortabel Ʃn energiezuinig, klaar voor de toekomst.
Het (voorlopige) energielabel is A++.

Ligging
Het appartement maakt deel uit van het aantrekkelijke project Ringers, gelegen op loopafstand van het gezellige stadscentrum en pal in Overstad. Hier woon je in de reuring van gezellige stad met alle voorzieningen rondom, alsmede met als locatie fraai uitzicht op het Noordhollands Kanaal. Bus- en treinstation liggen op 5 minuten afstand.

Pluspunten:
- Nieuwe koopwoning nieuwbouw Ringers
- Balkon op het Noorden van circa 6 m²
- Vloerverwarming en balansventilatie
- Woning is incl. basis keuken opstelling starterswoning
- Woning is incl. sanitair en tegelwerk badkamer en toilet
- Incl. meerwerk ad. € 8.919,29
- HVC Stadsverwarming met vloerwarming / koeling
- WTW systeem
- (Voorlopig) energielabel is A++
- Eigen parkeerplaats in stallingsgarage aanwezig en bij te kopen

Bijzonderheden:
-Projectnotaris: Erkamp Boot en Willemsen te Alkmaar
-Bouwnummer 320 (appartement) en 527 (parkeerplaats)
-Koopsom parkeerplaats € 29.500,=
-Daar het een doorverkoop betreft van een nieuwbouw appartement dat nog niet is opgeleverd zal de koopsom deels belast zijn met overdrachtsbelasting voor koper en deels inclusief BTW (over de niet vervallen termijnen van de aanneemsom).
-Oplevering gepland 1e kwartaal 2027

Zie jij jezelf al wonen in dit comfortabele en duurzame appartement? Maak snel een afspraak voor een kennismakingsgesprek! Wij vertellen je graag alles over dit bijzondere appartement en de mogelijkheden.

Kenmerken

Overdracht

  • StatusBeschikbaar
  • KoopprijsVraagprijs € 329.500,- k.k.

Bouwvorm

  • Soort objectAppartement
  • Bouwjaar2027
  • Bouwjaar toelichtingOplevering Q1-2027
  • Bouwjaar periodeVANAF_2021_TM_2030
  • BouwvormNieuwbouw
  • LiggingenIn centrum, Aan vaarwater

Indeling

  • Woonoppervlakte55 m2
  • Inhoud143 m3
  • Aantal kamers2
  • Aantal slaapkamers1
  • Aantal badkamers1
  • Aantal woonlagen1

Energie

  • EnergieklasseA++
  • VerwarmingStadsverwarming, Electrische verwarming
  • WarmwaterStadsverwarming
  • IsolatieVolledig geĆÆsoleerd
  • CombiketelNee

Buitenruimte

  • TuinGeen tuin
  • AchteromNee

Parkeergelegenheid

  • Parkeer faciliteitenParkeergarage
  • GarageParkeerkelder

Dak

  • Soort dakPlat dak

Overig

  • Permanente bewoningJa
  • Onderhoud binnenUitstekend
  • Onderhoud buitenUitstekend
  • Huidig gebruikWoonruimte
  • Huidige bestemmingWoonruimte

Kan ik dit huis betalen?

Via deze tool bereken je het binnen 1 minuut!

Wil je het 100% zeker weten? Vraag dan een adviesgesprek aan met een financieel adviseur. Klik hier.

Hier staat jouw droomwoning

Plan een bezichtiging

"*" geeft vereiste velden aan

Dit veld is verborgen bij het bekijken van het formulier
Het vestigingsnummer van het huidige object
Dit veld is verborgen bij het bekijken van het formulier
De url van object/woning
Dit veld is verborgen bij het bekijken van het formulier
De titel van object/woning
Dit veld is verborgen bij het bekijken van het formulier