Jhr.Mr.Dr. H.A. van Karnebeeklaan 14, Amstelveen

kamers 6 · 144 m2

nl

Goed onderhouden ruime eengezinswoning met 5 slaapkamers, 2 badkamers en zonnige tuin op het zuiden!

Aan de Jhr. Mr. Dr. H.A. van Karnebeeklaan 14 in Amstelveen treft u deze goed onderhouden en verrassend ruime eengezinswoning met een woonoppervlakte van 144m2. De woning biedt u maar liefst vijf slaapkamers en twee badkamers, een woning waar ruimte en comfort hand in hand gaan. De lichte woonkamer met open keuken vormt het hart van het huis en sluit naadloos aan op de zonnige achtertuin op het zuiden. Met een moderne keuken, airconditioning en dakkapellen aan zowel de voor- als achterzijde beschikt u hier over een woning met volop mogelijkheden en hedendaags wooncomfort, gelegen in een rustige straat midden in het stadscentrum.

De woning bevindt zich op een centrale en geliefde locatie in Amstelveen, waar u profiteert van een uitstekende combinatie van rust en voorzieningen. In de directe omgeving vindt u diverse supermarkten, winkels en horecagelegenheden. Scholen en kinderopvang bevinden zich op korte afstand, evenals sportclubs en recreatiemogelijkheden. Het openbaar vervoer is uitstekend geregeld met bushaltes en tramverbindingen nabij, waardoor u snel in Amsterdam en omliggende steden bent. Ook de uitvalswegen richting de A9 en A10 zijn eenvoudig bereikbaar, wat zorgt voor een optimale verbinding met de rest van de Randstad.

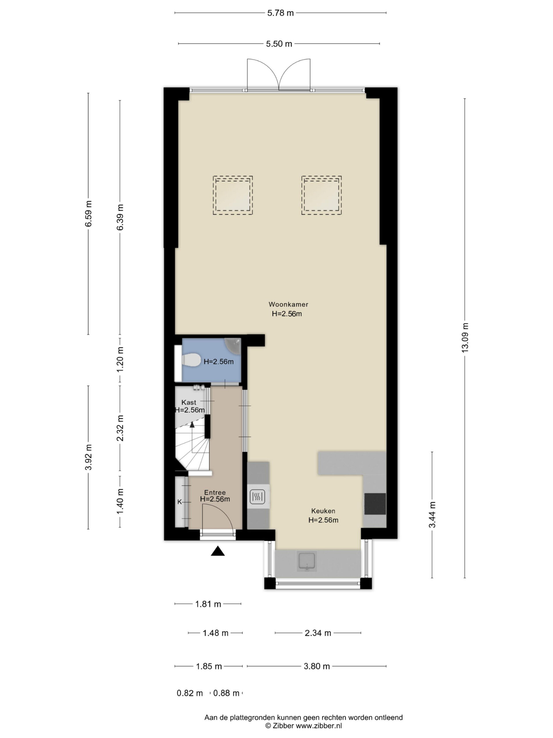
Entree
Via de verzorgde voortuin betreedt u de woning en komt u binnen in de hal. Hier ervaart u direct een prettige binnenkomst met toegang tot de woonkamer, de toiletruimte en de trap naar de eerste verdieping. De hal vormt een praktische en uitnodigende schakel tussen de verschillende ruimtes.

Woonkamer
De woonkamer vormt het hart van de begane grond en kenmerkt zich door de open indeling en de aangename lichtinval dankzij de grote raampartijen en lichtstraat. Hier heeft u volop ruimte voor een comfortabele zithoek en een gezellige eethoek. De openslaande deuren verbinden binnen moeiteloos met buiten en de aanwezige airconditioning zorgt voor extra comfort in elk seizoen.

Keuken
Aan de voorzijde van de woning bevindt zich de moderne open keuken, die in 2024 volledig is vernieuwd. De keuken is strak uitgevoerd en voorzien van hoogwaardige inbouwapparatuur, waaronder een inductiekookplaat, afzuigkap, Quooker, oven, magnetron, grote koelkast, vriezer en vaatwasser. Dankzij de praktische indeling en ruime opbergmogelijkheden is dit een heerlijke plek om te koken en samen te komen.

1e verdieping
Via de vaste trap bereikt u de eerste verdieping, waar zich drie slaapkamers en de badkamer bevinden.

Slaapkamers
De drie slaapkamers op deze verdieping zijn stuk voor stuk ruim en licht. Elke kamer biedt voldoende plek voor een bed, kast en eventueel een bureau, waardoor ze flexibel in te richten zijn. EƩn van de slaapkamers is bovendien voorzien van airconditioning, wat zorgt voor extra comfort tijdens warme dagen.

Sanitair
De moderne badkamer grenst aan de overloop en is volledig betegeld. Hier beschikt u over een comfortabel ligbad, een douche, een wastafel met spiegel en een praktisch opbergmeubel. Daarnaast is er een handdoekradiator aanwezig. De separate toiletruimte op deze verdieping zorgt voor extra gemak.

2e verdieping
Via een vaste trap bereikt u de tweede verdieping. Hier vindt u nog twee ruime slaapkamers en een tweede badkamer. Dankzij de dakkapellen aan zowel de voor- als achterzijde zijn deze ruimtes heerlijk licht en verrassend ruim. De slaapkamers zijn multifunctioneel en kunnen dienen als slaap-, werk- of hobbykamer. De tweede badkamer is volledig betegeld en voorzien van een douche, dubbele wastafel en een zwevend toilet, wat deze verdieping ideaal maakt voor grotere gezinnen of gasten.

Buitenruimte
De achtertuin is een fijne en zonnige plek, gelegen op het zuiden. De tuin is deels bestraat en deels groen ingericht. U heeft hier volop ruimte voor een terras en meerdere zitplekken. Daarnaast beschikt de tuin over een berging en een overkapping, waardoor u hier het hele jaar door kunt genieten van het buitenleven.

Parkeren
In de directe omgeving van de woning is voldoende parkeergelegenheid aanwezig, waardoor u altijd dichtbij huis kunt parkeren. In dit gebied heeft u echter wel een parkeervergunning nodig (kosten € 40,- per jaar)

Bijzonderheden
• Woonoppervlakte 144m2
• Goed onderhouden gezinswoning
• 5 slaapkamers
• 2 badkamers
• Moderne keuken vernieuwd in 2024, inclusief luxe inbouwapparatuur
• Lichte woonkamer met open indeling en lichtstraat
• Airconditioning aanwezig
• Nieuw dak
• Dakkapellen aan voor- en achterzijde
• Zonnige achtertuin op het zuiden
• Berging en overkapping in de tuin
• Gelegen in een rustige straat midden in het stadscentrum
• Goede bereikbaarheid en voorzieningen nabij

Kenmerken

Overdracht

  • StatusOnder bod
  • KoopprijsVraagprijs € 1.150.000,- k.k.

Bouwvorm

  • Soort objectWoonhuis
  • Soort woningEengezinswoning
  • Type woningTussenwoning
  • Bouwjaar1955
  • BouwvormBestaande bouw
  • LiggingenIn centrum, In woonwijk

Indeling

  • Woonoppervlakte144 m2
  • Perceeloppervlakte168 m2
  • Inhoud511 m3
  • Aantal kamers6
  • Aantal slaapkamers5
  • Aantal badkamers2

Energie

  • EnergieklasseB
  • VerwarmingCV ketel
  • C.V.-KetelIntergas Kompakt HRE
  • Bouwjaar C.V.-Ketel2016
  • WarmwaterCV ketel
  • IsolatieDakisolatie, Muurisolatie, Vloerisolatie, Dubbelglas, Driedubbel glas
  • CombiketelJa
  • BrandstofGas
  • EigendomEigendom

Buitenruimte

  • TuinAchtertuin, Voortuin
  • HoofdtuinAchtertuin
  • Oppervlakte66 m2
  • Ligging hoofdtuinZuid
  • AchteromJa
  • Kwaliteit tuinVerzorgd

Bergruimte

  • Schuur / BergingVrijstaand steen
  • VoorzieningenVoorzien van elektra
  • IsolatieGeen spouw
  • Totaal aantal1

Parkeergelegenheid

  • Parkeer faciliteitenOpenbaar parkeren
  • ToelichtingBetaald parkeren (vergunning)
  • GarageGeen garage

Dak

  • Soort dakZadeldak
  • Materiaal dakPannen
  • ToelichtingGeĆÆsoleerd

Overig

  • Permanente bewoningJa
  • Onderhoud binnenGoed tot uitstekend
  • Onderhoud buitenGoed tot uitstekend
  • Huidig gebruikWoonruimte
  • Huidige bestemmingWoonruimte

VLIEG Makelaars: Jhr.Mr.Dr. H.A. van Karnebeeklaan 14, AMSTELVEEN

Kan ik dit huis betalen?

Via deze tool bereken je het binnen 1 minuut!

Wil je het 100% zeker weten? Vraag dan een adviesgesprek aan met een financieel adviseur. Klik hier.

Plan een bezichtiging

"*" geeft vereiste velden aan

Dit veld is verborgen bij het bekijken van het formulier
Het vestigingsnummer van het huidige object
Dit veld is verborgen bij het bekijken van het formulier
De url van object/woning
Dit veld is verborgen bij het bekijken van het formulier
De titel van object/woning
Dit veld is verborgen bij het bekijken van het formulier