Javaplein 13-3, Amsterdam

kamers 2 · 63 m2

nl

*** ENGLISH BELOW ***

Javaplein 13-3 Amsterdam

GEMODERNISEERD APPARTEMENT MET UITBREIDINGSMOGELIJKHEDEN IN DE GEWILDE INDISCHE BUURT

Dit zonnige appartement (1913) is gelegen op de 3e etage van het complex en is door haar praktische indeling van alle gemakken voorzien: een royale en zonnige woonkamer met open keuken, een moderne badkamer en een ruime slaapkamer op een aparte bovenverdieping. Bovendien beschikt de woning over 2 eigen balkons en is het geheel recent gerenoveerd. Je kunt er dus zo in! Voor wie graag een extra slaapkamer wil, zijn er zeker uitbreidingsmogelijkheden, evenals voor het creƫren van een dakterras.

Je woont hier in de gewilde Indische buurt, welke zich in de afgelopen jaren ontpopt heeft tot hippe en multiculturele stadswijk met enorm veel leuke winkels, eetgelegenheden en voorzieningen! De woning biedt uitzicht op het bruisende Javaplein en het Badhuis.

Zo’n verzorgde plek op zo’n toffe locatie… Je zal maar de gelukkige bewoner zijn van dit fijne stekje… Ga jij diegene binnenkort worden?

Over de ligging en de buurt:
Dit appartement bevindt zich in de gewilde Indische buurt, stadsdeel Oost. De afgelopen jaren is de Indische buurt sterk in populariteit gegroeid, wat goed te merken is aan de vele leuke winkels en eetgelegenheden die zich hier aan de lopende band vestigen.
Op loopafstand vind je onder andere alle winkels en voorzieningen aan de Javastraat, maar ook de beroemde Dappermarkt en het nieuwe winkelgebied Oostpoort. Er zijn maar liefst drie parken in de directe omgeving: het Flevopark, het Oosterpark en Park Frankendael. Je woont hier vlakbij het Science Park en ook dierenpark Artis en de Hortus Botanicus bevinden zich op loop-/korte fietsafstand. Fiets je nog even verder, dan sta je al in een klein kwartier in hartje centrum.

De woning is uitstekend bereikbaar met het openbaar vervoer. Op 4 minuten fietsafstand vind je het station Muiderpoort en op loopafstand zijn er verschillende tram- en buslijnen. Door de handige ligging, ben je ook binnen no time op de Ringweg A10.

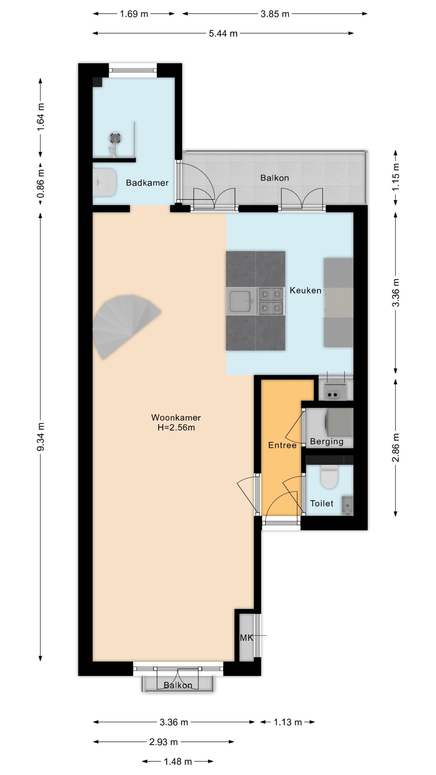
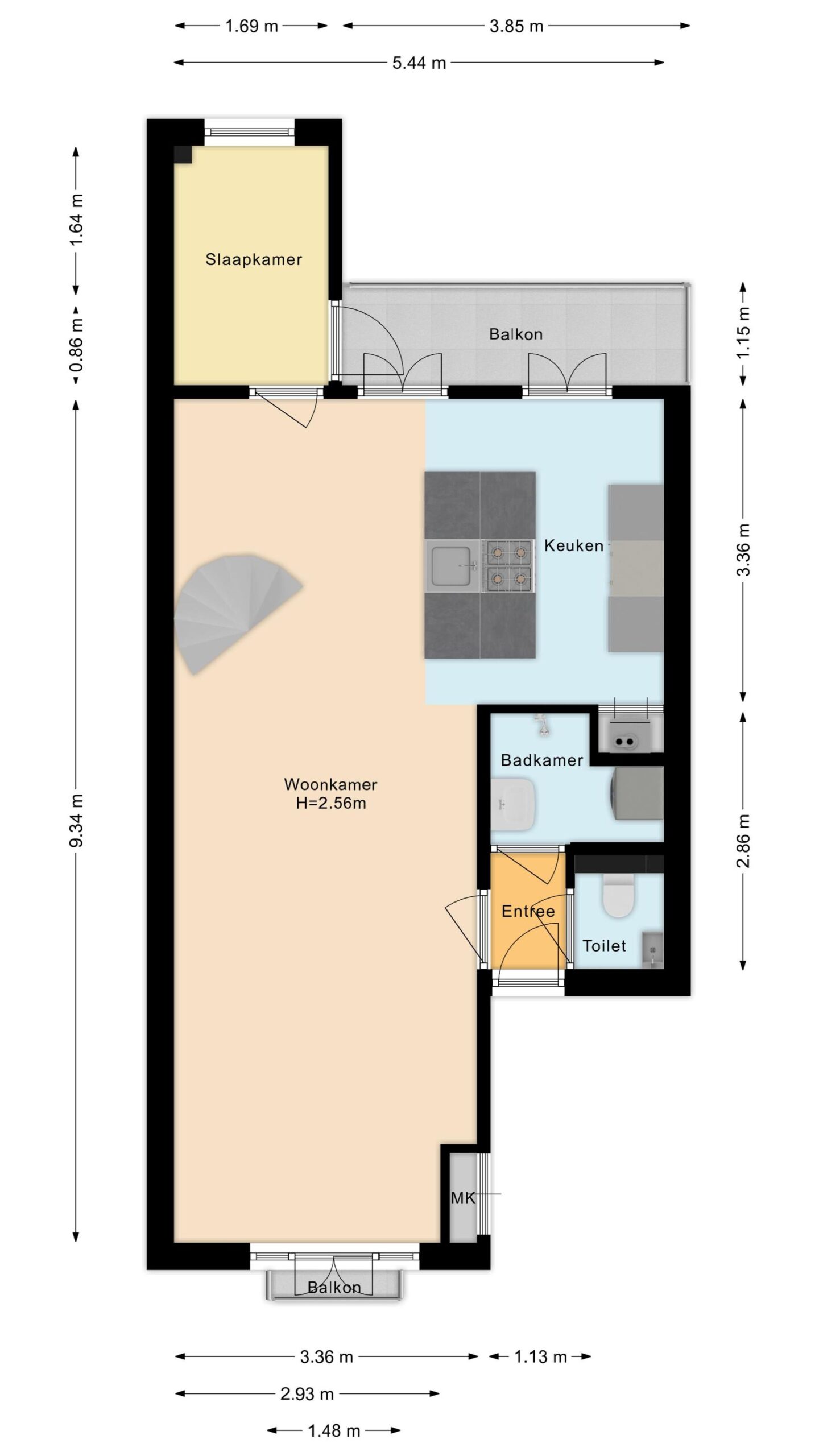
INDELING
Begane grond:
Gesloten entree met bel/intercom en trappenhuis.

Appartement op de 3e etage:
Achter de voordeur vinden we de entreehal met het toilet met fonteintje, het washok en toegang tot de woonkamer met open leefkeuken.

De open-plan indeling van de huiskamer zorgt voor een fijn en ruimtelijk gevoel en de grote ramen zorgen voor een prettige hoeveelheid lichtinval. Aan beide zijden van de ruimte zitten openslaande deuren naar een balkon – aan de achterzijde zijn dit zelfs 2 sets openslaande deuren!

De moderne keuken met kookeiland is voorzien van complete inbouwapparatuur: een gasfornuis, oven, magnetron, koelkast en een vaatwasser.

De moderne badkamer is voorzien van een wastafel en een inloopregendouche.

Er is sprake van een nette afwerking met een laminaatvloer en inbouwspots.

Eerste verdieping:
Via een wenteltrap in de woonkamer is er toegang tot de ruime slaapkamer die wederom heerlijk licht, ruim en netjes is afgewerkt met een laminaatvloer.

Parkeren:
Het is betaald parkeren rond het huis en er is een parkeervergunningensysteem van toepassing.

Kenmerken van de woning:
- 2-kamerappartement op een fantastische locatie in de Indische buurt
- Fijne indeling met veel ruimte en natuurlijke lichtinval
- Grote open leefkeuken met kookeiland
- 2 balkons + mogelijkheid voor creƫren dakterras
- 1 slaapkamer op aparte bovenverdieping (extra slaapkamer realiseren is mogelijk)
- Centrale ligging met een bereikbaarheid met zowel de auto als het openbaar vervoer
- Energielabel: D
- Gelegen op EIGEN GROND, GEEN ERFPACHT!
- In de koopakte worden de volgende clausules opgenomen: Metrage, bepaling inzake verontreiniging, onderzoeksplicht
koper, ouderdomsclausule, asbestclausule en een niet-zelfbewoningsclausule.

***

Javaplein 13-3 Amsterdam

MODERNISED APARTMENT WITH EXTENSION POSSIBILITIES IN THE POPULAR INDISCHE BUURT

This sunny apartment (1913) is located on the 3rd floor of the complex and, thanks to its practical layout, is equipped with all conveniences and comfort: a spacious and sunny living room with an open kitchen, a modern bathroom and a spacious bedroom on a separate upper floor. Moreover, the house has 2 balconies and has the fully renovated recently. This means you can move in immediately!

Here, you live in the sought-after Indische buurt neighbourhood, which has emerged in recent years as a hip city district with lots of nice shops, eateries and amenities! The house offers views of the bustling Javaplein and ā€˜het Badhuis’.

Such a well-kept property in such an amazing location... Just to be the lucky owner of this amazing spot... Will you be this person soon?

About the location and the neighbourhood:
This apartment is located in the popular ā€œIndische buurtā€ neighbourhood, in district East. In recent years, the Indische buurt has grown considerably in popularity, which is noticeable by the many nice shops and eateries that are established here all the time.
Within walking distance, you will find the shops and facilities along the Javastraat, the famous Dappermarkt and the new Oostpoort shopping area. There are no less than three parks in the immediate vicinity: the Flevopark, the Oosterpark and Park Frankendael. Here, you live close to the Science Park, as well within walking/short cycling distance of the Artis Zoo and the Hortus Botanicus. And if you cycle a little further, you can be in the heart of the city centre in just under 15 minutes.

The house is easily accessible by public transport. Muiderpoort station and various tram and bus lines are within walking distance. Due to its convenient location, you are also within no time on the A10 motorway.

LAYOUT
Ground floor:
Closed entrance with bell/intercom and staircase.

Apartment on the 3rd floor:
Behind the front door, we find the entrance hall with a toilet and washbasin, the laundry room, and access to the living room with an open-plan kitchen.

The open-plan layout of the living room creates a pleasant and spacious feeling, and the large windows provide a pleasant amount of natural light. On both sides of the room, there are patio doors leading to a balcony – at the rear, there are even two sets of patio doors!

The modern kitchen with cooking island is equipped with complete built-in appliances: a gas stove, oven, microwave, fridge, and a dishwasher.

The modern bathroom has a washbasin and a walk-in rain shower.

The finish is neat, with a laminate floor and recessed spotlights.
First floor:
A spiral staircase in the living room provides access to the spacious bedroom, which is again wonderfully light, spacious and neatly finished with a laminate floor.

Parking:
It is paid parking around the house and a parking permit system applies.

Property features:
- 2-room apartment on a fantastic location in the Indische buurt
- Great lay-out with lots of natural light
- 2 balconies + the possibility to create a roof terrace
- 1 bedroom on a separate upper floor (realising an extra bedroom is possible)
- Central location with a really good accessibility by both car and public transport
- Energy label: D
- Situated on freehold land (no leasehold)
- The deed of sale will include the following clauses: measurement clause, contamination clause, buyer's duty to investigate, age clause, asbestos clause, and a non-occupancy clause.

Kenmerken

Overdracht

  • StatusBeschikbaar
  • KoopprijsVraagprijs € 500.000,- k.k.

Bouwvorm

  • Soort objectAppartement
  • Bouwjaar1913
  • BouwvormBestaande bouw

Indeling

  • Woonoppervlakte63 m2
  • Inhoud209 m3
  • Aantal kamers2
  • Aantal slaapkamers2
  • Aantal badkamers1
  • Aantal woonlagen2

Energie

  • EnergieklasseD
  • VerwarmingCV ketel
  • C.V.-KetelRemeha Avanta
  • Bouwjaar C.V.-Ketel2017
  • WarmwaterCV ketel
  • CombiketelJa
  • BrandstofGas
  • EigendomEigendom

Buitenruimte

  • TuinGeen tuin
  • AchteromNee

Bergruimte

  • Totaal aantal1

Parkeergelegenheid

  • Parkeer faciliteitenBetaald parkeren, Parkeervergunningen
  • GarageGeen garage

Dak

  • Soort dakPlat dak
  • Materiaal dakBitumineuze Dakbedekking

Overig

  • Permanente bewoningJa
  • Onderhoud binnenGoed
  • Onderhoud buitenGoed
  • Huidig gebruikWoonruimte
  • Huidige bestemmingWoonruimte

Video Javaplein 13-3

Kan ik dit huis betalen?

Via deze tool bereken je het binnen 1 minuut!

Wil je het 100% zeker weten? Vraag dan een adviesgesprek aan met een financieel adviseur. Klik hier.

Hier staat jouw droomwoning

Plan een bezichtiging

"*" geeft vereiste velden aan

Dit veld is verborgen bij het bekijken van het formulier
Het vestigingsnummer van het huidige object
Dit veld is verborgen bij het bekijken van het formulier
De url van object/woning
Dit veld is verborgen bij het bekijken van het formulier
De titel van object/woning
Dit veld is verborgen bij het bekijken van het formulier