Prins Hendrikkade 126A, Amsterdam

kamers 2 · 63 m2

nl

*English below*

Wonen met uitzicht over het hart van Amsterdam!

Aan de Prins Hendrikkade 126A ligt dit charmante en lichte twee kamer-appartement van circa 65 m², gelegen op de eerste verdieping van een karakteristiek pand uit 1879. De woning is gerenoveerd en combineert authentieke details met een moderne en luxe afwerking. Een plek waar historie, comfort en stadse levendigheid samenkomen, met een fantastisch uitzicht over het bruisende hart van Amsterdam.

Bent u benieuwd naar deze woning? Neem contact met ons op voor een bezichtiging.

De plafonds van meer dan drie meter hoog en grote ramen laten veel daglicht binnen, wat het appartement een open en ruimtelijk karakter geeft. De lichte woonkamer biedt volop ruimte voor een comfortabele zithoek en een gezellige eethoek. Het zitje in de vensterbank is dƩ plek om te genieten van het levendige uitzicht over de kade en het water, terwijl de stad zich onder je ontvouwt. De mooie visgraatvloer geeft de ruimte extra allure en een klassiek Amsterdams karakter.

Over de ligging en de buurt:
De ligging van dit appartement is simpelweg ideaal. Direct tegenover het Centraal Station heb je alle vormen van openbaar vervoer binnen handbereik. Met de auto ben je snel de stad uit via de nabijgelegen IJtunnel. De Openbare Bibliotheek Amsterdam ligt aan de overkant. Voor de muziekliefhebbers is er op loopafstand het Bimhuis en Muziekgebouw aan ’t IJ. Ook de gezellige Nieuwmarkt, het bruisende centrum en talloze cafĆ©s, winkels en restaurants zijn binnen enkele minuten lopen te bereiken.
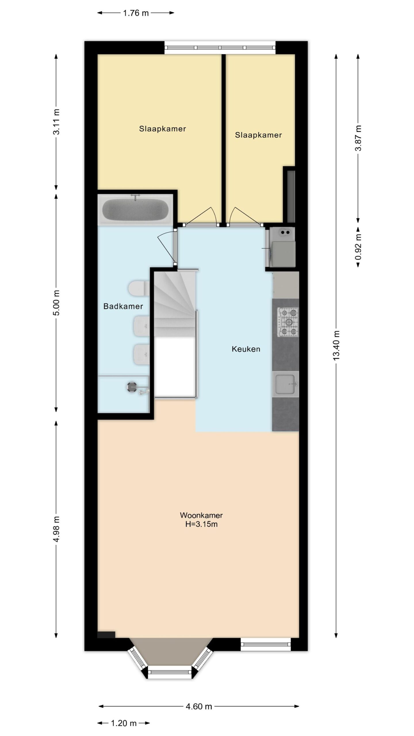
Aan de achterzijde bevindt zich de slaapkamer, een rustige plek die privacy en comfort biedt. De luxe badkamer is stijlvol afgewerkt en voorzien van een moderne inloopregendouche, dubbele wastafel en toilet.

Indeling:
Binnenkomst is op de eerste verdieping van een karakteristiek pand uit 1879, waar het historische karakter en het comfort van nu hand in hand gaan. Zodra je de woonkamer binnenstapt, valt het licht rijkelijk naar binnen door de grote ramen aan de voorzijde. Vanaf de vensterbank kijk je uit over de levendige kade en het water. Een uitzicht dat nooit verveelt!

De woonkamer heeft een warme, uitnodigende uitstraling dankzij de mooie visgraatvloer en de hoge plafonds die zorgen voor een gevoel van ruimte.

Achterin het appartement bevindt zich de slaapkamer, een rustige plek die voldoende ruimte biedt voor een tweepersoonsbed en kastruimte. De aangrenzende badkamer is modern en luxe uitgevoerd, met een inloopdouche, wastafelmeubel en toilet.

Het appartement beschikt over een energielabel C. De verwarming is individueel geregeld middels een CV-ketel, en de woning maakt deel uit van een kleinschalig, goed onderhouden gebouw met een authentieke uitstraling.

Parkeren:
Het is betaald parkeren rond de woning en er is een parkeervergunningensysteem van toepassing.

Kenmerken van de woning
• Lichte en sfeervolle woning met hoge plafonds (3.15m)
• Authentieke visgraatvloer
• Gunstige ligging ten opzichte van openbaar vervoer en uitvalswegen
• Uitzicht over de stad en het water
• Gebouwd in 1879, gesplitst in 1999
• Funderingsherstel 2009
• Eigen grond (geen erfpacht!)
• Energielabel: C
• Servicekosten: € 240,96 per maand
• Mogelijkheid tot het creĆ«ren van 2 slaapkamers
• Gezonde VvE
• Beschermd stadsgezicht
• Gemeentelijk monument, monumentnummer: 1005812700
• Oplevering in overleg
• In de koopakte worden de volgende clausules opgenomen: Metrage, bepaling inzake verontreiniging, onderzoeksplicht koper, ouderdomsclausule, asbestclausule en een niet-zelfbewoningsclausule.

----

Living with a view over the heart of Amsterdam!

At Prins Hendrikkade 126A, you’ll find this charming and bright one-bedroom apartment of approximately 65 m², situated on the first floor of a characteristic building dating back to 1879. The home has been renovated and beautifully combines authentic details with a modern and luxurious finish. It’s a place where history, comfort, and city life come together — offering a fantastic view over the vibrant heart of Amsterdam.

Curious to see more? Contact us today to schedule a viewing.

The ceilings of over three meters high and large windows allow plenty of natural light to flood in, giving the apartment an open and spacious feel. The bright living room offers ample space for both a comfortable sitting area and a cozy dining area. The window seat is the perfect spot to enjoy the lively view of the quay and the water, while the city unfolds below you. The elegant herringbone floor adds a touch of sophistication and classic Amsterdam charm.

The location of this apartment is simply ideal. Situated directly opposite Central Station, you have all modes of public transport right at your doorstep. By car, you can easily leave the city via the nearby IJ Tunnel. The Amsterdam Public Library is just across the street, while the Bimhuis and Muziekgebouw aan ’t IJ are within walking distance for music lovers. The lively Nieuwmarkt, the bustling city center, and countless cafĆ©s, shops, and restaurants are all just a few minutes away on foot.

At the rear of the apartment is the bedroom — a quiet and private retreat that offers comfort and relaxation. The luxurious bathroom is stylishly finished and features a modern walk-in rain shower, double washbasin, and toilet.

Entry is on the first floor of a characteristic 19th-century building, where historical charm meets contemporary comfort. Upon entering the living room, the large front-facing windows immediately draw in abundant light. From the window seat, you can enjoy the vibrant view of the quay and the water — a view that never gets old!

The living room has a warm and inviting atmosphere, accentuated by the elegant herringbone floor and high ceilings that create a wonderful sense of space.

At the back of the apartment, you’ll find the bedroom, which comfortably fits a double bed and wardrobe. The adjoining bathroom is modern and finished to a high standard, featuring a walk-in shower, vanity, and toilet.

The apartment has an energy label C. Heating is individually regulated via a central heating boiler, and the property is part of a small-scale, well-maintained building with authentic character.

Paid parking applies in the area, and a parking permit system is in place.

Property features:
• Bright and atmospheric home with high ceilings (3.15m)
• Authentic herringbone wooden floor
• Excellent location for public transport and road access
• Stunning view over the city and the water
• Built in 1879, division was done in 1999
• Foundation repaired in 2009
• Full ownership (no leasehold!)
• Energy label: C
• Service costs: € 240,96 per month
• Option to create a second bedroom
• Financially healthy homeowners’ association (VvE)
• Delivery in consultation
• Nationally protected conservation area
• Municipal monument, monument number: 1005812700
• The purchase agreement will include the following clauses: Measurement clause, contamination clause, buyer’s duty to investigate, age clause, asbestos clause, and non-owner-occupancy clause.

Kenmerken

Overdracht

  • StatusBeschikbaar
  • KoopprijsVraagprijs € 550.000,- k.k.

Bouwvorm

  • Soort objectAppartement
  • Bouwjaar1879
  • BouwvormBestaande bouw
  • LiggingenAan drukke weg, In centrum, Aan vaarwater

Indeling

  • Woonoppervlakte63 m2
  • Inhoud261 m3
  • Aantal kamers2
  • Aantal slaapkamers2
  • Aantal badkamers1
  • Aantal woonlagen1

Energie

  • EnergieklasseC
  • VerwarmingCV ketel
  • WarmwaterCV ketel
  • IsolatieVoorzetramen
  • CombiketelJa
  • BrandstofGas
  • EigendomEigendom

Buitenruimte

  • TuinGeen tuin
  • AchteromNee

Parkeergelegenheid

  • Parkeer faciliteitenOpenbaar parkeren, Betaald parkeren, Parkeervergunningen
  • GarageGeen garage

Dak

  • Soort dakPlat dak
  • Materiaal dakBitumineuze Dakbedekking

Overig

  • Permanente bewoningJa
  • Onderhoud binnenGoed
  • Onderhoud buitenGoed
  • Huidig gebruikWoonruimte
  • Huidige bestemmingWoonruimte

Kan ik dit huis betalen?

Via deze tool bereken je het binnen 1 minuut!

Wil je het 100% zeker weten? Vraag dan een adviesgesprek aan met een financieel adviseur. Klik hier.

Hier staat jouw droomwoning

Plan een bezichtiging

"*" geeft vereiste velden aan

Dit veld is verborgen bij het bekijken van het formulier
Het vestigingsnummer van het huidige object
Dit veld is verborgen bij het bekijken van het formulier
De url van object/woning
Dit veld is verborgen bij het bekijken van het formulier
De titel van object/woning
Dit veld is verborgen bij het bekijken van het formulier