Biestarwe 33, Anna Paulowna

kamers 5 · 142 m2

nl

MODERNE INSTAPKLARE 2-ONDER-1-KAPWONING MET GARAGE EN 4 SLAAPKAMERS!

** ENGLISH TEXT BELOW **

Deze moderne twee-onder-een-kapwoning uit 2018 heeft precies die uitstraling waar veel mensen naar op zoek zijn: strak afgewerkt, goed onderhouden en helemaal klaar voor de volgende bewoners. Met 142 m² woonoppervlakte, een perceel van 276 m², een eigen garage en een oprit met ruimte voor 2 auto's staat hier een huis dat niet alleen veel leefruimte biedt, maar ook op praktisch vlak sterk in elkaar zit.

De afwerking van de woning is eigentijds, de ruimtes zijn prettig van formaat en de indeling is logisch opgezet. Op de begane grond zorgt de lange leefruimte voor een open en rustige basis, terwijl boven meerdere slaapkamers en een moderne badkamer aanwezig zijn. De tweede verdieping voegt daar nog een volwaardige extra kamer en bergruimte aan toe.

Ook buiten is het prettig wonen. De achtertuin is netjes aangelegd en biedt voldoende plek om te zitten, spelen of buiten te eten. Daarmee is dit een woning die op meerdere fronten veel te bieden heeft, in een jonge en verzorgde woonomgeving.

Begane grond
Via de entree kom je binnen in de hal met de meterkast, trapopgang en het moderne toilet met wandcloset en fonteintje.

De woonkamer ligt aan de voorzijde van de woning en is ruim opgezet. Dankzij de grote raampartijen en de lange zichtlijn richting de achterzijde voelt de ruimte open en licht aan. Er is genoeg plek voor een royale zithoek en een eettafel past mooi bij de keuken.

Aan de tuinzijde bevindt zich de royale leefkeuken. Deze is modern uitgevoerd en voorzien van een spoeleiland met ontbijtbar. Daarnaast is de keuken uitgerust met veel werk- en kastruimte en diverse apparatuur (breed gasfornuis, afzuigkap, combi-oven, vaatwasser, koel-/vriescombinatie en Quooker). Vanuit de keuken is er toegang tot de achtertuin Ʃn tot de garage.

Eerste verdieping
De overloop geeft toegang tot drie slaapkamers en de badkamer. De slaapkamers zijn stuk voor stuk netjes afgewerkt. De grootste slaapkamer ligt aan de achterzijde, de andere twee kamers bevinden zich aan de voorzijde van de woning. De badkamer is modern uitgevoerd en compleet ingericht met een ligbad, aparte douche, wastafelmeubel met verlichte spiegel, hangkast en wandcloset.

oprit voor 2 auto's

Tweede verdieping
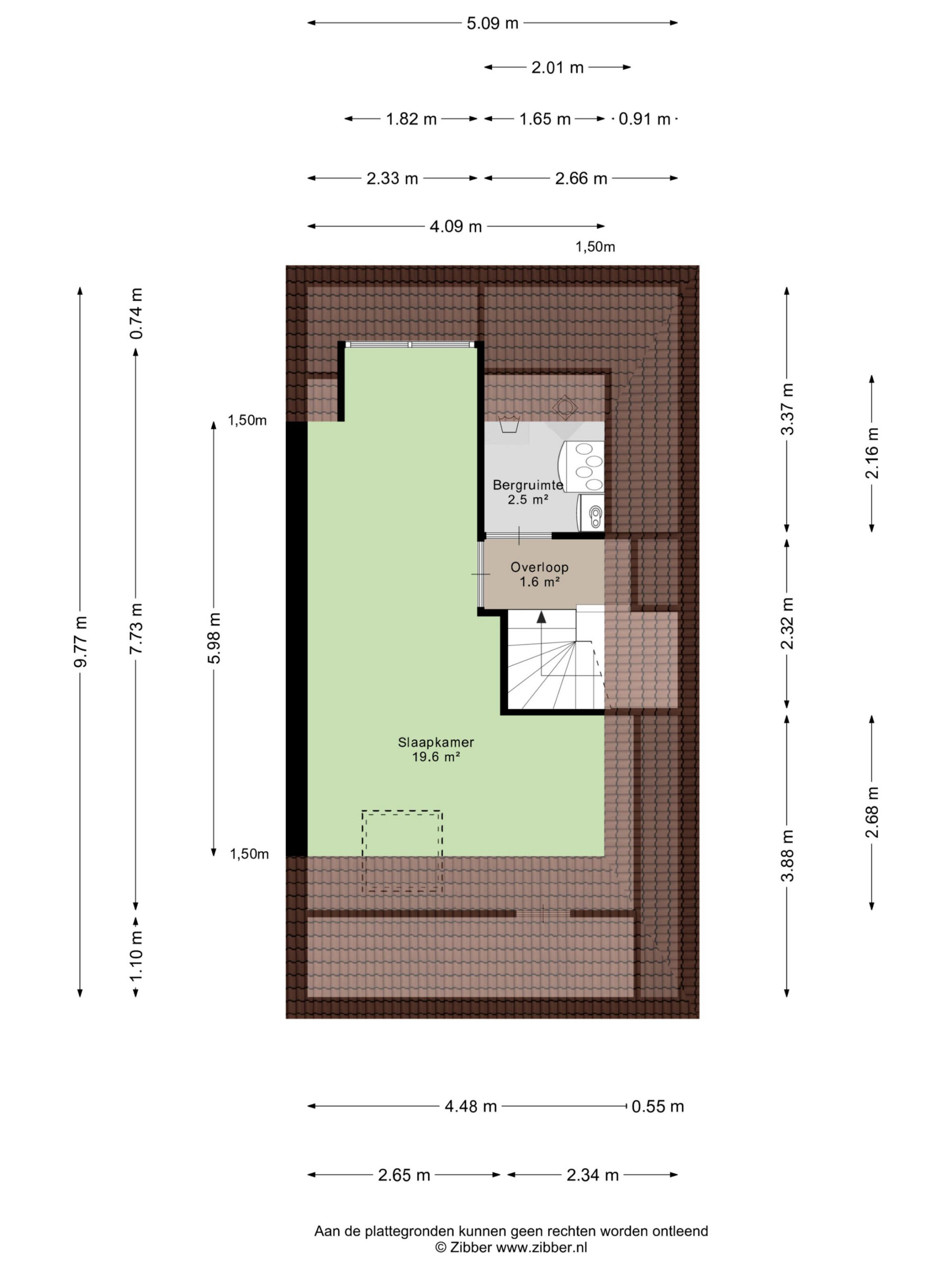
De tweede verdieping verrast met een royale vierde slaapkamer. Deze verdieping is daardoor niet alleen geschikt als slaapverdieping, maar ook prima te gebruiken als werk-, hobby- of studieruimte. Aan de overloop grenst een bergruimte ten behoeve van de mechanische installaties en de witgoedaansluitingen.

Buiten/parkeren
De woning staat op een perceel van 276 m² en beschikt over een verzorgde achtertuin met gazon, borders en meerdere terrassen. Er is voldoende ruimte om een grote eettafel buiten te plaatsen en ook kinderen hebben hier alle ruimte om te spelen.

Aan de voorzijde beschik je over een eigen oprit met ruimte voor 2 auto's. De aangebouwde garage is zowel vanaf de oprit als vanuit de achtertuin en de keuken bereikbaar, wat zorgt voor extra gebruiksgemak.

Buurt
De woning ligt in een jonge en verzorgde woonwijk in Anna Paulowna. Het is een fijne omgeving met veel gezinswoningen, brede straten en een rustige uitstraling. Voor dagelijkse voorzieningen zoals supermarkten, winkels, scholen en sportverenigingen kun je goed terecht in het dorp zelf.

Ook de bereikbaarheid is prettig. Het NS-station van Anna Paulowna is goed bereikbaar en met de auto zijn omliggende plaatsen als Schagen, Den Helder en Alkmaar eenvoudig aan te rijden. Daarnaast woon je hier op korte afstand van het open landschap van de Kop van Noord-Holland, met volop mogelijkheden om te fietsen en wandelen.

Kenmerken
• Twee-onder-een-kapwoning
• Moderne afwerking
• Instapklaar
• Uitstekend onderhouden
• Open keuken met spoeleiland
• 4 slaapkamers
• Moderne badkamer
• Aangebouwde garage
• 11 Zonnepanelen
• Verzorgde achtertuin met meerdere terrassen

Afsluiting
Ben je op zoek naar een jonge, ruime en uitstekend onderhouden woning met garage, oprit en vier slaapkamers? Dan is Biestarwe 33 een huis dat je zeker van binnen wilt bekijken. Neem contact op met VLIEG Makelaars voor een bezichtiging.

** ENGLISH TEXT **

MODERN MOVE-IN READY SEMI-DETACHED HOME WITH GARAGE AND 4 BEDROOMS!

This modern semi-detached home from 2018 has exactly the look many people are searching for: sleekly finished, well maintained, and completely ready for its next residents. With 142 m² of living space, a 276 m² plot, a private garage, and a driveway with room for 2 cars, this home offers not only plenty of living space but also strong practical features.

The finishing is contemporary, the rooms are well-sized, and the layout is logically designed. On the ground floor, the elongated living area creates an open and calm atmosphere, while upstairs you will find several bedrooms and a modern bathroom. The second floor adds a full extra room and storage space.

Outdoor living is just as pleasant. The backyard is neatly landscaped and offers plenty of space to sit, play, or dine outside. Altogether, this home offers a lot in multiple aspects, located in a young and well-maintained residential area.

Ground floor
Through the entrance, you enter the hallway with the meter cupboard, staircase, and modern toilet with wall-mounted closet and sink.

The living room is located at the front of the house and is spacious. Thanks to large windows and a long sightline towards the back, the space feels open and bright. There is ample room for a large seating area, and a dining table fits perfectly near the kitchen.

At the garden side, you will find the generous open-plan kitchen. It features a modern design with a cooking island and breakfast bar. The kitchen offers plenty of workspace and storage, and is equipped with various appliances (wide gas stove, extractor hood, combi oven, dishwasher, fridge/freezer combination, and Quooker). From the kitchen, there is access to both the backyard and the garage.

First floor
The landing provides access to three bedrooms and the bathroom. All bedrooms are neatly finished. The largest bedroom is located at the rear, while the other two are at the front. The bathroom is modern and fully equipped with a bathtub, separate shower, vanity unit with illuminated mirror, wall cabinet, and wall-mounted toilet.

Second floor
The second floor features a spacious fourth bedroom. This floor is therefore suitable not only as a bedroom but also as a workspace, hobby room, or study. Adjacent to the landing is a storage room for mechanical installations and laundry connections.

Outdoor area / parking
The house is situated on a 276 m² plot and has a well-maintained backyard with lawn, borders, and multiple terraces. There is enough space for a large outdoor dining table, and children have plenty of room to play.
At the front, you have your own driveway with room for 2 cars. The attached garage is accessible from the driveway, the backyard, and the kitchen, providing extra convenience.

Neighborhood
The property is located in a young and well-maintained residential area in Anna Paulowna. It is a pleasant environment with many family homes, wide streets, and a calm atmosphere. Daily amenities such as supermarkets, shops, schools, and sports facilities are easily accessible within the village.

Accessibility is also excellent. The Anna Paulowna train station is easy to reach, and nearby towns such as Schagen, Den Helder, and Alkmaar are easily accessible by car. Additionally, you live close to the open landscape of the northern part of North Holland, offering plenty of opportunities for cycling and walking.

Features
• Semi-detached house
• Modern finish
• Move-in ready
• Excellent maintenance
• Open kitchen with island
• 4 bedrooms
• Modern bathroom
• Attached garage
• 11 Solar panels
• Well-maintained backyard with multiple terraces

Conclusion
Are you looking for a modern, spacious, and excellently maintained home with a garage, driveway, and four bedrooms? Then Biestarwe 33 is definitely worth viewing. Contact VLIEG Real Estate Agents to schedule a viewing.

Kenmerken

Overdracht

  • StatusBeschikbaar
  • KoopprijsVraagprijs € 595.000,- k.k.

Bouwvorm

  • Soort objectWoonhuis
  • Soort woningEengezinswoning
  • Type woningTwee onder ƩƩn kapwoning
  • Bouwjaar2018
  • BouwvormBestaande bouw
  • LiggingenAan rustige weg, In woonwijk

Indeling

  • Woonoppervlakte142 m2
  • Perceeloppervlakte276 m2
  • Inhoud559 m3
  • Aantal kamers5
  • Aantal slaapkamers4
  • Aantal badkamers1

Energie

  • EnergieklasseA
  • VerwarmingCV ketel, Vloerverwarming gedeeltelijk
  • C.V.-KetelIntergas Xtreme 36
  • Bouwjaar C.V.-Ketel2018
  • WarmwaterCV ketel
  • IsolatieDakisolatie, Muurisolatie, Vloerisolatie
  • CombiketelJa
  • BrandstofGas
  • EigendomEigendom

Buitenruimte

  • TuinAchtertuin, Voortuin, Zijtuin
  • HoofdtuinAchtertuin
  • Oppervlakte98 m2
  • Ligging hoofdtuinNoordoost
  • AchteromJa
  • Kwaliteit tuinVerzorgd

Parkeergelegenheid

  • Parkeer faciliteitenOp eigen terrein
  • GarageAangebouwd steen
  • Capaciteit1
  • Garages1

Dak

  • Soort dakZadeldak
  • Materiaal dakPannen

Overig

  • Permanente bewoningJa
  • Onderhoud binnenUitstekend
  • Onderhoud buitenUitstekend
  • Huidig gebruikWoonruimte
  • Huidige bestemmingWoonruimte

VLIEG Makelaars: Biestarwe 33, ANNA PAULOWNA

Kan ik dit huis betalen?

Via deze tool bereken je het binnen 1 minuut!

Wil je het 100% zeker weten? Vraag dan een adviesgesprek aan met een financieel adviseur. Klik hier.

Plan een bezichtiging

"*" geeft vereiste velden aan

Dit veld is verborgen bij het bekijken van het formulier
Het vestigingsnummer van het huidige object
Dit veld is verborgen bij het bekijken van het formulier
De url van object/woning
Dit veld is verborgen bij het bekijken van het formulier
De titel van object/woning
Dit veld is verborgen bij het bekijken van het formulier