Karel de Grotelaan 28, Bergen (nh)

kamers 4 · 100 m2

nl

SFEERVOLLE VRIJSTAANDE WONING MET RECREATIEWONING IN HET CENTRUM VAN BERGEN

Aan een rustig en typisch Bergens straatje net buiten de levendige winkelstraten van het centrum, vinden we deze knusse woning met recreatiewoning. De idyllische omgeving van de woning, de prachtige architectuur en de fraaie afwerking binnen maken dat dit een droom is voor de liefhebber van authentiek wonen! Op het eigen perceel staat de vrijstaande recreatiewoning met eigen voorzieningen.

Een wandeling over de oude klinkers van de lommerrijke Karel de Grotelaan brengen ons naar nummer 28. Direct bij aankomst kun je niet ontkennen dat dit een woning is met ontzettend veel karakter en eenmaal binnen word je ook zeker niet teleurgesteld: wat een fijne woning is dit! Authentieke details en modern wooncomfort vormen een gebalanceerde mix waarbij licht en ruimte de boventoon voeren. Zo zien we een hoog balkenplafond, gezellige vensterraampjes, een houten vloer en openslaande deuren naar de tuin. Tevens is er op de benedenetage een slaapkamer met eigen wastafel en douche en suite aanwezig, boven zijn er nog eens 2 slaapkamers, de luxe badkamer en een groot dakterras.

Wie wat meer de reuring wil opzoeken, hoeft niet meer dan enkele passen te lopen. Hoe rustig de straat ook is, zijn we nog altijd in hartje Bergen waarbij zowel de dagelijkse voorzieningen als alle dingen die het leven net wat aangenamer maken op een steenworpafstand te vinden zijn. Buiten het dorp lonken het bos- en duingebied van Bergen, het Bergerbos en natuurlijk het strand bij Bergen aan Zee. Allemaal fijne plekken om te wandelen of fietsen. Je ervaart hier dan ook het hele jaar door een heerlijk vakantiegevoel – en dat op slechts 40 km van Amsterdam!

Over de ligging en de buurt:
Bergen is een levendig dorp met vele restaurants, winkels, supermarkten en speciaalzaken. Er zijn meerdere basisscholen als middelbare scholen in het dorp aanwezig, evenals diverse sportclubs. Met de fiets of bus ben je al binnen 20 minuten in het nabijgelegen Alkmaar met een nog breder aanbod van voorzieningen. En in tegengestelde richting, is het strand bij Bergen aan Zee in dezelfde tijd bereikbaar!

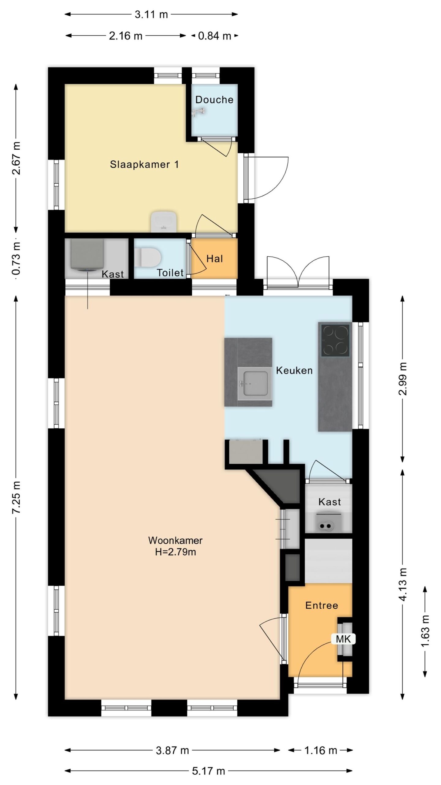
Indeling van de woning:
Hoofdwoning (GBO 70,9 m2):
Begane grond:
Entreehal met de trapopgang naar de eerste verdieping en toegang tot de woonkamer met open keuken. Sfeervolle woonkamer met volop authentieke details. De vele raampartijen langs alle zijden zorgen voor een prettige hoeveelheid lichtinval die, in combinatie met het hoge balkenplafond, voor een prettige en ruimtelijke ambiance zorgt. Het geheel strak afgewerkt en voorzien van een houten vloer. Moderne keuken met spoeleiland/bar aan de tuinzijde van het huis welke is voorzien van een inductiekookplaat, koelkast, oven en een vaatwasser. Openslaande deuren bieden toegang tot de tuin. 1 Slaapkamer met eigen entree, wastafel, doucheruimte en toilet.

Eerste verdieping:
Overloop die toegang biedt tot 2 slaapkamers – beide voorzien van een laminaatvloer – en de keurige badkamer met tweede toilet, wastafel met meubel en een inloopregendouche. 1 van de slaapkamers biedt toegang tot een royaal dakterras met uitzicht over en trap richting de tuin.

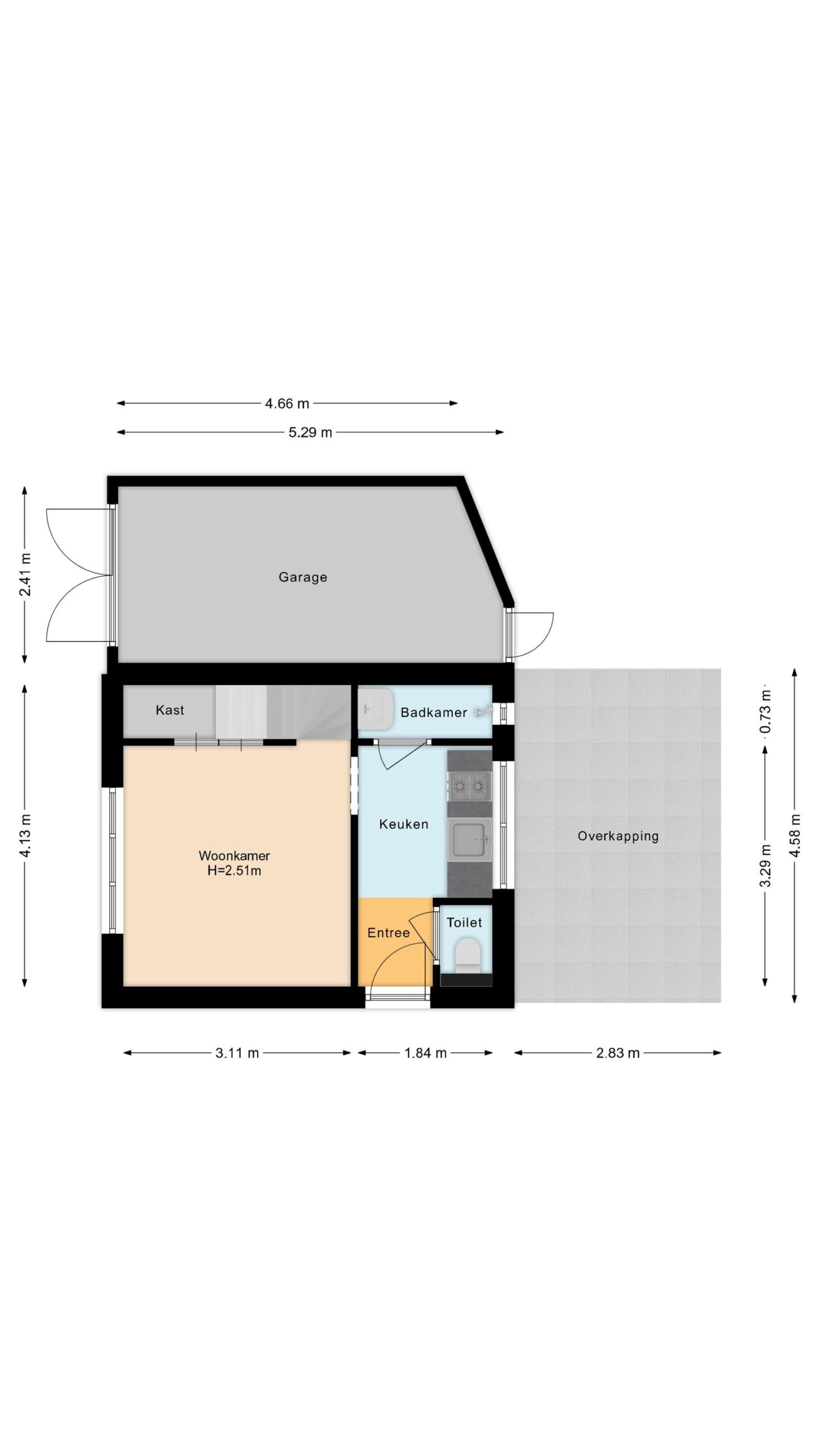
Recreatiewoning (GBO 28.9 m2):
Begane grond:
Entreehal die in een open verbinding staat met de nette keuken. Aan onze rechterhand zit het separate toilet, rechtdoor de badkamer met wastafel en douche en rechts de knusse en gezellige woonkamer. De recreatiewoning mag 365 dagen per jaar recreatief verhuurd worden.

Eerste verdieping:
Fijne slaapkamer met een hoog nokplafond met zichtbare constructiebalken.

Tuin:
De achtertuin is gelegen op het zuiden en is voorzien van een groot betegeld terras waarvan een deel overdekt is en een gezellig verandaterras vormt. Achterin de tuin staat een grote berging welke tevens vanuit de straat toegankelijk is.

Parkeren:
Er is parkeergelegenheid op eigen terrein en rondom de woning.

Kenmerken van de woning:
• Authentieke woning uit 1920 aan een typisch Bergens straatje
• Heel veel lichtinval en een nette afwerking
• Vrijstaande recreatiewoning met zelfstandige voorzieningen en bovenverdieping
• Zonnige tuin op het zuiden met groot overdekt terras + een dakterras
• Ruime berging
• Fantastische ligging aan een rustig straatje in het centrum van Bergen
• Dagelijkse voorzieningen, uitvalswegen, bossen, duinen en het strand zijn nabij
• Energielabel: G
• Parkeren op eigen terrein

Kenmerken

Overdracht

  • StatusBeschikbaar
  • KoopprijsVraagprijs € 785.000,- k.k.

Bouwvorm

  • Soort objectWoonhuis
  • Soort woningEengezinswoning
  • Type woningVrijstaande woning
  • Bouwjaar1920
  • BouwvormBestaande bouw
  • LiggingenAan rustige weg, Beschutte ligging

Indeling

  • Woonoppervlakte100 m2
  • Perceeloppervlakte305 m2
  • Inhoud325 m3
  • Aantal kamers4
  • Aantal slaapkamers3
  • Aantal badkamers1

Energie

  • EnergieklasseG
  • VerwarmingCV ketel
  • C.V.-KetelVaillant
  • Bouwjaar C.V.-Ketel2010
  • WarmwaterCV ketel
  • IsolatieGedeeltelijk dubbelglas
  • CombiketelJa
  • BrandstofGas
  • EigendomEigendom

Buitenruimte

  • TuinAchtertuin, Voortuin, Zijtuin
  • HoofdtuinAchtertuin
  • Oppervlakte24 m2
  • Ligging hoofdtuinZuid
  • AchteromNee
  • Kwaliteit tuinNormaal

Bergruimte

  • Schuur / BergingAangebouwd hout
  • Totaal aantal1

Parkeergelegenheid

  • Parkeer faciliteitenOp eigen terrein
  • GarageGeen garage

Dak

  • Soort dakZadeldak
  • Materiaal dakPannen

Overig

  • Permanente bewoningJa
  • Onderhoud binnenGoed
  • Onderhoud buitenGoed
  • Huidig gebruikWoonruimte
  • Huidige bestemmingWoonruimte

Online video

Kan ik dit huis betalen?

Via deze tool bereken je het binnen 1 minuut!

Wil je het 100% zeker weten? Vraag dan een adviesgesprek aan met een financieel adviseur. Klik hier.

Hier staat jouw droomwoning

Plan een bezichtiging

"*" geeft vereiste velden aan

Dit veld is verborgen bij het bekijken van het formulier
Het vestigingsnummer van het huidige object
Dit veld is verborgen bij het bekijken van het formulier
De url van object/woning
Dit veld is verborgen bij het bekijken van het formulier
De titel van object/woning
Dit veld is verborgen bij het bekijken van het formulier