Teding van Berkhoutstraat 41, Haarlem

kamers 4 · 96 m2

nl

Maak kennis met deze authentieke woning mƩt volop mogelijkheden in de gewilde Cremerbuurt!

Hoe fijn is het om in een huis nabij het centrum van Haarlem te mogen wonen. Deze stadswoning uit bouwjaar 1906 is een ideaal project voor de handige klusser die op zoek is naar een huis dat volledig naar eigen smaak en wens gerenoveerd en afgewerkt kan worden. Het enige wat je niet kunt veranderen – de locatie – is in ieder geval dik in orde! Want wat een heerlijk plekje is dit. In de populaire Cremerbuurt woon je op slechts enkele minuten fietsen van de binnenstad en rijdt je binnen no time de uitvalswegen op.

Ben jij benieuwd geworden?
Kom dan snel langs om deze fijne plek in het echt te beleven!

Over de ligging en de buurt:
Deze tussenwoning (1906) ligt aan de fraaie Teding van Berkhoutstraat, in de populaire Cremerbuurt. De wijk wordt gekenmerkt door een mooie, afwisselende architectuur en een gezellige sfeer. Er zit een supermarkt om de hoek van het huis en ook op het nabijgelegen Van Zeggelenplein, Beatrixplantsoen en in de gezellige Amsterdamstraat kun je terecht voor alle dagelijkse boodschappen. Ook voor de kinderen is dit een heerlijke plek om te wonen: er zijn diverse speeltuinen in de buurt en de dichtstbijzijnde basisschool bevindt zich op slechts enkele minuten lopen. Het historische centrum van Haarlem met zijn vele terrasjes, restaurants en een grote diversiteit aan winkels bevindt zich op nog geen 5 minuten fietsafstand. En als je nog even doorfietst, kun je binnen een halfuur al op het strand van Zandvoort of Bloemendaal staan! Er is een bushalte in de straat en vanaf het hoofdstation Haarlem Centraal (10 minuten fietsafstand) zijn er zeer gunstige treinverbindingen naar onder andere Amsterdam (15 minuten), Schiphol (35 minuten) Leiden
(20 minuten) en Den Haag (35 minuten) . Tevens rijd je met de auto gemakkelijk en snel de A9 op en zijn de uitvalswegen richting Amsterdam, Alkmaar, Utrecht, Leiden en Den Haag vlakbij. Kortom: een gezellige en centrale woonomgeving waarbij vrijwel alles binnen no-time bereikbaar is!

Indeling van de woning:
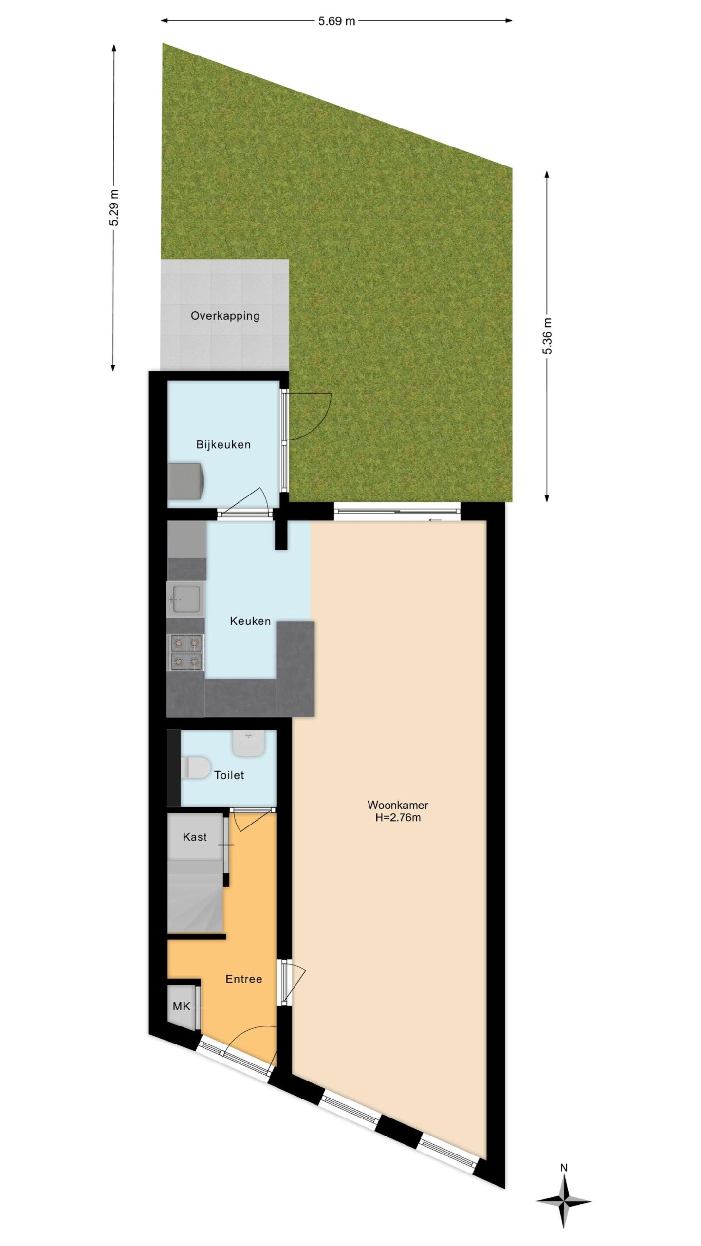
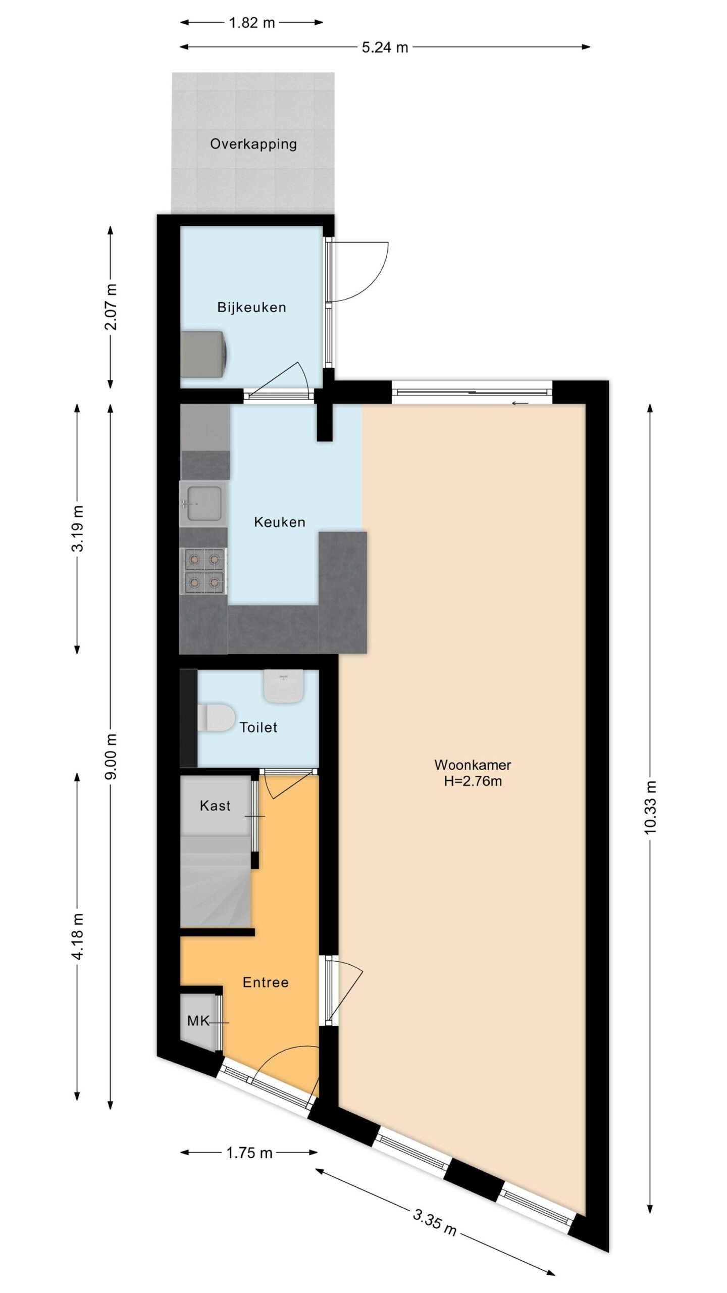
Begane grond:
Achter de voordeur met fraaie glas-in-loodraampjes, vinden we de langwerpige entreehal met garderobe, meterkast, trapopgang naar de eerste verdieping met trapkast, het gastentoilet met fonteintje en de toegang tot de woonkamer met open keuken.

De zonnige doorzonwoonkamer is heerlijk ruim en geniet door de grote raampartijen aan beide zijden van een grote hoeveelheid lichtinval. Middels een schuifpui is er toegang tot de tuin en het geheel is afgewerkt met een tegelvloer met vloerverwarming.

De open keuken is voorzien van een gasfornuis, oven, magnetron, koelkast, vriezer en een vaatwasser. Vanuit de keuken is er toegang tot een handige bijkeuken met aldaar de aansluitingen voor de witgoedopstelling en een achterdeur naar de tuin.

Eerste verdieping:
Vanaf de overloop is er toegang tot 3 slaapkamers en de badkamer. Alle slaapkamers zijn afgewerkt met een parketvloer en 2 slaapkamers hebben ingebouwde kastruimte. De renovatie van de badkamer alsmede de slaapkamers dienen nog afgerond te worden.

Tuin:
De woning beschikt over een knusse achtertuin op het noorden. Door de ligging van de woning heb je in de tuin relatief veel privacy en vrij zicht.

Parkeren:
Er is openbare parkeergelegenheid rond het huis.

Kenmerken van de woning:
• Let op: in de media presentatie zijn drie Artist Impression meegenomen, deze dienen uitsluitend ter illustratie en inspiratie.
• Karakteristieke tussenwoning met veel mogelijkheden
• Voor de handige klusser die op zoek is naar een huis met karakter
• Funderingsherstel uitgevoerd in ca 2000, Funderingsrisico: Geen verhoogd risico
• Zonnige doorzonwoonkamer met open keuken en aparte bijkeuken
• 3 slaapkamers
• Knusse tuin op het noorden met veel privacy
• Centrale ligging in de populaire Cremerbuurt, vlakbij alle dagelijkse voorzieningen, de uitvalswegen en het centrum van Haarlem
• Energielabel C
• Volledige eigendom

Bijzondere clausules:
Ouderdomsclausule alsmede asbestclausule

Kenmerken

Overdracht

  • StatusOnder bod
  • KoopprijsVraagprijs € 450.000,- k.k.

Bouwvorm

  • Soort objectWoonhuis
  • Soort woningEengezinswoning
  • Type woningTussenwoning
  • Bouwjaar1906
  • BouwvormBestaande bouw
  • LiggingenIn woonwijk

Indeling

  • Woonoppervlakte96 m2
  • Perceeloppervlakte88 m2
  • Inhoud342 m3
  • Aantal kamers4
  • Aantal slaapkamers3
  • Aantal badkamers1

Energie

  • EnergieklasseC
  • VerwarmingCV ketel, Vloerverwarming gedeeltelijk
  • C.V.-KetelRemeha Avanta
  • Bouwjaar C.V.-Ketel2005
  • WarmwaterCV ketel
  • IsolatieMuurisolatie, Vloerisolatie, Dubbelglas
  • CombiketelJa
  • BrandstofGas
  • EigendomEigendom

Buitenruimte

  • TuinAchtertuin
  • HoofdtuinAchtertuin
  • Oppervlakte25 m2
  • Ligging hoofdtuinNoord
  • AchteromNee

Parkeergelegenheid

  • Parkeer faciliteitenOpenbaar parkeren
  • GarageGeen garage

Dak

  • Soort dakSamengesteld dak

Overig

  • Permanente bewoningJa
  • Onderhoud binnenMatig
  • Onderhoud buitenMatig
  • Huidig gebruikWoonruimte
  • Huidige bestemmingWoonruimte

VLIEG Makelaars: Teding van Berkhoutstraat 41, HAARLEM

VLIEG Makelaars: Teding van Berkhoutstraat 41, HAARLEM

VLIEG Makelaars: Teding van Berkhoutstraat 41, HAARLEM

Kan ik dit huis betalen?

Via deze tool bereken je het binnen 1 minuut!

Wil je het 100% zeker weten? Vraag dan een adviesgesprek aan met een financieel adviseur. Klik hier.

Hier staat jouw droomwoning

Plan een bezichtiging

"*" geeft vereiste velden aan

Dit veld is verborgen bij het bekijken van het formulier
Het vestigingsnummer van het huidige object
Dit veld is verborgen bij het bekijken van het formulier
De url van object/woning
Dit veld is verborgen bij het bekijken van het formulier
De titel van object/woning
Dit veld is verborgen bij het bekijken van het formulier