NVM Open Huizen Dag

Merelweg 50, Heerhugowaard

kamers 4 · 150 m2

nl

Ruime, energiezuinige levensloopbestendige woning met zonnige tuin en verrassend veel mogelijkheden.

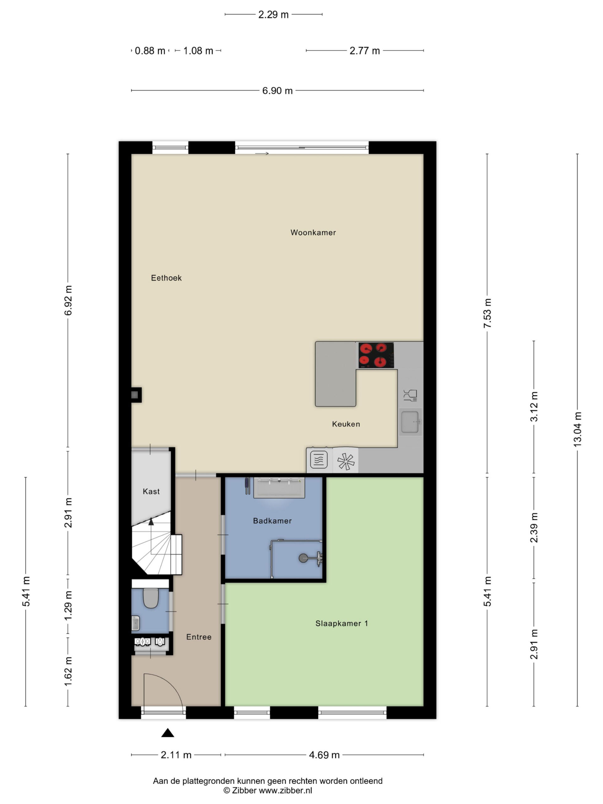
Welkom aan de Merelweg 50 in Heerhugowaard: een zo goed als nieuwe uitgebouwde levensloop bestendige woning uit 2022 met een totale woonoppervlakte van circa 150 m². U woont hier comfortabel, energiezuinig en met volop ruimte, dankzij een lichte woonkamer met luxe open keuken, een badkamer en slaapkamer op de begane grond, twee slaapkamers op de verdieping én een praktische zolder.
De zonnige achtertuin op het oosten met berging en achterom maakt het geheel compleet. Een energiezuinige woning met potentie, flexibiliteit en een fijne, moderne uitstraling.

De woning ligt in de populaire woonwijk ā€œDe Draaiā€ waar u alle dagelijkse voorzieningen binnen handbereik heeft. Scholen, sportclubs en speeltuinen bevinden zich op korte afstand, net als supermarkt, park en winkels. Ook het openbaar vervoer is goed geregeld met een bushalte in de nabijheid en de uitvalswegen richting Alkmaar en Amsterdam zijn snel bereikbaar. Een ideale ligging voor wie rustig wil wonen, maar toch centraal.

Entree
U betreedt de woning aan de straatzijde, waar voldoende parkeergelegenheid aanwezig is. Eenmaal binnen komt u in de hal, die direct een verzorgde indruk maakt. Vanuit hier heeft u toegang tot de woonkamer, de badkamer, een fraaie slaap/werkkamer aan de voorzijde, de toiletruimte en de trap naar de eerste verdieping. Een prettige, centrale ruimte die alle leefvertrekken met elkaar verbindt.

Woonkamer
De woonkamer vormt het hart van de begane grond en is maar liefst 39m2 groot dankzij de beukmaat van 7,20 meter. Grote raampartijen zorgen voor heerlijk veel licht en een fijne sfeer. De woonkamer biedt volop ruimte voor een comfortabele zithoek en een gezellige eethoek. Via de schuifpui loopt u zo de tuin in, waardoor binnen en buiten naadloos in elkaar overlopen. De houtlook tegelvloer geeft de ruimte een warme en moderne uitstraling.

Keuken
De open keuken sluit perfect aan op de woonkamer en is uitgevoerd in een moderne U-opstelling. U beschikt hier over een inductiekookplaat (Bora), spoelbak met Quooker, ingebouwde ovencombinatie, koelkast en vaatwasmachine (Siemens). Het barretje nodigt uit om aan te schuiven voor een kop koffie of een snelle maaltijd. De keuken is in goede staat en van alle gemakken voorzien.

Extra kamer
Aan de voorzijde van de woning bevindt zich een extra kamer die u volledig naar wens kunt gebruiken. Of u nu een thuiswerkplek, studeerkamer, sportruimte of slaapkamer zoekt, deze ruimte past zich moeiteloos aan uw woonwensen aan. De ramen zijn voorzien van 2 screens.

Sanitair
De moderne badkamer op de begane grond grenst aan de hal en is volledig betegeld. U vindt hier een inloopdouche met glazen deur, een dubbele wastafel met spiegel en praktische bergruimte. De afwerking is strak en eigentijds, waardoor u hier direct comfort ervaart.

1e verdieping
Via de vaste trap bereikt u de eerste verdieping. Hier bevinden zich twee slaapkamers, een toilet en een handige berging. Alles is overzichtelijk en praktisch ingedeeld.

Slaapkamers
Beide slaapkamers zijn ruim opgezet en genieten van veel lichtinval. Er is voldoende ruimte voor een comfortabel bed, een kast en eventueel een bureau. Fijne, multifunctionele kamers die u naar eigen smaak kunt inrichten. Beide slaapkamers zijn voorzien van rolluiken en van 2x uitneembare horren in kleur van het raamkozijn. Dankzij de aanwezige dakkapellen zijn het verrassend prettige ruimtes.

Berging
De berging grenst aan de overloop en biedt plaats aan de aansluitingen voor het witgoed. Een praktische ruimte die zorgt voor extra comfort en opgeruimd wonen.

2e verdieping
Via een vlizotrap bereikt u de tweede verdieping. Deze bergzolder beschikt over een goede stahoogte en is ideaal voor opslag.

Buitenruimte
De zonnige achtertuin is bereikbaar vanuit de woonkamer en ligt op het oosten. De tuin is een fijne combinatie van bestrating en groen en biedt volop ruimte voor een terras. De vijver vormt een echte eyecatcher en achterin de tuin staat een houten berging met elektra, ideaal voor fietsen en tuinspullen. Dankzij de achterom en de besloten ligging geniet u hier van veel privacy.

Parkeren
Rondom de woning is voldoende openbare parkeergelegenheid aanwezig, waardoor u en uw bezoekers altijd dichtbij kunnen parkeren.

Bijzonderheden
• Bouwjaar 2022;
• Totale woonoppervlakte circa 149 m²;
• Zo goed als nieuwe woning
• Energielabel A+++
• 8 zonnepanelen, 350Wp;
• Stadverwarming;
• Slaapkamer/werkkamer en badkamer op de begane grond, voorzien van 2 screens;
• De woonkamer en slaapkamers zijn voorzien van een vaste internet aansluiting;
• Twee slaapkamers op de eerste verdieping voorzien van rolluiken;
• Twee dakkapellen;
• Zolderverdieping met goede stahoogte;
• Zonnige tuin op het oosten met veel privacy;
• Achterom aanwezig;
• Houten berging met elektra;
• Waterkraan op de voor- en achtergevel, stroomaansluiting achtertuin, bestrating voor- en achtertuin: keramiek;
• Nabij winkels, supermarkt, sportvoorzieningen en bushalte;
• Goede bereikbaarheid richting Alkmaar en Amsterdam;
• Begane grond voorzien van houtlook tegelvloer, bovenverdieping laminaatvloer.

Weer achter het net gevist? Met je eigen NVM-aankoopmakelaar, maak je meer kans op een woning.
Een NVM-aankoopmakelaar komt op voor Ćŗw belang en bespaart u tijd, geld en zorgen!

Kenmerken

Overdracht

  • StatusBeschikbaar
  • KoopprijsVraagprijs € 600.000,- k.k.

Bouwvorm

  • Soort objectWoonhuis
  • Soort woningBungalow
  • Type woningTussenwoning
  • Bouwjaar2022
  • BouwvormBestaande bouw
  • LiggingenAan park, Aan rustige weg, In woonwijk, Beschutte ligging

Indeling

  • Woonoppervlakte150 m2
  • Perceeloppervlakte172 m2
  • Inhoud580 m3
  • Aantal kamers4
  • Aantal slaapkamers3
  • Aantal badkamers1

Energie

  • EnergieklasseA+++
  • VerwarmingStadsverwarming, Vloerverwarming geheel
  • WarmwaterElektrische boiler eigendom, Stadsverwarming
  • IsolatieVolledig geĆÆsoleerd, Driedubbel glas
  • CombiketelNee

Buitenruimte

  • TuinAchtertuin, Voortuin
  • HoofdtuinAchtertuin
  • Oppervlakte48 m2
  • Ligging hoofdtuinOost
  • AchteromJa
  • Kwaliteit tuinFraai aangelegd

Bergruimte

  • Schuur / BergingVrijstaand hout
  • VoorzieningenVoorzien van elektra
  • IsolatieGeen isolatie
  • Totaal aantal1

Parkeergelegenheid

  • Parkeer faciliteitenOpenbaar parkeren
  • GarageGeen garage

Dak

  • Soort dakZadeldak
  • Materiaal dakPannen

Overig

  • Permanente bewoningJa
  • Onderhoud binnenGoed tot uitstekend
  • Onderhoud buitenGoed tot uitstekend
  • Huidig gebruikWoonruimte
  • Huidige bestemmingWoonruimte

Merelweg 50 Heerhugowaard

Kan ik dit huis betalen?

Via deze tool bereken je het binnen 1 minuut!

Wil je het 100% zeker weten? Vraag dan een adviesgesprek aan met een financieel adviseur. Klik hier.

Hier staat jouw droomwoning

Plan een bezichtiging

"*" geeft vereiste velden aan

Dit veld is verborgen bij het bekijken van het formulier
Het vestigingsnummer van het huidige object
Dit veld is verborgen bij het bekijken van het formulier
De url van object/woning
Dit veld is verborgen bij het bekijken van het formulier
De titel van object/woning
Dit veld is verborgen bij het bekijken van het formulier