Vliet 51, Heerhugowaard

kamers 4 · 112 m2

nl

Bent u op zoek naar een ruime gezinswoning met volop mogelijkheden op een rustige en centrale locatie? Dan is Vliet 51 in Heerhugowaard precies wat u zoekt. Met een totale woonoppervlakte van 111m2, drie ruime slaapkamers, een lichte woonkamer met open keuken en een diepe achtertuin van 16,5 meter op het noordwesten, biedt deze woning alles wat u nodig heeft. De woning beschikt over een vergrote hal, een stenen berging aan de voorzijde van 14m2 en een ruime houten berging van 13 m2 achterin de tuin. Hier kunt u dus comfortabel wonen, met alle voorzieningen binnen handbereik.

Indeling:
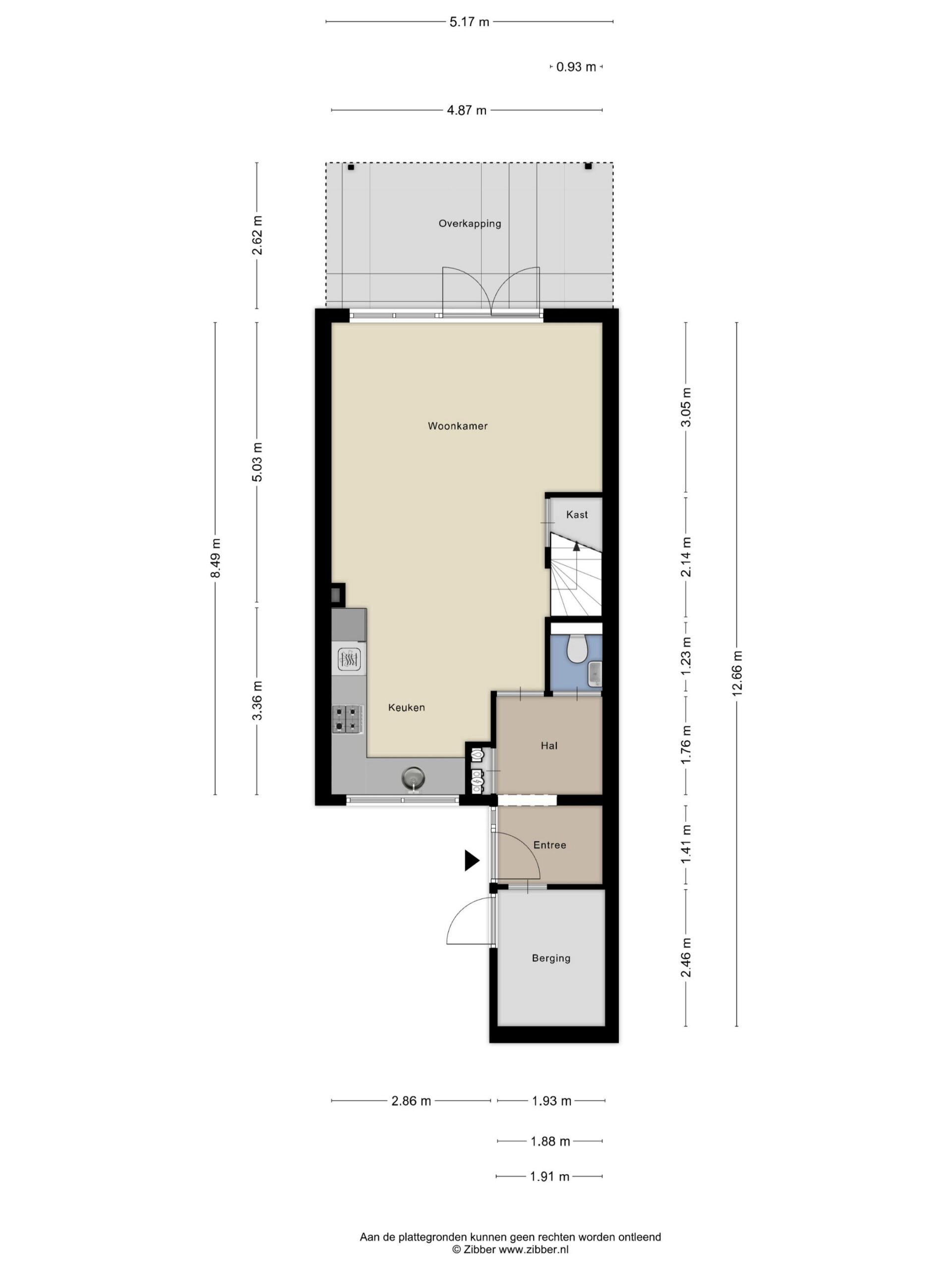
Via de voortuin bereikt u de entree van de woning, waar zich tevens de berging bevindt. Eenmaal binnen komt u in de hal en vanuit hier heeft u toegang tot de keuken en de toiletruimte.
De open keuken in hoekopstelling bevindt zich aan de voorzijde van de woning en is v.v. diverse apparatuur. De tuingerichte woonkamer met openslaande tuindeuren en heeft fijne lichtinval zorgen voor een fijne uitnodigende sfeer. U heeft hier volop ruimte voor een comfortabele zithoek Ʃn een gezellige eethoek.

1e verdieping
Via de vaste trap in de woonkamer bereikt u de eerste verdieping. Hier bevinden zich twee ruime slaapkamers en de badkamer. De twee slaapkamers op deze verdieping zijn beide ruim en licht. Of u nu extra slaapkamers, een werkkamer of een hobbyruimte wenst, hier kunt u alle kanten op. De betegelde badkamer grenst aan de overloop en is praktisch ingedeeld. De badkamer beschikt over een ruim ligbad met douche, een wastafel met spiegel en een handdoekradiator. De badkamer is netjes onderhouden, maar biedt ook hier de mogelijkheid om deze naar eigen wens te moderniseren.

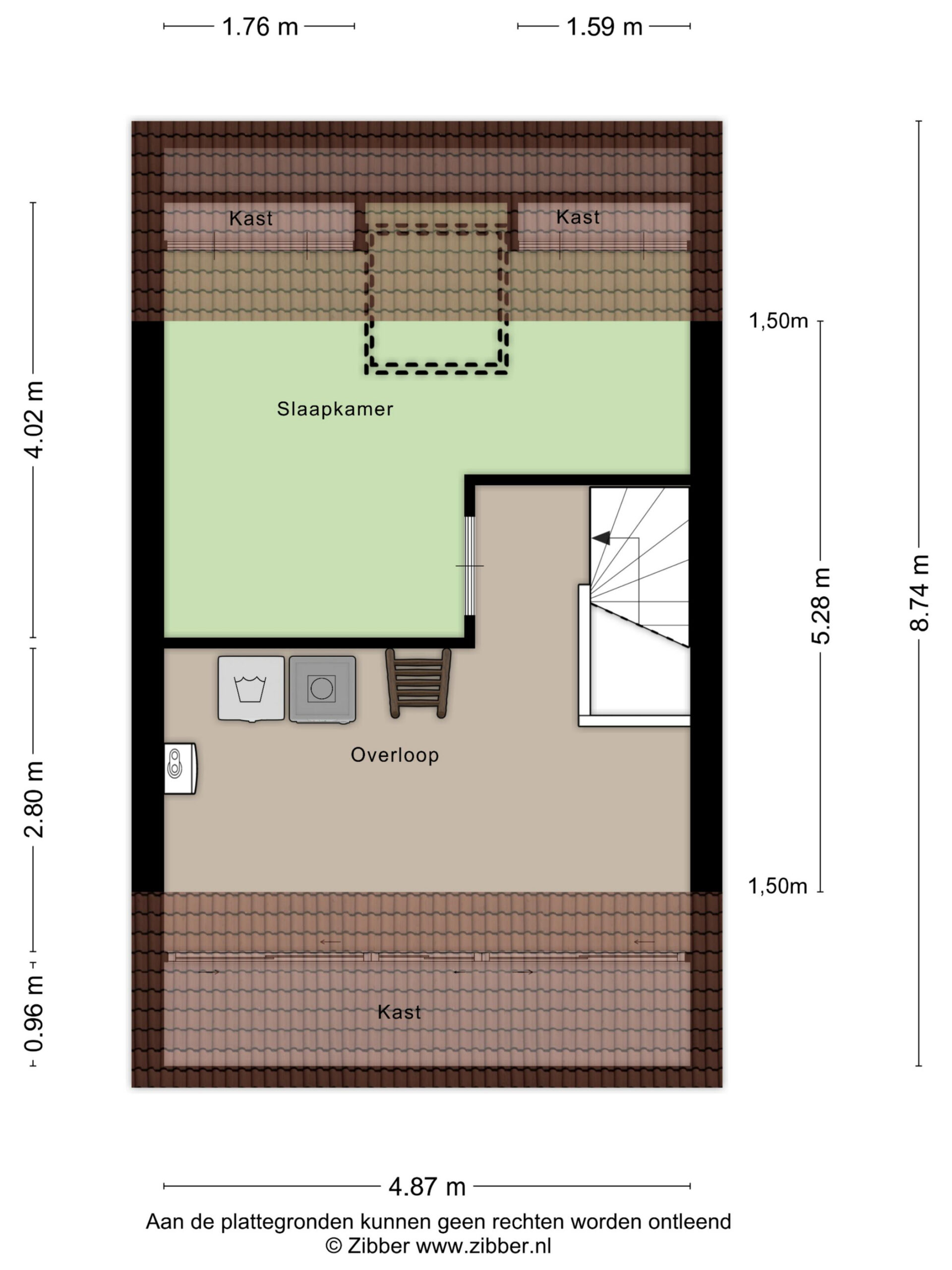
2e verdieping
Een vaste trap leidt u naar de tweede verdieping. Hier treft u een ruime overloop en een derde slaapkamer met goede stahoogte. De slaapkamer is royaal van formaat en daardoor perfect geschikt als hoofdslaapkamer, werkruimte of tienerkamer.
Vanaf de overloop heeft u via een trap toegang tot een extra zolderruimte, ideaal voor het opbergen van seizoensspullen en andere zaken die u netjes uit het zicht wilt houden. Praktisch en ruimtelijk tegelijk.

Buitenruimte
De achtertuin is bereikbaar vanuit de woonkamer en is maar liefst 16,5 meter diep. Gelegen op het noordwesten geniet u hier volop van de middag- en avondzon. De tuin is grotendeels bestraat en daarmee onderhoudsarm, met meer dan voldoende ruimte voor een royaal terras en meerdere zitplekken. Achterin de tuin staat een ruime houten berging van 13m2 en dankzij de achterom is de tuin ook gemakkelijk bereikbaar met fiets of tuinspullen. Een heerlijke plek om te ontspannen.

Parkeren
In de straat en in de directe omgeving is voldoende openbare parkeergelegenheid aanwezig, zodat u uw auto altijd dichtbij huis kunt parkeren.

De woning is rustig gelegen in een prettige woonomgeving. Op korte afstand winkelcentrum Middenwaard, scholen, kinderopvang en sportclubs. Hierdoor is dit een ideale plek voor gezinnen. Ook het openbaar vervoer is goed geregeld met bushaltes en station Heerhugowaard op korte afstand. Via de nabijgelegen uitvalswegen bent u bovendien snel onderweg richting Alkmaar, Hoorn of de Randstad. Hier woont u centraal, maar met de rust van een fijne woonwijk.

Bijzonderheden
• Woonoppervlakte 111 m2
• Ruime gezinswoning met veel mogelijkheden
• 3 ruime slaapkamers
• Rond kunsstof kozijen
• Vergrote hal
• Diepe achtertuin van maarliefst16,5 meter
• Houten berging in de tuin van 13m2
• Stenen berging aan de voorzijde van 14m2
• Achterom aanwezig
• Rustig en centraal gelegen
• Vlakbij winkelcentrum Middenwaard
• Nabij scholen, sportclubs, supermarkten en openbaar vervoer
• Goede bereikbaarheid via uitvalswegen

Aankopen? Schakel jouw eigen NVM-makelaar in. Een aankoopmakelaar behartigt jouw belangen en bespaart tijd, geld en zorgen!

Kenmerken

Overdracht

  • StatusVerkocht o.v.
  • KoopprijsVraagprijs € 375.000,- k.k.

Bouwvorm

  • Soort objectWoonhuis
  • Soort woningEengezinswoning
  • Type woningTussenwoning
  • Bouwjaar1980
  • BouwvormBestaande bouw
  • LiggingenAan rustige weg, In woonwijk, Beschutte ligging

Indeling

  • Woonoppervlakte112 m2
  • Perceeloppervlakte151 m2
  • Inhoud421 m3
  • Aantal kamers4
  • Aantal slaapkamers3
  • Aantal badkamers1

Energie

  • EnergieklasseA
  • VerwarmingCV ketel
  • C.V.-KetelIntergas
  • Bouwjaar C.V.-Ketel2012
  • WarmwaterCV ketel
  • IsolatieDakisolatie, Vloerisolatie
  • CombiketelJa
  • BrandstofGas
  • EigendomEigendom

Buitenruimte

  • TuinAchtertuin, Voortuin
  • HoofdtuinAchtertuin
  • Oppervlakte83 m2
  • Ligging hoofdtuinNoordwest
  • AchteromJa
  • Kwaliteit tuinNormaal

Bergruimte

  • Schuur / BergingAangebouwd steen
  • VoorzieningenVoorzien van elektra
  • IsolatieGeen isolatie
  • Totaal aantal2

Parkeergelegenheid

  • Parkeer faciliteitenParkeervergunningen
  • GarageGeen garage

Dak

  • Soort dakZadeldak
  • Materiaal dakPannen

Overig

  • Permanente bewoningJa
  • Onderhoud binnenGoed
  • Onderhoud buitenGoed
  • Huidig gebruikWoonruimte
  • Huidige bestemmingWoonruimte

Vliet 51 Heerhugowaard

Kan ik dit huis betalen?

Via deze tool bereken je het binnen 1 minuut!

Wil je het 100% zeker weten? Vraag dan een adviesgesprek aan met een financieel adviseur. Klik hier.

Hier staat jouw droomwoning

Plan een bezichtiging

"*" geeft vereiste velden aan

Dit veld is verborgen bij het bekijken van het formulier
Het vestigingsnummer van het huidige object
Dit veld is verborgen bij het bekijken van het formulier
De url van object/woning
Dit veld is verborgen bij het bekijken van het formulier
De titel van object/woning
Dit veld is verborgen bij het bekijken van het formulier