Wester Vlaerdinge 16, Heerhugowaard

kamers 5 · 187 m2

nl

RIANTE TWEE-ONDER-EEN-KAPWONING, INSTAPKLAAR, KANGOEROEWONING MET SLAAPKAMER EN BADKAMER OP DE BEGANE GROND, RUIME KAVEL MET EIGEN OPRIT, VERANDA EN BERGING

Aan de Wester Vlaerdinge 16 in Heerhugowaard bieden wij deze verzorgde en modern afgewerkte twee-onder-een-kapwoning aan, gelegen op een royaal perceel van 389 m². Met een woonoppervlakte van 187 m² beschikt de woning over een comfortabele indeling met onder andere een slaapkamer, keukenblok en badkamer op de begane grond, twee badkamers in totaal en meerdere ruime slaapkamers op de overige verdiepingen. Dankzij de instapklare afwerking, de sfeervolle houtkachel en de duurzame voorzieningen zoals zonnepanelen en een hybride warmtepomp is dit een woning die klaar is voor de toekomst. Buiten wordt het wooncomfort verder versterkt door een onderhoudsarme tuin met veranda en aangebouwde berging, terwijl parkeren op eigen terrein met meerdere auto’s mogelijk is. Zie jij jezelf hier al wonen?

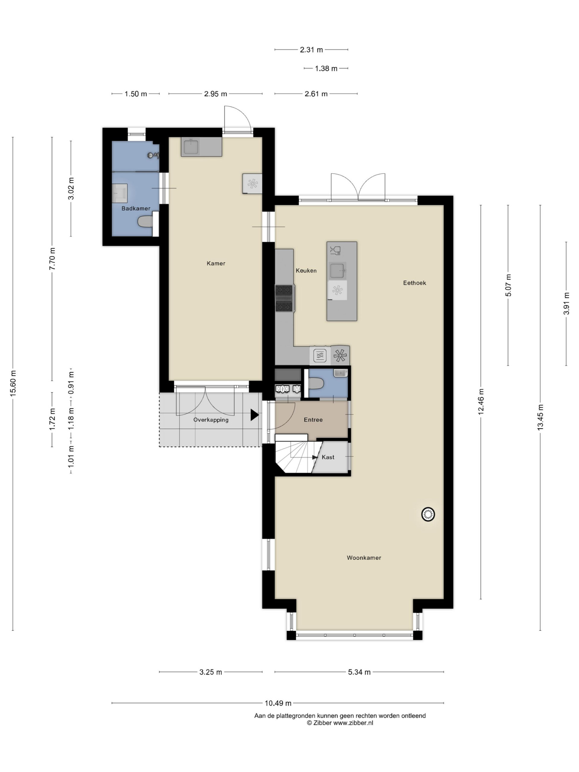
Begane grond
Via de entree kom je binnen in de hal met meterkast, trapopgang, modern toilet met fonteintje en toegang tot de woonkamer. De uitgebouwde woonkamer is ruim opgezet en prachtig afgewerkt met gestuukte wanden en houtlook tegelvloer met vloerverwarming. De grote raampartijen en de erker aan de voorzijde zorgen voor een heerlijke lichte woning. De luxe houtkachel vormt hier een sfeervol en functioneel middelpunt.

Aansluitend aan de woonkamer ligt de open keuken met kookeiland, voorzien van hoogwaardige apparatuur (breed Boretti gasfornuis met grillplaat en dubbele oven, afzuigkap, combi-oven (met magnetron), combi-oven (met stoom), vaatwasser, grote koelkast, 3 laden vriezer en Quooker), en veel werk- en bergruimte. Openslaande deuren verlenen directe toegang tot de achtertuin. Vanuit de keuken is de eerste slaapkamer bereikbaar; deze heeft een moderne badkamer en suite, uitgerust met een inloopdouche, wastafelmeubel, hangkast en wandcloset. De kamer zelf heeft aan de voorzijde openslaande deuren richting de oprit, en aan de achterzijde een loopdeur naar de achtertuin.

Eerste verdieping
Op de eerste verdieping bevinden zich twee (voorheen 3) ruime slaapkamers (3,36 x 5,34 en 3,88 x 5,34), beide met voldoende daglicht en een praktische indeling. Daarnaast is er een modern uitgevoerde badkamer met inloopdouche (inclusief regendouche), een dubbele wastafel met meubel, hangkast en spiegelkast. Aan de overloop grenst tevens een separate toiletruimte, voorzien van wandcloset en fonteintje.

Tweede verdieping
Deze verrassende tweede verdieping is ingericht als een royale slaapkamer met extra bergruimte achter de knieschotten. Ook de witgoedaansluitingen en de technische installaties zijn op deze verdieping gesitueerd. Deze verdieping is eenvoudig geschikt te maken als slaapkamer, maar ook goed te gebruiken als werk- of hobbyruimte. Er is een wastafel met close in boiler aanwezig. Middels een vlizotrap is de bergzolder bereikbaar, voor nog meer opbergruimte.

Buiten/parkeren
De tuin is onderhoudsarm aangelegd en beschikt over meerdere zitplekken en een veranda met aangebouwde berging. Aan de voorzijde is een ruime oprit aanwezig met parkeergelegenheid voor meerdere auto’s op eigen terrein.

Buurt
De woning is gelegen in de populaire woonwijk ā€œBroekhornā€ een rustige woonwijk van Heerhugowaard, op korte afstand van het Kanaal Alkmaar Omval-Kolhorn, een fijne plek voor wandelingen en ontspanning. Uitvalswegen richting Alkmaar en Amsterdam zijn goed bereikbaar en ook recreatiegebied Geestmerambacht ligt in de nabijheid. Voorzieningen zoals winkels, scholen, NS-stations en sportfaciliteiten bevinden zich op korte afstand.

Kenmerken
• Twee-onder-een-kapwoning;
• Woonoppervlakte: 187 m²;
• Perceeloppervlakte: 389 m²;
• Kangoeroe woning met slaapkamer en badkamer op de begane grond;
• Instapklaar en modern afgewerkt;
• Sfeervolle houtkachel;
• Onderhoudsarme tuin met veranda en berging;
• Parkeren op eigen terrein (meerdere auto’s);
• 14 zonnepanelen;
• Hybride warmtepomp + Intergas CV-Ketel;
• Achtertuin op het Zuidoosten gelegen;
• Energielabel A.

Kenmerken

Overdracht

  • StatusBeschikbaar
  • KoopprijsVraagprijs € 875.000,- k.k.

Bouwvorm

  • Soort objectWoonhuis
  • Soort woningEengezinswoning
  • Type woningTwee onder ƩƩn kapwoning
  • Bouwjaar2018
  • BouwvormBestaande bouw
  • LiggingenAan rustige weg, In woonwijk, Vrij uitzicht, Open ligging, Aan vaarwater

Indeling

  • Woonoppervlakte187 m2
  • Perceeloppervlakte389 m2
  • Inhoud663 m3
  • Aantal kamers5
  • Aantal slaapkamers4
  • Aantal badkamers2

Energie

  • EnergieklasseA
  • VerwarmingCV ketel, Vloerverwarming gedeeltelijk, Warmtepomp, Houtkachel
  • C.V.-KetelIntergas
  • Bouwjaar C.V.-Ketel2018
  • WarmwaterCV ketel, Elektrische boiler eigendom
  • IsolatieVolledig geĆÆsoleerd
  • CombiketelJa
  • BrandstofGas
  • EigendomEigendom

Buitenruimte

  • TuinAchtertuin, Voortuin, Zijtuin
  • HoofdtuinAchtertuin
  • Oppervlakte154 m2
  • Ligging hoofdtuinZuidoost
  • AchteromJa
  • Kwaliteit tuinVerzorgd

Bergruimte

  • Schuur / BergingVrijstaand hout
  • VoorzieningenVoorzien van elektra
  • Totaal aantal1

Parkeergelegenheid

  • Parkeer faciliteitenOpenbaar parkeren, Op eigen terrein
  • GarageParkeerplaats, Geen garage

Dak

  • Soort dakZadeldak
  • Materiaal dakPannen

Overig

  • Permanente bewoningJa
  • Onderhoud binnenGoed tot uitstekend
  • Onderhoud buitenGoed tot uitstekend
  • Huidig gebruikWoonruimte
  • Huidige bestemmingWoonruimte

Wester Vlaerdinge 16 Heerhugowaard

Kan ik dit huis betalen?

Via deze tool bereken je het binnen 1 minuut!

Wil je het 100% zeker weten? Vraag dan een adviesgesprek aan met een financieel adviseur. Klik hier.

Hier staat jouw droomwoning

Plan een bezichtiging

"*" geeft vereiste velden aan

Dit veld is verborgen bij het bekijken van het formulier
Het vestigingsnummer van het huidige object
Dit veld is verborgen bij het bekijken van het formulier
De url van object/woning
Dit veld is verborgen bij het bekijken van het formulier
De titel van object/woning
Dit veld is verborgen bij het bekijken van het formulier