Grutto 11, Hoorn

kamers 5 · 105 m2

nl

NOG HELEMAAL NAAR EIGEN SMAAK IN TE RICHTEN RUIME EENGEZINSWONING MET 4 SLAAPKAMERS IN KINDVRIENDELIJKE BUURT!

In een rustige en kindvriendelijke wijk van Hoorn staat deze ruime eengezinswoning met een woonoppervlakte van 105 m² te koop. De woning is kaal opgeleverd, wat betekent dat je deze volledig naar eigen smaak en wensen kunt inrichten. Met vier slaapkamers, een praktische indeling, een badkamer met basisvoorzieningen en een onderhoudsvrije tuin biedt deze woning een uitstekende basis voor jouw ideale thuis.

Zie jij de mogelijkheden? Neem dan snel contact met ons op voor een bezichtiging!

Over de ligging en de buurt:

De woning is gelegen in een kindvriendelijke wijk in Hoorn, een stad met een charmante historische binnenstad en een breed aanbod aan voorzieningen. Scholen, supermarkten, sportfaciliteiten en openbaar vervoer bevinden zich op korte afstand. Hoorn biedt bovendien een uitstekende verbinding met Amsterdam en andere steden in de Randstad, zowel met de auto als met het openbaar vervoer.

Indeling:

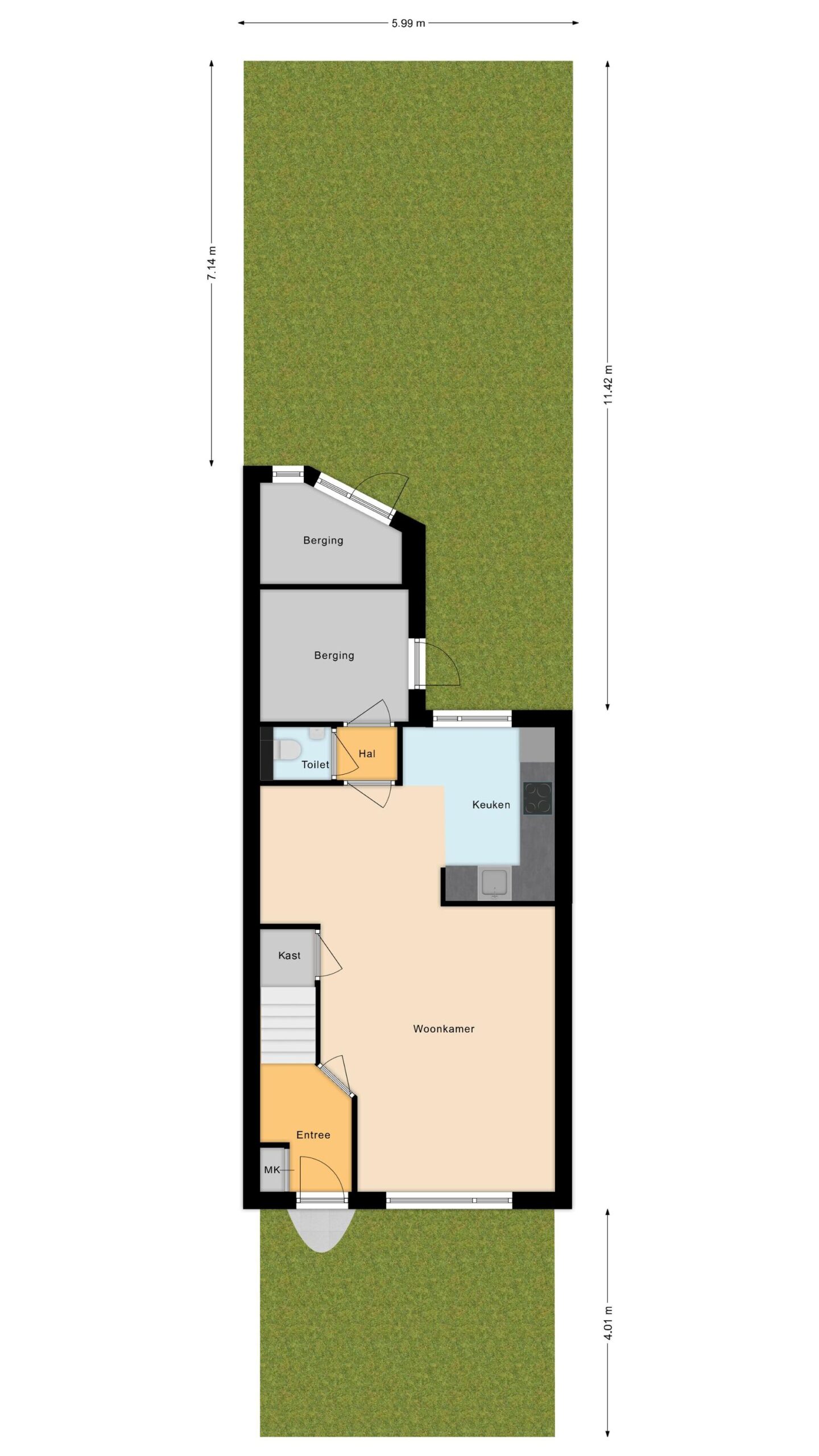
Begane grond: Bij binnenkomst via de entree vind je de meterkast, de trap naar de eerste verdieping en de deur naar de woonkamer. De woonkamer is licht en ruim en biedt veel mogelijkheden om een comfortabele leefruimte te creƫren. De half open keuken is eenvoudig, maar functioneel, en biedt de basisvoorzieningen. Via een halletje bereik je het toilet, de berging en de onderhoudsvrije tuin, die een rustige plek biedt voor ontspanning.

Eerste verdieping: Op de eerste verdieping bevindt zich een overloop met toegang tot drie slaapkamers: twee ruime en een kleinere kamer. De badkamer is voorzien van alle basisvoorzieningen zoals een douche, wastafel en toilet. Een inbouwkast op de overloop biedt extra opbergruimte.

Zolder: Op de zolderverdieping bevindt zich de vierde en grootste slaapkamer met een indrukwekkend hoog plafond, wat een ruimtelijk gevoel geeft. Daarnaast is er een extra berging waar je al je spullen kunt opbergen.

Kenmerken en bijzonderheden:

- Woonoppervlakte: circa 105 m²;
- 4 slaapkamers;
- Kale woning, volledig naar eigen smaak in te richten;
- Keurige keuken en badkamer met basisvoorzieningen;
- Onderhoudsvrije tuin;
- Gelegen in een kindvriendelijke buurt;
- Veel lichtinval door de grote raampartijen;
- Ouderdomsclausule van toepassing;
- Asbestclausule van toepassing;
- Niet-zelfbewoningsclausule van toepassing;
- Projectnotaris: Taylor Wessing N.V. te Parnassusweg 803, Amsterdam;
- Oppervlakte circa 130 m2

Let op: Vanwege de ouderdom van de woning en de mogelijke aanwezigheid van asbest in bepaalde materialen, is een ouderdoms- en asbestclausule van toepassing. Ook is er een niet-zelfbewoningsclausule van toepassing, aangezien de woning nimmer door de eigenaar is bewoond.

Ben jij op zoek naar een woning die je volledig naar eigen wens kunt inrichten? Neem dan snel contact met ons op om een bezichtiging in te plannen!

Kenmerken

Overdracht

  • StatusVerkocht o.v.
  • Koopprijs € 345.000,- k.k.

Bouwvorm

  • Soort objectWoonhuis
  • Soort woningEengezinswoning
  • Type woningTussenwoning
  • Bouwjaar1982
  • BouwvormBestaande bouw
  • LiggingenAan rustige weg, In woonwijk

Indeling

  • Woonoppervlakte105 m2
  • Perceeloppervlakte130 m2
  • Inhoud399 m3
  • Aantal kamers5
  • Aantal slaapkamers4
  • Aantal badkamers1

Energie

  • EnergieklasseC
  • VerwarmingCV ketel
  • WarmwaterCV ketel
  • IsolatieDubbelglas
  • CombiketelJa
  • BrandstofGas
  • EigendomEigendom

Buitenruimte

  • TuinAchtertuin, Voortuin
  • HoofdtuinAchtertuin
  • Oppervlakte68 m2
  • Ligging hoofdtuinNoordoost
  • AchteromNee
  • Kwaliteit tuinNormaal

Bergruimte

  • Schuur / BergingAangebouwd steen
  • VoorzieningenVoorzien van elektra
  • Totaal aantal1

Parkeergelegenheid

  • Parkeer faciliteitenOpenbaar parkeren
  • GarageGeen garage

Dak

  • Soort dakZadeldak
  • Materiaal dakPannen

Overig

  • Permanente bewoningJa
  • Onderhoud binnenRedelijk tot goed
  • Onderhoud buitenRedelijk tot goed
  • Huidig gebruikWoonruimte
  • Huidige bestemmingWoonruimte

Kan ik dit huis betalen?

Via deze tool bereken je het binnen 1 minuut!

Wil je het 100% zeker weten? Vraag dan een adviesgesprek aan met een financieel adviseur. Klik hier.

Hier staat jouw droomwoning

Plan een bezichtiging

"*" geeft vereiste velden aan

Dit veld is verborgen bij het bekijken van het formulier
Het vestigingsnummer van het huidige object
Dit veld is verborgen bij het bekijken van het formulier
De url van object/woning
Dit veld is verborgen bij het bekijken van het formulier
De titel van object/woning
Dit veld is verborgen bij het bekijken van het formulier