Galjoen 11 39, Lelystad

kamers 6 · 147 m2

nl

Ben jij zoek naar een ruim en modern halfvrijstaand huis met een rustige ligging in een woonwijk? Echt een lekker groot en degelijk gebouwd familiehuis waar je niet snel uit zult groeien?

Yes! Wij hebben een match voor je gevonden! Deze keurig onderhouden hoekwoning (2008) is gelegen in de rustige en kindvriendelijke wijk ā€œGaljoen-Zuidā€ en beschikt over alles wat je nodig hebt voor een fijn thuis: een zonnige woonkamer met open leefkeuken, 4 slaapkamers (5e slaapkamer mogelijk!) een aparte wasruimte, extra vliering, luxe sanitair en een gezellige tuin.

De woning heeft een solide bouw, is goed geĆÆsoleerd en heeft 5 zonnepanelen en daarom ook voorzien van het duurzame energielabel A.

Kom jij binnenkort thuis op deze fijne plek? Neem snel contact met ons op om een bezichtiging te plannen!

De gestelde prijs betreft een ā€˜bieden vanaf’ prijs. Ieder serieus voorstel boven de genoemde ā€œbieden vanafā€ prijs zal door verkopers in overweging worden genomen.

Over de ligging en de buurt:
Deze hoekwoning is gelegen aan een rustig hofje in de wijk ā€œGaljoen-Zuidā€. Het is een zeer kindvriendelijke wijk met scholen en kinderopvang op loopafstand van de woning. Het winkelcentrum van de wijk bevindt zich op enkele minuten fietsafstand en hier vind je je dagelijkse voorzieningen zoals de supermarkt, meerdere winkels en een huisartsenpraktijk. Ook het centrum van Lelystad en het station zijn binnen 10 minuten fietsen te bereiken. Vanaf de bushalte vlakbij de woning, is er tevens een directe verbinding naar het station, met vanaf daar snelle ov-verbindingen in uiteenlopende richtingen. Ook zijn de uitvalswegen uitstekend bereikbaar en heeft Lelystad een zeer gunstige ligging ten opzichte van de Randstad.

Indeling van de woning:
Begane grond:
Ruime en fraai aangelegde voortuin met oprit.

Achter de voordeur vinden we de entreehal met de meterkast, het gastentoilet met fonteintje, de trapopgang naar de eerste verdieping (incl. handige trapkast) en de toegang tot de woonkamer met open keuken.

De gezellige leefkeuken heeft een centrale plek in huis met helemaal aan de voorzijde voldoende ruimte voor de eettafel en een gezellig bankje in de erker. De keuken met kookeiland is voorzien van complete inbouwapparatuur: een 5-pits gaskookplaat, een oven, magnetron en een vaatwasser en een losse koel-/vriescombinatie.

De lichte woonkamer is tuingericht en heeft door de hoekligging met extra zijraam een heerlijk ruimtelijk gevoel. Openslaande deuren bieden toegang tot de tuin.

De volledige benedenverdieping is keurig afgewerkt en voorzien van een laminaatvloer.

Eerste verdieping:
Via de trap in de hal, bereiken we de overloop van de eerste verdieping. Op deze verdieping vinden we 3 slaapkamers en de badkamer. Alle slaapkamers zijn netjes afgewerkt met een laminaatvloer en de grootste slaapkamer beschikt over een inbouwwandkast.

De ruime badkamer is voorzien van een tweede toilet, dubbele wastafel met meubel, ligbad en een aparte inloopdouche.

Tweede verdieping:
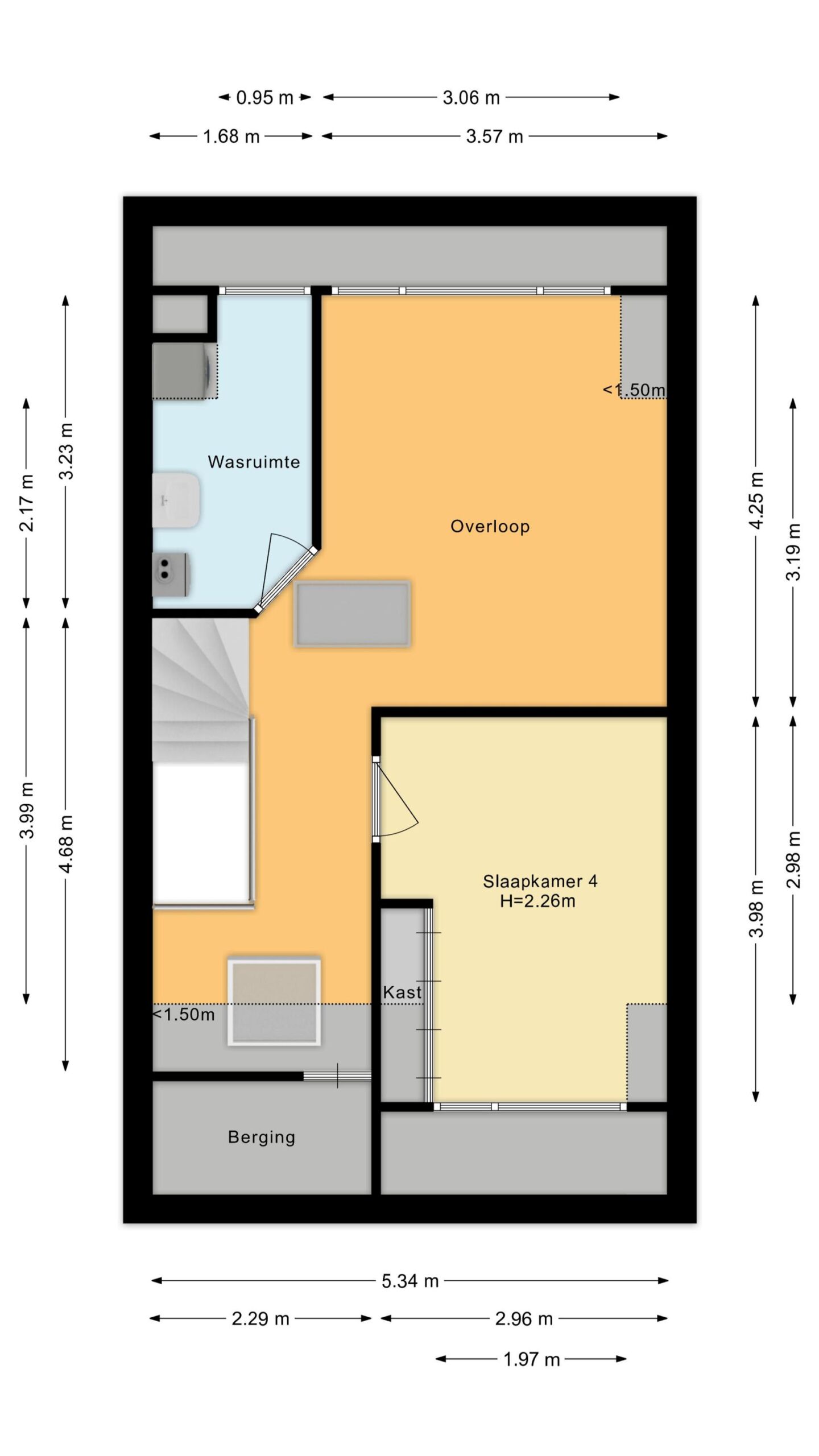
Er is een vaste trap naar de ruime tweede verdieping die is opgedeeld in een ruime zolderkamer met dakkapel aan de achterzijde (extra slaapkamer realiseren is hier heel goed mogelijk!) en een aparte wasruimte. Een aparte 4e slaapkamer met dakkapel aan de voorzijde met elektrisch zonnescreen en een vaste kast.
Deze verdieping is ook voorzien van een laminaatvloer.

Vliering:
Middels een vlizotrap is er toegang tot een bescheiden vlieringzolder met bergruimte.

Tuin:
De woning heeft een fraai aangelegde achtertuin op het noorden welke is voorzien van een groot betegeld terras dat wordt afgewisseld met groene borders en deels overdekt wordt door een begroeide pergola. Achterin de tuin staat een handige houten berging welke voorzien is van elektriciteit. Naast het huis is een extra overkapping aanwezig voor extra opslagruimte.
De tuin is tevens bereikbaar via een achterom.

Parkeren:
Parkeren op eigen terrein: oprit.

Kenmerken van de woning:
• Ruime, goed onderhouden halfvrijstaande woning
• 4 slaapkamers, 5e slaapkamer realiseren is mogelijk
• Extra bergvliering boven de tweede verdieping
• Goed geĆÆsoleerd en voorzien van zonnepanelen
• Gezellige en groene achtertuin, met schaduw en zon
• Rustige ligging aan een hofje zonder doorgaand verkeer
• Ideaal gelegen ten opzichte van de uitvalswegen richting de Randstad
• Energielabel: A
• Aanvaarding in overleg

Kenmerken

Overdracht

  • StatusBeschikbaar
  • KoopprijsKoopsom € 485.000,- k.k.

Bouwvorm

  • Soort objectWoonhuis
  • Soort woningEengezinswoning
  • Type woningHoekwoning
  • Bouwjaar2008
  • BouwvormBestaande bouw
  • LiggingenAan rustige weg, In woonwijk

Indeling

  • Woonoppervlakte147 m2
  • Perceeloppervlakte227 m2
  • Inhoud556 m3
  • Aantal kamers6
  • Aantal slaapkamers4
  • Aantal badkamers1

Energie

  • EnergieklasseA
  • VerwarmingCV ketel
  • C.V.-KetelIntergas Kombi Kompakt
  • Bouwjaar C.V.-Ketel2008
  • WarmwaterCV ketel
  • IsolatieDakisolatie, Muurisolatie, Vloerisolatie, Volledig geĆÆsoleerd
  • CombiketelJa
  • BrandstofGas
  • EigendomEigendom

Buitenruimte

  • TuinAchtertuin, Voortuin, Zijtuin
  • HoofdtuinAchtertuin
  • Oppervlakte74 m2
  • Ligging hoofdtuinNoord
  • AchteromNee
  • Kwaliteit tuinNormaal

Bergruimte

  • Schuur / BergingVrijstaand hout
  • VoorzieningenVoorzien van elektra
  • Totaal aantal2

Parkeergelegenheid

  • Parkeer faciliteitenOpenbaar parkeren, Op eigen terrein
  • GarageParkeerplaats

Dak

  • Soort dakZadeldak
  • Materiaal dakPannen

Overig

  • Permanente bewoningJa
  • Onderhoud binnenGoed tot uitstekend
  • Onderhoud buitenGoed tot uitstekend
  • Huidig gebruikWoonruimte
  • Huidige bestemmingWoonruimte

Kan ik dit huis betalen?

Via deze tool bereken je het binnen 1 minuut!

Wil je het 100% zeker weten? Vraag dan een adviesgesprek aan met een financieel adviseur. Klik hier.

Hier staat jouw droomwoning

Plan een bezichtiging

"*" geeft vereiste velden aan

Dit veld is verborgen bij het bekijken van het formulier
Het vestigingsnummer van het huidige object
Dit veld is verborgen bij het bekijken van het formulier
De url van object/woning
Dit veld is verborgen bij het bekijken van het formulier
De titel van object/woning
Dit veld is verborgen bij het bekijken van het formulier