Karveel 54 4, Lelystad

kamers 6 · 141 m2

nl

RUIME GEZINSWONING MET 5 SLAAPKAMERS!

Ben jij op zoek naar een fijn familiehuis met lekker veel leefruimte, een fijne sfeer en met een rustige ligging aan de rand van Lelystad – vlakbij het bos? Bekijk dan zeker deze woning!

Parkeer je auto voor de deur, kom binnen en laat je verrassen door de mogelijkheden van dit huis. Beneden de gezellige woonkamer met een open keuken; boven vind je maar liefst 5 volwaardige slaapkamers en de badkamer. Buiten kun je volop genieten van de ruime en groene achtertuin op het oosten met vrij uitzicht.

Maak jij van dit huis jouw thuis? Kom snel langs voor een bezichtiging!

Over de ligging en de buurt:
Deze tussenwoning (1978) is gelegen aan een rustige straat met alleen bestemmingsverkeer, in de wijk Het Karveel. De dichtstbijzijnde basisschool vind je op 5 minuten lopen en er zijn ook voorzieningen voor kinderopvang in de eigen wijk beschikbaar. Het buurtwinkelcentrum bevindt zich op 5 minuten fietsafstand, het centrum en treinstation van Lelystad zijn binnen een kwartier fietsen te bereiken en in het op korte afstand gelegen Bataviastad en Bataviahaven zijn ook diverse leuke winkels, terrasjes, cafƩs en restaurants te vinden. Liever even de stad uit? Met 2 minuten sta je al in het bos buiten Lelystad! Ook zijn de uitvalswegen uitstekend bereikbaar en heeft Lelystad een zeer gunstige ligging ten opzichte van de Randstad.

De gestelde prijs betreft een "bieden vanaf" prijs. Ieder serieus voorstel boven de genoemde ā€œbieden vanafā€ prijs zal door verkopers in overweging worden genomen.

Indeling van de woning:
Begane grond:
Achter de voordeur vinden we de entree met garderobe, meterkast, gastentoilet met fonteintje, trapopgang naar de eerste verdieping en toegang tot de woonkamer met open keuken.

De keuken heeft een centrale plek in de ruimte waarbij er helemaal aan de voorzijde voldoende ruimte is voor een grote eettafel.

De keuken is voorzien van een inductiekookplaat, combimagnetron, koelkast, vriezer en een vaatwasser.

De woonkamer is tuingericht en geniet van een mooi uitzicht over de eigen tuin. Een achterdeur biedt toegang tot de tuin.

De begane grond is afgewerkt met een tegelvloer.

Eerste verdieping:
Op deze verdieping vinden we 3 slaapkamers en de badkamer. Alle slaapkamers zijn afgewerkt met ofwel PVC-laminaat ofwel vloerbedekking, de grootste slaapkamer beschikt over een eigen wastafel.

De badkamer is voorzien van een tweede toilet, wastafel en douchecabine. Hier bevinden zich tevens de aansluitingen voor de witgoedopstelling.

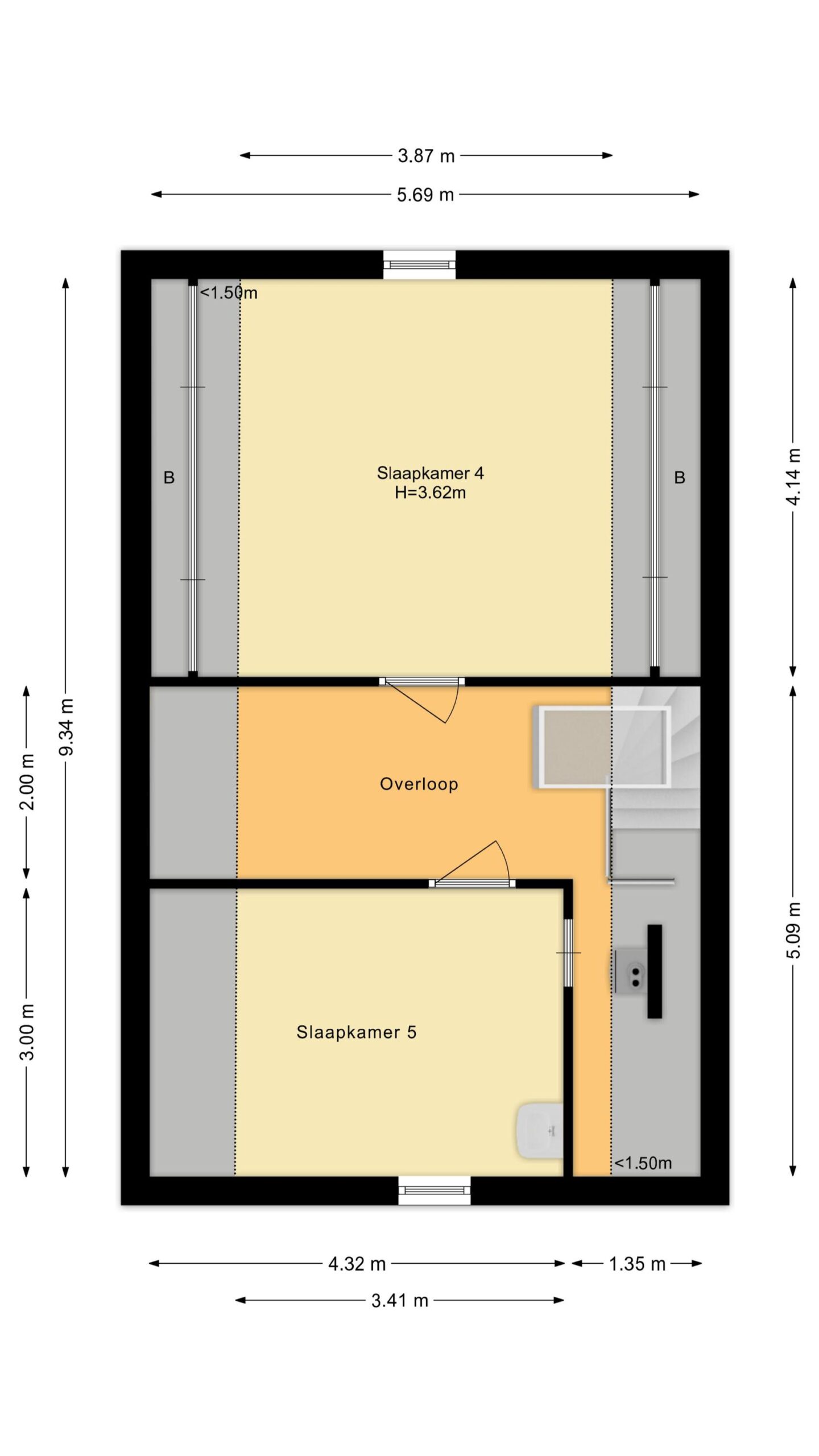
Tweede verdieping:
Via de vaste trap op de eerste verdieping, bereiken we de overloop van de ruime tweede verdieping die toegang biedt tot nog eens 2 volwaardige slaapkamers, waarvan ƩƩn met bergzolder. En ƩƩn van deze slaapkamers beschikt over een eigen wastafel. Het hoge nokplafond met zichtbare balken geeft veel sfeer aan deze kamer.

Tuin:
De woning heeft een ruime achtertuin op het oosten met een groot betegeld terras dat wordt afgewisseld met groene borders en bomen. Achterin de tuin staat een handige stenen berging welke voorzien is van elektriciteit. De tuin is tevens via een achterom bereikbaar. Omdat de tuin grenst aan een groenstrook (geen directe achterburen) is de ligging van de tuin erg vrij en privƩ.

Parkeren:
Er is parkeergelegenheid rond de woning.

Kenmerken van de woning:
• Ruime tussenwoning met veel leefruimte
• 5 slaapkamers
• Gelegen in een fijne buurt dichtbij alle voorzieningen en op loopafstand van het bos
• Mooie, groene tuin op het oosten met een vrije ligging (grenzend aan groenstrook, geen directe achterburen)
• Dakpannen vervangen in 2022
• Energielabel: A, 15 zonnepanelen, dak-, vloer- en muurisolatie en kozijnen met HR ++ glas.
• Aanvaarding laatste kwartaal 2026

Kenmerken

Overdracht

  • StatusBeschikbaar
  • KoopprijsKoopsom € 375.000,- k.k.

Bouwvorm

  • Soort objectWoonhuis
  • Soort woningEengezinswoning
  • Type woningTussenwoning
  • Bouwjaar1978
  • BouwvormBestaande bouw
  • LiggingenIn woonwijk, In bosrijke omgeving

Indeling

  • Woonoppervlakte141 m2
  • Perceeloppervlakte177 m2
  • Inhoud507 m3
  • Aantal kamers6
  • Aantal slaapkamers5
  • Aantal badkamers1

Energie

  • EnergieklasseA
  • VerwarmingCV ketel
  • C.V.-KetelIntergas
  • Bouwjaar C.V.-Ketel2010
  • WarmwaterCV ketel
  • IsolatieDakisolatie, Muurisolatie, Vloerisolatie, Dubbelglas, HR glas
  • CombiketelJa
  • BrandstofGas
  • EigendomEigendom

Buitenruimte

  • TuinAchtertuin, Voortuin
  • HoofdtuinAchtertuin
  • Oppervlakte84 m2
  • Ligging hoofdtuinOost
  • AchteromJa
  • Kwaliteit tuinVerzorgd

Bergruimte

  • Schuur / BergingVrijstaand steen
  • VoorzieningenVoorzien van elektra
  • Totaal aantal1

Parkeergelegenheid

  • Parkeer faciliteitenOpenbaar parkeren
  • GarageGeen garage

Dak

  • Soort dakZadeldak
  • Materiaal dakPannen
  • ToelichtingPannendak vernieuwd

Overig

  • Permanente bewoningJa
  • Onderhoud binnenGoed
  • Onderhoud buitenGoed
  • Huidig gebruikWoonruimte
  • Huidige bestemmingWoonruimte

Kan ik dit huis betalen?

Via deze tool bereken je het binnen 1 minuut!

Wil je het 100% zeker weten? Vraag dan een adviesgesprek aan met een financieel adviseur. Klik hier.

Hier staat jouw droomwoning

Plan een bezichtiging

"*" geeft vereiste velden aan

Dit veld is verborgen bij het bekijken van het formulier
Het vestigingsnummer van het huidige object
Dit veld is verborgen bij het bekijken van het formulier
De url van object/woning
Dit veld is verborgen bij het bekijken van het formulier
De titel van object/woning
Dit veld is verborgen bij het bekijken van het formulier