Abeelstraat 20, Schagen

kamers 5 · 121 m2

nl

Ruime gezinswoning met 3 (mogelijkheid tot 4) slaapkamers en verwarmd zwembad in de tuin!

**ENGLISH TEXT BELOW**

Deze fijne gezinswoning is de afgelopen jaren deels gerenoveerd en biedt een fijne basis voor comfortabel wonen. Zo is de woning voorzien van grotendeels kunststof kozijnen en onderhoudsvriendelijke kunststof gevelbekleding. Binnen tref je een moderne keuken en een recent vernieuwde, luxe badkamer die van alle gemakken is voorzien.

Het grootste werk is hiermee al gedaan: de belangrijke en kostbare onderdelen zijn aangepakt. Tegelijkertijd is het goed om te weten dat de afwerking nog niet overal op hetzelfde niveau is. Met name op de eerste en tweede verdieping kan de woning nog wat aandacht gebruiken om het geheel naar een hoger afwerkingsniveau te brengen. Hierbij gaat het voornamelijk om afwerking en persoonlijke smaak, waardoor je de woning eenvoudig verder naar eigen wens kunt moderniseren.

Je woont hier aan de rand van Schagen, wanneer je de straat uitloopt kun je direct beginnen aan een fijne wandeling over de Groeneweg, langs het Schagerkoggekanaal. Fiets je de andere kant op, dan bereik je binnen 5 minuten ook al het gezellige centrum van Schagen.

Kortom: een woning met veel pluspunten en recente verbeteringen, waarbij de basis al staat en je het geheel nog naar eigen smaak kunt afmaken. Maak snel een afspraak om een bezichtiging te plannen!

Over de ligging en de buurt:

De woning is gelegen aan een rustige straat aan de rand van het gezellige Schagen. De woonwijk is erg ruim opgezet en gunstig gelegen met het centrum van Schagen en alle dagelijkse voorzieningen op 5 minuten fietsafstand. Aangezien de woning zich helemaal aan de uiterste rand van Schagen bevindt, sta je in een mum van tijd in de weidse polder waar je heerlijk kunt wandelen en fietsen. Er zijn diverse speeltuinen in de buurt en ook zijn er 2 basisscholen op loopafstand van de woning. Vanaf het treinstation van Schagen (tevens op 5 minuten fietsafstand) zijn er goede ov-verbindingen richting o.a. Alkmaar (19 minuten), Amsterdam (59 minuten) en Den Helder (18 minuten). Ook zijn de uitvalsweg gemakkelijk en snel aan te rijden aangezien de woning op enkele minuten van de N248 ligt.

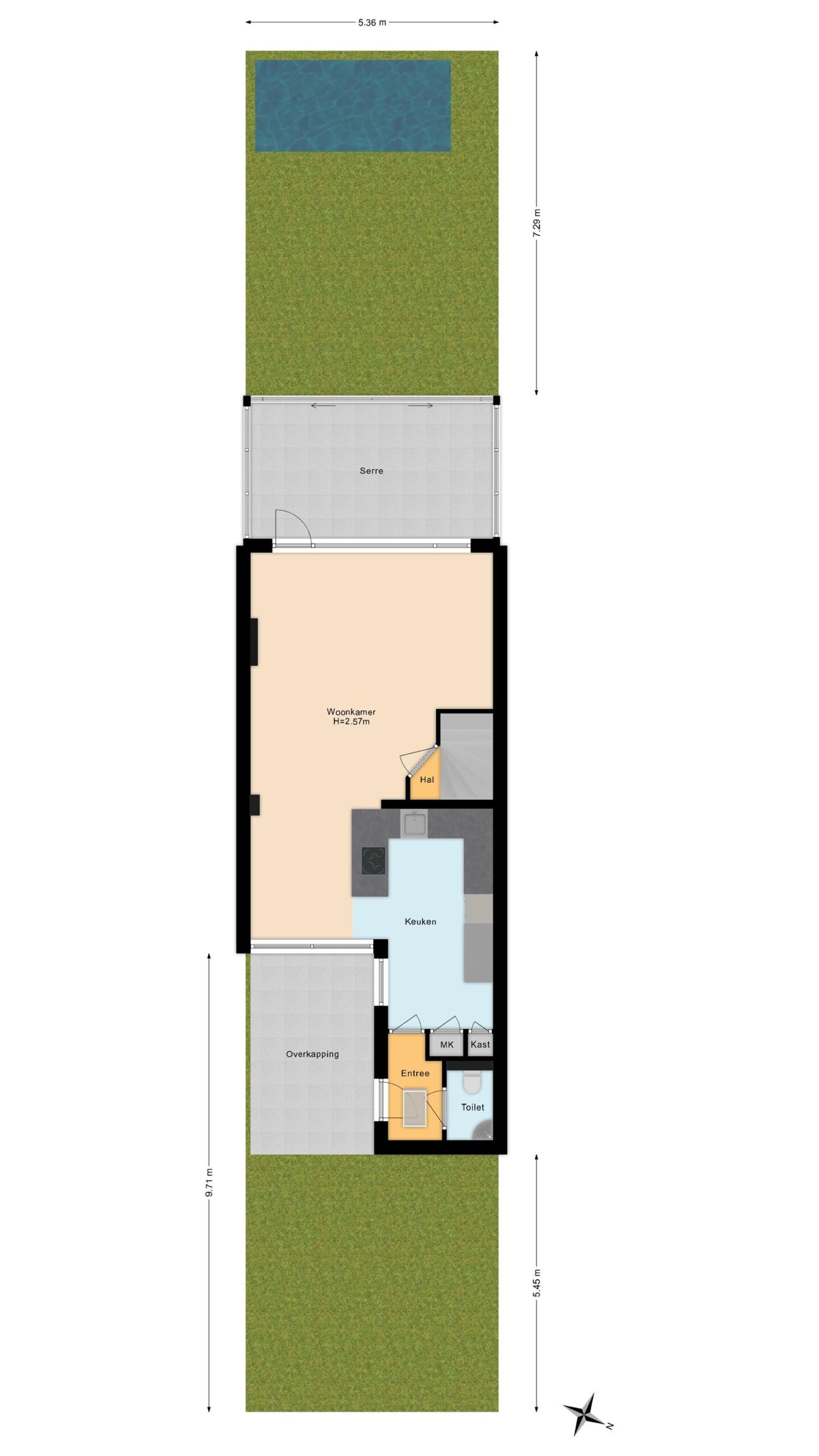
Indeling van de woning:
Begane grond:
Via de ruime voortuin met oprit en overkapping, komen we aan bij de voordeur van de woning.

Achter de voordeur vinden we de entree met garderobe, gastentoilet met fonteintje, en toegang tot de woonkamer met open keuken.

De woonkamer is tuingericht en de grote raampartijen voorzien de ruimte van lekker veel lichtinval. Een achterdeur in de glazen pui biedt toegang tot de glazen serre die een fijn verlengstuk vormt op de leefruimte.

De keuken bevindt zich aan de voorzijde van de woning en is voorzien van een inductiekookplaat, oven, magnetron, koelkast, vriezer en een vaatwasser.

Er is sprake van een nette afwerking met een tegelvloer met vloerverwarming. De trapopgang naar de eerste verdieping is weggewerkt achter een toegangsdeur met kleine hal.

Eerste verdieping:
Vanaf de overloop is er toegang tot 2 slaapkamers, de wasruimte en de luxe badkamer. Beide slaapkamers zijn van een goed formaat en netjes afgewerkt met een laminaatvloer. De nieuwe badkamer is recent opgeleverd en voorzien van inbouwspots, een tweede toilet, dubbele wastafel met meubel, ligbad en een aparte inloopregendouche.

Tweede verdieping:
Via de vaste trap op de eerste verdieping, bereiken we de overloop van de ruime tweede verdieping die toegang biedt tot de volwaardige 3e slaapkamer met eigen wastafel. Op deze verdieping is ruimte genoeg tot het creƫren van een vierde slaapkamer.

Tuin:
De onderhoudsvriendelijke achtertuin is gelegen op het oosten. Direct achter het huis is een mooie serre gerealiseerd met glazen puien. Hierachter zit een betegeld terras dat overgaat naar een verhoogd gedeelte met het verwarmde zwembad.

Parkeren:
Er is parkeergelegenheid op eigen terrein.

Kenmerken van de woning:
• Fijn familiehuis met moderne keuken
• 3 grote slaapkamers (4e slaapkamer mogelijk)
• Nieuwe, luxe badkamer
• Onderhoudsvriendelijke achtertuin op het oosten met luxe serre en verwarmd zwembad
• Zonnepanelen
• Prettige ligging in een geliefde, groene en kindvriendelijke wijk
• Energielabel: A
• Volledige eigendom

Bijzonderheden:
• De volgende clausules zijn van toepassing: een ouderdomsclausule (m.b.t. het oorspronkelijke bouwjaar van de woning), asbestclausule (m.b.t. het oorspronkelijke bouwjaar van de woning).
De tekst van deze clausules kun je vooraf bij ons kantoor opvragen.

**ENGLISH**

This pleasant family home has been partly renovated in recent years and offers a solid foundation for comfortable living. The property features mostly low-maintenance uPVC window frames and durable plastic cladding. Inside, you will find a modern kitchen and a recently completed, luxurious bathroom equipped with all contemporary conveniences.

The major work has already been taken care of: the key and more costly improvements have been completed. At the same time, it is important to note that the level of finishing is not yet consistent throughout the entire home. Especially on the first and second floors, some additional finishing work is desirable to bring everything to a higher standard. This mainly concerns finishing and personal taste, giving you the opportunity to further modernize and style the home to your own preferences.

The property is located on the edge of Schagen. When you walk to the end of the street, you can immediately enjoy a scenic walk along the Groeneweg and the Schagerkogge canal. Cycling in the opposite direction, you will reach the lively town center of Schagen within just 5 minutes.

In short: a home with many advantages and recent upgrades, where the main work has already been completed and you can still add your own finishing touch. Schedule a viewing soon!

Location and surroundings:
The property is situated on a quiet street on the outskirts of the charming town of Schagen. The residential area is spacious and conveniently located, with the town center and all daily amenities just a 5-minute bike ride away. Thanks to its location on the very edge of town, you can reach the wide-open polder landscape within moments—perfect for walking and cycling.

There are several playgrounds nearby, and two primary schools are within walking distance. From the train station of Schagen (also just 5 minutes by bike), there are excellent public transport connections to cities such as Alkmaar (19 minutes), Amsterdam (59 minutes), and Den Helder (18 minutes). Major roads are also easily accessible, with the N248 just a few minutes away.

Layout of the property

Ground floor:
Through the spacious front garden with driveway and covered entrance, you arrive at the front door.

The entrance hall provides access to a wardrobe area, a guest toilet with washbasin, and the living room with open-plan kitchen.

The living room is garden-facing, and large windows allow for plenty of natural light. A rear door in the glass faƧade provides access to the conservatory, which serves as a pleasant extension of the living space.

The kitchen is located at the front of the house and is equipped with an induction hob, oven, microwave, refrigerator, freezer, and dishwasher.

The ground floor is neatly finished with tiled flooring and underfloor heating. The staircase to the first floor is positioned behind a door in a small hallway.

First floor:
The landing provides access to two bedrooms, a laundry room, and the luxurious bathroom. Both bedrooms are well-sized and neatly finished with laminate flooring.

The newly completed bathroom features recessed lighting, a second toilet, a double washbasin with vanity unit, a bathtub, and a separate walk-in rain shower.

Second floor:
Via a fixed staircase, you reach the landing of the spacious second floor, which provides access to a full-sized third bedroom with its own washbasin. This floor offers sufficient space to create a fourth bedroom.

Garden:
The low-maintenance backyard is east-facing. Directly behind the house, a beautiful conservatory with glass panels has been created. Beyond this is a tiled terrace leading to a raised area with a heated swimming pool.

Parking:
Parking is available on private property.

Key features of the property:
• Comfortable family home with modern kitchen
• 3 spacious bedrooms (possibility for a 4th bedroom)
• New, luxurious bathroom
• Low-maintenance east-facing garden with conservatory and heated swimming pool
• Solar panels
• Pleasant location in a popular, green, and family-friendly neighborhood
• Energy label: A
• Full ownership

Details:
• The following clauses apply: an age clause (relating to the original year of construction of the property), an asbestos clause (relating to the original year of construction of the property).
The text of these clauses can be requested from our office in advance.

Kenmerken

Overdracht

  • StatusBeschikbaar
  • KoopprijsVraagprijs € 439.000,- k.k.

Bouwvorm

  • Soort objectWoonhuis
  • Soort woningEengezinswoning
  • Type woningTussenwoning
  • Bouwjaar1972
  • BouwvormBestaande bouw
  • LiggingenIn woonwijk, Beschutte ligging

Indeling

  • Woonoppervlakte121 m2
  • Perceeloppervlakte155 m2
  • Inhoud468 m3
  • Aantal kamers5
  • Aantal slaapkamers3
  • Aantal badkamers1

Energie

  • EnergieklasseA
  • VerwarmingCV ketel
  • C.V.-KetelIntergas Kombi Kompakt
  • Bouwjaar C.V.-Ketel2021
  • WarmwaterCV ketel
  • IsolatieDakisolatie
  • CombiketelJa
  • BrandstofGas
  • EigendomEigendom

Buitenruimte

  • TuinAchtertuin, Voortuin
  • HoofdtuinAchtertuin
  • Oppervlakte39 m2
  • Ligging hoofdtuinOost
  • AchteromNee
  • Kwaliteit tuinVerzorgd

Parkeergelegenheid

  • Parkeer faciliteitenOp eigen terrein
  • GarageGeen garage

Dak

  • Soort dakZadeldak

Overig

  • Permanente bewoningJa
  • Onderhoud binnenGoed
  • Onderhoud buitenGoed
  • Huidig gebruikWoonruimte
  • Huidige bestemmingWoonruimte

VLIEG Makelaars: Abeelstraat 20, SCHAGEN

Kan ik dit huis betalen?

Via deze tool bereken je het binnen 1 minuut!

Wil je het 100% zeker weten? Vraag dan een adviesgesprek aan met een financieel adviseur. Klik hier.

Hier staat jouw droomwoning

Plan een bezichtiging

"*" geeft vereiste velden aan

Dit veld is verborgen bij het bekijken van het formulier
Het vestigingsnummer van het huidige object
Dit veld is verborgen bij het bekijken van het formulier
De url van object/woning
Dit veld is verborgen bij het bekijken van het formulier
De titel van object/woning
Dit veld is verborgen bij het bekijken van het formulier